近日,张家港市规划局发布了实验小学西校区和梁丰初中西校区两所学校新校区的批前公示。
1
实验小学西校区

△项目鸟瞰图
建设地点:泗港路西侧、义巷路南侧
建设内容:拟在该地块建设张家港市实验小学西校区,总建筑面积约4.4万平方米,建筑高度约21.85米。

▲区位示意图(仅供参考)

△项目总平面图

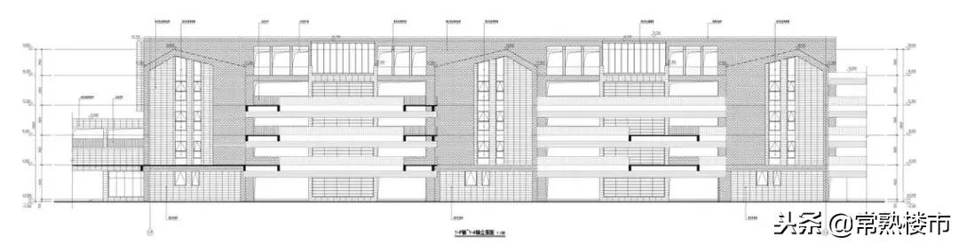
△项目轴立面图
2
梁丰初中西校区

△项目鸟瞰图
建设地点:南庄路西侧、小河坝路北侧
建设内容:拟在该地块建设梁丰初中西校区,总建筑面积约5万平方米,建筑高度约21.2米。

▲区位示意图(仅供参考)

△项目总平面图


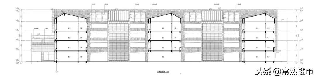
△项目轴立面图