

4月14日,南山区更新整备局发布关于沙河街道天虹商场配送中心地块更新项目的专规草案,由天虹自改,规划5.8万㎡配送中心。
宝安区发布松岗街道雅仕工业区和百宝工业区、107发展带山美后塘工业区等三个城市更新单元规划(草案)的公示。
01
天虹商场配送中心地块更新项目
南山区沙河街道天虹商场配送中心地块城市更新单元已列入《2020年深圳市南山区城市更新单元计划第一批计划》,现该更新单元规划(草案)已经南山区城市更新工作领导小组会议审议。

该项目位于深圳市南山区沙河街道,北临广深高速公路,东临深云路,南邻侨深路。更新单元用地面积16622.0㎡,拆除范围用地面积13702.9㎡,开发建设用地面积8346.6㎡。规划容积58200㎡,容积率7.0。
其中,物流建筑34920㎡,产业配套用房20730㎡(含商业服务设施15156㎡(含地下商业6000㎡),宿舍5574㎡),公共配套设施(含地下)2550㎡(含社区警务室50㎡、社区管理用房300㎡、文化活动室1200㎡、社区级公共配套用房1000㎡)。

该申报主体为天虹商场股份有限公司,为业主申报自改。天虹作为中国零售业巨头,截至2019年3月,在北京、广东、福建、江西、湖南、江苏、浙江、四川等8省25市开设了购物中心13家(含加盟1家、管理输出1家)、综合百货68家(含加盟4家)、超市81家(含加盟6家)、便利店156家。
02
雅仕工业区更新项目
百宝工业区更新项目
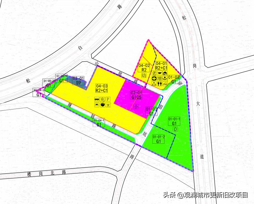
宝安区松岗街道雅仕工业区城市更新单元和百宝工业区城市更新单元已列入《2019年深圳市宝安区城市更新单元计划第八批计划》。雅仕工业区城市更新单元与百宝工业区城市更新单元统筹规划。

该项目位于深圳市宝安区松岗街道松白路与松岗大道交汇处南侧,更新单元用地面积79741.9㎡,拆除范围用地面积74008.1㎡,开发建设用地面积32391.1㎡,规划容积269903㎡,规划容积率 8.3。
其中:住宅161763㎡(含保障性住房11323㎡),商业、办公及旅馆业建筑91070㎡(含商业文化设施4554㎡),公共配套设施(含地下)17070㎡(含9班幼儿园1处、建筑面积2970㎡、独立占地面积 2700㎡,公交首末站1处、建筑面积3900㎡,社区健康服务中心1处、建筑面积1600㎡,社区老年人日间照料中心1处、建筑面积1400㎡,社区警务室1处、建筑面积100㎡,社区管理用房1处、建筑面积600㎡,社区服务中心1处、建筑面积600㎡,文化活动室1处、建筑面积1500㎡,微型消防站1处、建筑面积150㎡,邮政所1处、建筑面积150㎡,地下公共充电站1处、建筑面积700㎡,再生资源回收站1处、建筑面积100㎡,公共厕所1处、建筑面积120㎡,环卫工人作息房1处、建筑面积20㎡,社区级公共配套用房1处、建筑面积3160㎡),地下公共停车位198个。物业服务用房按照《深圳经济特区物业管理条例》予以核定。


雅仕工业区更新申报主体为深圳市华泽置业有限公司,查询工商信息显示,该公司由深圳市华晖集团有限公司占股40%、深圳市汇聚通讯网络科技有限公司占股40%、深圳市金池投资有限公司占股20%。
深圳市华晖集团有限公司成立于1993年,注册资本2亿,旗下控股、持股公司众多。深圳开发过的项目有南山留仙大道的华晖云门,以及坂田的华晖公馆。
百宝工业区更新项目申报主体深圳市汇威房地产开发有限公司。
汇威集团创建于2004年,从2014年开始涉足“城市更新”领域,通过物业收购、股权并购、合作开发等多元化运作模式,在深圳及梅州地区土地储备丰富,其中松岗翡翠阳光名苑及丰顺兰溪谷项目已于2019年入市,已成功开发运营南山科技园研发中心、松岗高新科技园、鹤洲高新科技园、丰顺高科技产业园等。
03
107发展带山美后塘工业区更新项目
宝安区松岗街道107发展带山美后塘工业区城市更新单元已列入《2019年深圳市宝安区城市更新单元第八批计划》。

该项目位于宝安区松岗街道广深公路与沙江路交汇处东南侧。更新单元用地面积26273.7㎡,拆除用地面积22268.2㎡,开发建设用地面积6703.1㎡,规划容积88030㎡,规划容积率13.1。

其中,商业、办公及旅馆业建筑80060㎡(含商业文化设施4120㎡),公共配套设施(含地下)7970㎡(含社区管理用房1处、建筑面积300㎡,社区警务室1处、建筑面积100㎡,社区服务中心1处、建筑面积500㎡,文化活动室1处、建筑面积1500㎡,社区健康服务中心1处、建筑面积1400㎡,社区老年人日间照料中心1处、建筑面积1000㎡,邮政所1处、建筑面积150㎡,小型垃圾转运站1处、建筑面积300㎡,再生资源回收站1处、建筑面积80㎡,公共厕所1处、建筑面积100㎡,环卫工人作息房1处、建筑面积20㎡,微型消防站1处、建筑面积120㎡,社区级公共配套用房2400㎡)。另配建公共停车位50个,物业服务用房按照《深圳经济特区物业管理条例》予以核定。

该项目申报主体为深圳市东建投资有限公司。该项目为东建公司在深圳的第一个项目。