
本实景案例是重庆俏业家装饰设计师为中铁山水天下的顶跃户型专门打造的现代混搭风格装修案例。 ——重庆中铁山水天下案例内容详情—— 楼盘:中铁山水天下 区域:重庆市南岸区茶园新区 面积:220㎡ 户型:顶跃 装修风格:现代混搭 首席设计师:王宇婷 【业主需求】 两代人居住的家庭,除了必要的舒适度以外,还需要有每个年龄阶层的私有空间。希望设计师能为其解决原始户型的痛点难点,打造专属于他们的个性空间。

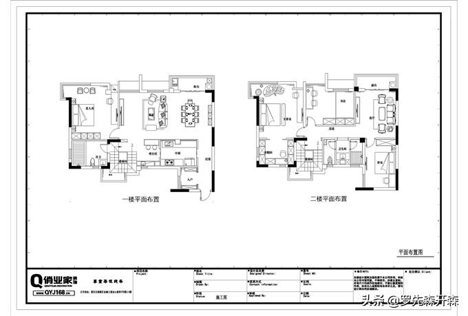
【设计思路】 设计师王宇婷以楼梯改动为引,拆除室内80%的墙体,对室内空间进行整合,根据业主需求,完成1楼、2楼既连贯又彼此独立的空间格局,提高居住舒适度,激活200㎡顶跃空间!

【细节刻画】 1、一楼客厅装修:一楼整体呈新中式风格韵味,选用褐色作为空间主色调,沉稳大气,原始客厅区域面积不大,所以设计师将院馆打通,阔气的大横厅跃然眼前。



2、餐厅装修:将餐厅放到原始客厅区域,让空间变得更加宽敞。储物柜的设计增加餐厅收纳能力。


3、厨房装修:在楼梯改动后,厨房将原始楼梯位置合并使用,扩大其使用空间。由于原始厨房采光不足,所以设计师在后期设计时将厨房反向开窗,一来可以增加家庭成员之间的交流,二是可以增加采光面积,实力拒绝小黑屋。


4、楼梯装修:楼梯改造至户型中部位置,上下楼动线更为流畅,带『活』两层楼,同时采光问题也得到改善。玻璃栏杆时尚大气,水景泡泡灯颜值绝顶。


5、二楼客厅装修:二楼整体基调定在现代北欧,符合年轻一代的审美,灰色系布艺沙发+木质电视柜,大白墙+线条点缀,简单又不失质感。


6、主卧装修:主卧的设计,精致而浪漫,将蓝、灰、白三色杂糅在一个空间里,通透、明亮、干净。


7、老人房装修:中式韵味的房间非常符合父母辈的审美,沉稳而大气,米白色+原木色,衬托空间更加雅致淡然。


8、多功能房装修:该空间分为内区和外区,外区主要用于工作阅读,内区备有一个榻榻米床,但考虑有地暖,榻榻米下面做了局部镂空,避免潮湿等问题。

9、卫生间装修:二楼空间业主只想保留一个卫生间,但考虑到以后有小孩后需要在楼上居住,所以把卫生间跟储物间合并做成了三分离,干净不拥挤。

