- 前言:每年的春节后学区成为热点,很多考虑孩子上学或者刚需考虑教育房的都纷纷打听/收集学校情况,去选择合适的学校。但像去年有两个新楼盘宣传的有配套的初中和小学,结果教育用地都没审批,导致很多考虑孩子上学的很郁闷,也很后悔。当然也有楼盘是地域所属和行政所属不一样,让很多人一时被上了车!
今天就落实辨别教育配套的几个方式和注意点告诉大家,收藏一下,可以推荐给朋友,以备不时之需!多关注,不迷路!
新楼盘:
第一种:在当地住建官网查询项目审批情况,搜索是否有相关地块的审批公示!
第二种:向当地教育局咨询或者针对XX分校的主校区进行咨询。
第三种:对于已交付并开学的学校咨询下往届招生情况,年级学位满的话还是得调剂到其他学校。
第四种:如果没落实出具体的可以咨询有经验的房产中介人员(从业时间长的)协助落实。
注意:新楼盘必须交房并提供购房合同才能上学,也有的是需要落上户口才行。
二手房:
第一种:了解政策:每年的招生都是分批次的,如:第一批次为有房有户口的,第二批次有房无户口的,第三批次有户口无房的,其他批次的是:无房无户口/在本辖区从商的。并不是所有的小学都有无房无户口的名额,缴纳社保的时间决定孩子能不能上或者是上哪所学校!!!!!
第二种:切记的事情:重点学区有六年之内只能有一次上学的记录,即:若卖方孩子已经上三年级了,买方买后孩子只能等三年后才可以报名上学。
第三种:咨询学校招生要求或者咨询所属区教育局。
注意:不论重不重点的学校,购买时一定要落实房子上是否有户口,因为房子户口具有唯一性,法院都没有权力要求将其户口迁出。但可以通过当地派出所对其户口空挂到社区。
不论新房还是二手房,还有个情况就是大社区的,比如中海国际/鲁能领秀城/王官庄,这三个社区学校有,而且不止一个,每个区对应的小学也不一样,千万要注意!!!!!!!!!!!!!
小学对应的初中


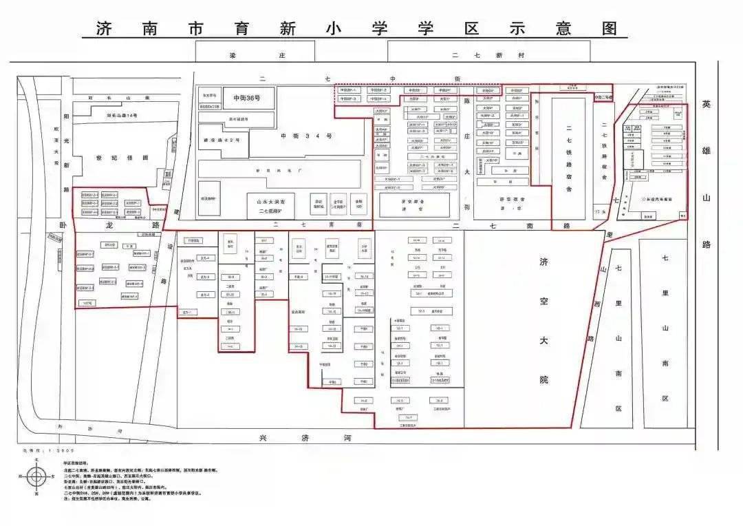
学区示意图
































































结语:关于学区问题可随时私信沟通!多多转发+点赞+关注!非常感谢!
老刘在济南从事房产十余年
有任何关于房产的问题,均可私信沟通,包括但不限于
购房资格/*款贷**条件
合同签约/过户缴税
非住宅缴税(写字间/车位/公寓/商铺/厂房等)等等!