

随着中国科技与制造业的发展腾飞,越来越多的产业园、科技园区在城市中兴起,并不断进化发展。产研类建筑从最初坐落在城市边缘、以生产为主的单一功能建筑类型,逐步走向产城融合阶段。
纵观目前的产业园和产业类办公建筑,主要是在初期单一功能的基础上与城市功能的多样性相融合,以产业带动城市发展,最终塑造为一个全新的完整城市片区,达到产业与城市融合的目的。
然而在城市的发展过程中,时间是一个重要的变量,一个片区的功能组成和性质特点也会随着时间不断变化。对产业园来说,一个既定的建筑空间实体,同样需要根据周边的城市环境要求和产业发展升级,做出灵活的应对。

△城市环境(底图来自网络,侵删)
我们认为, 在时间维度的考量下,产城融合非常重要的理念就是:功能空间的灵活性和公共空间的开放共享。 而产业建筑的功能应伴随着城市功能的发展变化而升级,从而满足企业和产业发展不同阶段对空间使用的需求。
本项目作为金蝶¹东莞松山湖总部基地,位于国家级全球性的高新技术开发园区,拥有规划战略层面优质的发展支持,现状层面便利的交通资源以及优良的自然环境。同时也面对周边大片未开发土地,并紧邻城中村。基于以上特征,我们试图通过本项目²,在时间视角下探索 功能空间灵活多变、公共空间开放共享的未来产业园 。
*1.即金蝶国际软件集团有限公司,该公司是香港联交所主板上市公司(股票代码:0268)、中国软件产业领导厂商、亚太地区企业管理软件及中间件软件龙头企业、全球领先的在线管理及电子商务服务商。
*2.本项目为概念方案。


△项目区位
基地位于松山湖高新区和大岭山镇交界处,东侧的松山湖开发区是全球性科技园区,具有一定的产业基础;西侧为大岭山镇相对边缘的区域,基地位于“城”与“乡”之间。

△周边功能
整个松山湖高新区规划为沿湖发展,其中南部区已相对成熟,北部区正在大力开发建设。本项目所属西部区域处于开发初期,产业氛围尚不成熟,要实现西部的“城市中心”,还需要时间。现状用地周边功能涵盖医院、住宅、小学、幼儿园,缺乏相应的商业和文化配套。区位的独特性带来了特殊的城市功能诉求,既要满足松山湖科技园区科研办公的功能定位,同时也要考虑配套商业等城市功能缺失的问题。


< 生成步骤 >
1/ 裙房落位
充分利用首层价值,在满足退线及覆盖率的前提下,最大化裙房体量,保证足够灵活划分空间。
2/ 垂直切分
分散布置独栋,增强其独立性,并增加其展示界面。
3/ 上下拆分
为增强独栋产品的使用灵活性,把五层独栋上下拆分为二层与三层盒子。通过不同标高的平台组织两个层级的交通。
4/ 塔楼落位
结合宿舍与总部办公各自的产品诉求,从景观视野、形象标志性、独立性方面进行塔楼落位。
5/ 体验空间
独栋与塔楼办公通过露台或挑空空间,增加空间体验性的同时提升其产品溢价与附加值;总部办公置于塔楼顶部,提供更佳的景观视野与城市界面展示;同时设置边庭,高效率串联各层功能空间并提升空间品质,获得更佳办公体验感。
6/ 化零为整
把裙房部分的上部盒子整体包裹,赋予其相对独立的公共空间系统,同时增强项目的整体标志性。

△鸟瞰图

△城市主界面透视图
灵活性策略
我们以适合多种城市功能业态的独立单元为基础,通过单元的组合拼接以及竖向、水平的不同划分,对各体量的分布位置、形式及空间尺度进行控制,使其有承载更多业态的可能,并保证各个业态的空间品质及运营状态都趋于最佳,最大限度满足不同功能空间之间的灵活切换。
/ 功能置换灵活性
商业空间摈弃传统的沿街底商形式,取而代之的是商业独栋。在增加品牌容差能力的同时,满足其商业功能与独栋办公之间的相互转换,使空间随周边城市环境的变化保持最大限度灵活实用性。

△功能转换示意
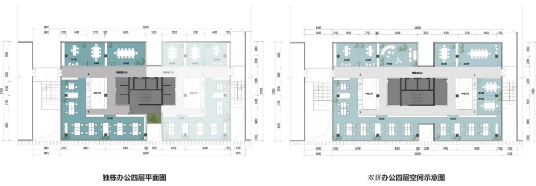
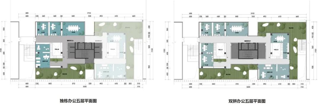
/ 空间拓展灵活性
独栋办公采用双拼形式,通过对核心筒的巧妙布局,实现“可开可合”,既可各自独立使用,亦可通过水平拓展满足空间要求,使建筑空间的使用更加灵活高效。



△平面划分示意
各栋办公之间通过公共交通串联,建筑空间可根据需要进行灵活拓展,从最小划分单元300㎡,拓展至单栋1000㎡,即可拥有独立停车区、入户大堂、电梯厅、户内花园及露台空间,大幅增加其独立性,有效提升空间品质与使用体验。同时可以在此基础上延展至最大20000㎡,以满足企业在不同规模,不同发展阶段的空间尺度需求,打造全生命周期企业孵化器。

△空间拓展示意
开放共享策略
我们从城市、园区以及各个产品独立的公共空间三个层面考虑,分别设置不同属性的体验空间,打造园区多层级的公共空间系统,同时通过动线连接各个空间以形成闭环。
将使用者活动范围向室外延伸,并强化公共空间秩序与层级,不同的层级对应不同的共享对象。通过一系列正式与非正式的交流空间,私密与半私密的花园体验空间,开放与共享的配套空间,创造流动而通透的空间新体验。同时考虑商业运营需求和产业办公的配套服务,赋予公共空间可临时租赁的价值。

△公共空间体系
地面空间:充分利用城市地面空间,设置商业活动、外摆及休闲广场,面向城市开放。

△地面主要入口广场

△主塔楼前广场
下沉广场:结合下沉空间设置商业外摆、艺术展览、学术交流、产品发布等一系列公共活动空间。

△下沉广场空间示意

△内庭院透视
总部办公:总部办公通过设置多处共享边庭空间,增加员工社交、学习交流的非正式体验功能;同时设置大尺度台阶、扶梯等垂直交通,形成垂直动线串联各职能部门,实现未来总部办公的高效性与体验感。

△总部空间示意
屋顶空间:独栋办公屋顶可用作私属花园,作为休闲、娱乐空间;公共屋顶可设置环形跑道及健身设施、同时可用作商务洽谈、企业酒会等非正式交流公共空间。

△屋顶空间示意

科技发展推动产业发展,产业类型也随之变化升级,变化之剧烈在短短数年内就可以天翻地覆,然而当代建筑仍然是工业2.0时代的产品。
我们认为未来产研建筑的发展一定会与城市充分融合,是城市不可分割的组成部分,设计师需要站在科技和产业发展的前端,才能保证产研建筑有足够的前瞻性与适应性。
金蝶·云创谷-松山湖总部基地项目是我们对未来产研建筑探索实践的开始, 在时间维度下的功能空间灵活性与公共空间的开放共享策略是我们始终关注的问题 。希望在未来,在愈发多变的环境下,建筑空间也能最大程度适应这些变化,以其灵活的适应性和开放共享的方式融入城市。
项目名称丨金蝶·云创谷-东莞松山湖总部(概念方案)
项目类型丨产业办公
项目地址丨广东省东莞松山湖
用地面积丨19,383㎡
建筑面积丨86,658㎡
设计周期丨2020年6月


SEED殷雷工作室
殷雷 胡伟 张凌云 张艺 许立基 何星辰
资料来源、版权所有: SEED席得设计