#头条文章养成计划#日前,《首批滨海新区高质量发展投资机会清单》公布,其中介绍了汉沽中医医院扩建项目,具体内容如下:
总投资1.04亿元

效果图
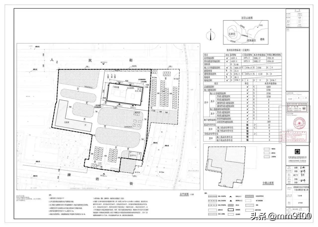
汉沽中医医院位于天津市滨海新区汉沽牌坊街38号,东至杏林路,西至新开中路,南至牌坊街,北至人民街。本项目位于汉沽中医医院院内,医院现占地面积约17734.5平方米项目总投资为1.04亿元,其中工程费用为0.92亿元,工程建设其他费用为0.09亿元,预备费为0.03亿元。
扩建面积达6300平方米
主要建设内容包括门急诊楼扩建总建筑面积6300平方米,包括地上建筑面积5700平方米、地下建筑面积600平方米。
建筑为地下一层、地上五层。
地下一层设消防泵房、消防水池、消防控制室、给水泵房、补风机房、配电间等,层高5.1米。
地上一层设挂号收费、急诊、肠道门诊及卫生间等,层高5.4米。
地上二层设体检诊室、检验、推拿及卫生间等,层高4.4米。
地上三层设针灸、会诊中心、中药房、西药房、儿科诊室及卫生问等,层高4.4米。
地上四层设皮肤科诊室、眼科诊室、耳鼻喉诊室、外科诊室、口腔诊室、妇科诊室、阴道镜、门诊手术及卫生间等,层高4.4米。
地上五层设康复诊室、康复治疗室、国医堂诊室、治末病诊室、卫生间等,层高4.4米。
屋顶机房层设水箱间、排烟机房。
资金来源:申请政府专项债+融资模式解决。
总平面图公示如下

来源:滨海新区发改委、滨海视窗