似迭次错落的屋顶,又似层叠起伏的山峦
项目标签
设计公司: 十域建筑 Domain Architects
位置: 中国
类型: 建筑
材料: 石材 木材 竹木 金属 混凝土 玻璃
标签: 河南
分类: 休闲娱乐 商业建筑 酒店
酒店位于云台山景区附近,场地中可以远望云台山,但是场地本身处在烂尾别墅区、破败的村民房屋和工业场地的包围中。这样的小环境对于景区酒店而言是致命的短板。酒店包含48个多样的房间、流线独立且对外营业的餐厅、宴会厅、游泳池及地下车库,场地中还包括为二期建设预留的空间。怎样在这样的场域中扬长避短,在极其紧张的空间、预算和时间内,兼容复杂多样的功能、营造独一无二的高品质空间体验,是本项目面临的一系列挑战。
▼项目周边环境和远处的云台山,Site environment and the mountain far away © 张超

▼西立面,Front façade © 张超

▼前院,Front yard © 张超

天空之院所在的修武县七贤镇,因竹林七贤的隐居地而得名,业主也希望可以在设计中传承这一文脉。竹的元素,以或虚或实的方式遍布酒店内外,如前后院落中的竹林、场地外围的竹篱以及前院的竹模混凝土围墙等。
▼由前院看向北侧山脉,viewing the north from the front yard © 张超

▼前院与水池近景,Close view of front yard and pool © 张超

▼人行入口,Pedestrian entrance © 张超

▼外立面与竹元素细部,detail of the facade and the bamboo element © 张超

掀起的房间开口轮廓,在外部汇合成了建筑的外立面,与当地山坡村落中坡屋顶迭次错落的景象相暗合,又与云台山层叠起伏的山形神似。面向场地内侧的房间将来会与二期建筑共同围合院落,因此较为开敞。建筑场地面宽狭小,但是需要同时满足车辆落客、住宿独立流线、餐饮独立流线、出入地下车库以及后院临时停车场(二期项目预留场地)等要求,相对于较小的面宽而言,整体流线高度复杂。设计将酒店整体抬升半层,缩短了车辆坡道距离,又丰富了行人进入建筑的过程体验,高效地解决了这一系列问题。我们将开挖半地下层的土方移到前院,使得建筑前庭院的地面亦从地面“掀起”,像抽象的起伏山形,与远处真实的云台山遥相呼应,也暗合古典园林中“开门见山”的手法,同时实现了场地土方平衡。
▼内院和泳池,Courtyard and pool © 张超

▼南侧局部 ,south side © 张超

我们认为,房间内的体验是酒店的绝对核心。因此我们回到这个原点,重新审视酒店房间的设计:常见的民宿和酒店,每个房间都是一个外向的方格子,以便最大化摄取外界景观,酒店整体也往往成为方格子的堆叠。“外向的方格子”已成为当代酒店约定俗成的空间构成范式。
我们决定颠覆这种常规范式:首先将房间对外视线以下的部分全部遮挡,视线以上的部分保持开放;然后将开口进一步“掀起”,让客人享受到更多的天空、阳光和风;最后将室内部分后退,在每个房间内都营造出私享的微型庭院。细框的玻璃推拉门弱化了室内外空间的分隔,我们还使用可以完全收在细槽内的风琴式电动卷帘取代了常规的拉帘,让室内与内院在视觉上完全贯通,将客人的注意力完全引向像画卷般展开的天空和山景(房间开口中的山影也成为了标志设计和导视图形设计的起点)。从日出到日落,阳光与弧形的墙面在不同的角度,都会产生不同的光影效果,给人以极致温柔的感动。
▼客房概览,general view of the guest room © 张超

▼房间开口的框景仿佛拉近了山与天空的距离,Room and micro yard © 张超


▼房间内微型庭院,Micro yard iun a room © 张超

▼客房细部,detail of the room and micro-yard © 张超

项目在概念方案刚刚完成后就打算开始结构施工,导致室内设计的调整空间被大大压缩。但是我们依然坚持把“掀”的策略延伸至室内设计的方方面面:在首层的所有公共区域,半弧形顶的连续空间,仿佛从墙面和天花板“掀起”,成为客人的主要行走流线, 从首层的大厅和包间向外望,半透明磨砂玻璃包围中的透明开窗,将前庭和远山框在一起,又形成了动人的借景和框景;在客房层,墙面“掀起”成为房间号码的标识,也打破了走廊的单调感;餐厅的引导台和房间内的抽屉拉手,也通过“掀”的方式生成。
▼客房通道,墙面“掀起”成为房间号,Corridor and wall details © 张超

▼餐饮前厅,Restaurant lobby © 张超

▼首层公共洗手间,Public restroom © 张超

▼前台细部,Front desk © 张超

天空之院以极其克制、凝练的手法,突破常规,在不可思议的场地营造出不可复制的动人体验。设计没有浅显地引用中国传统视觉元素,却把“藏”与“露”、借景与框景等古典造园方*论法**进行了极致的运用。
▼夜景,night view © 张超


▼场地卫星图,Site satellite © 十域建筑 Domain Architects

▼首层平面图,Ground floor plan © 十域建筑 Domain Architects

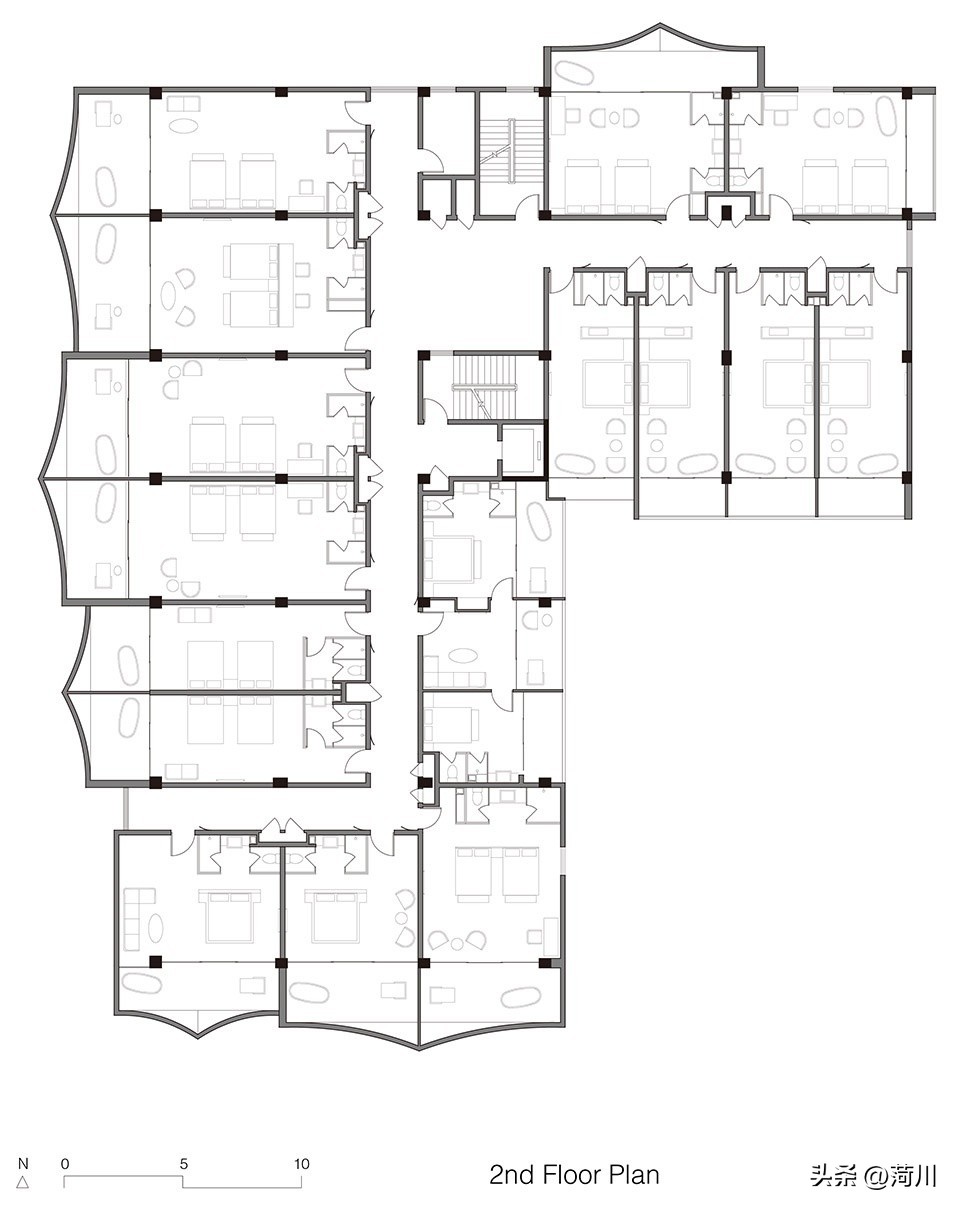
▼二层平面图,2nd floor plan © 十域建筑 Domain Architects

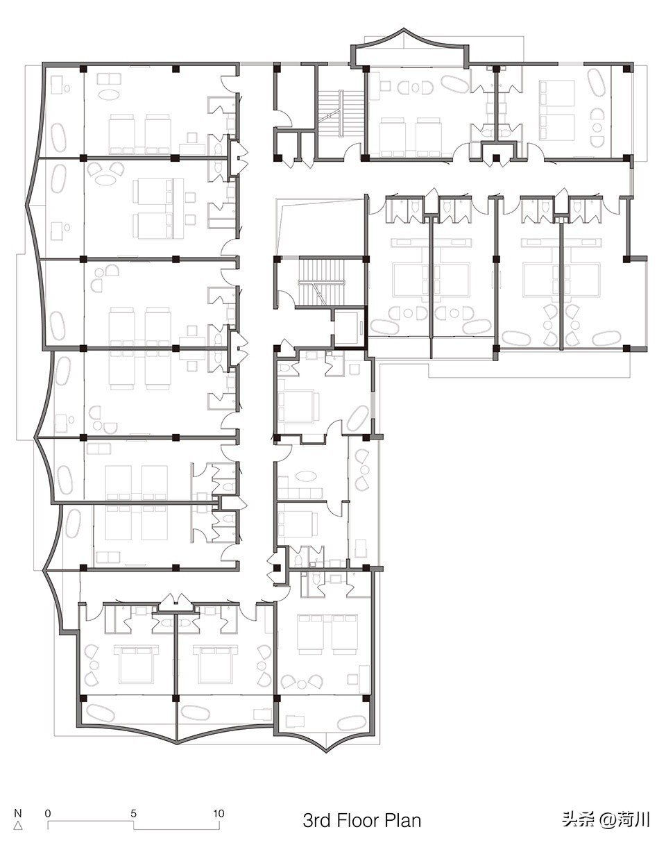
▼三层平面图,3rd floor plan © 十域建筑 Domain Architects

▼四层平面图,4th floor plan © 十域建筑 Domain Architects

项目名称: 天空之院酒店设计单位:十域建筑 Domain Architects事务所网站: Domain-Architects.com 联系邮箱: info@domain-architects.com 设计时间:2019年9月-2020年1月建设时间:2019年12月-2020年12月主创建筑师: 徐小萌设计团队:徐小萌,王淳项目地点:河南省,修武县,七贤镇云台大道建筑面积:4900平米摄影师:张超结构咨询:和作结构建筑研究所施工图设计:河南省城乡规划设计研究总院土建施工:修武县都福永团队建筑、室内和景观施工:河南省居泰隆装饰工程有限公司客户:私人