


本案位于成都棠湖泊林城的一处天幕大平层,居者为一对年轻人,比较追求生活品质,喜欢极简元素,但又希望极简的同时充满温馨感。设计团队在充分了解业主喜好后,适当地通过空间语言去表现“家”的意义,秉持随性自然的设计理念,使之成为家庭情感的联结。
硬装所有采用极简的设计手法,墙面用了大量的浅色直纹木墙板,质感舒适。低饱和度的空间色调,柔和的视觉效应交织出温暖气息,让家的意境更自在有趣。

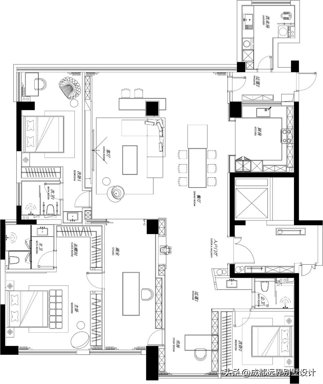
Housing layout/平面图

YUANJIE . DESIGN
棠湖泊林城&251m ² X 台式极简


进入室内,柔和的木色包裹着空间,让居者回家就能感受到家的温暖氛围。入户设计的端景台嵌入灯带,将简洁调性的仪式感融入空间细节。



住宅空间就像一个做加法的过程,从无到有,其本质是自然与人的调和。设计师运用大平层空间优势,将各功能区有序布局,使得空间动线、采光得到最大优化。
客餐厅整体用木饰面铺陈,着重烘托线条质感的空间氛围。沙发选择了浅灰色,通过材质、色彩的调和,营造出秩序美感。超大落地窗引入自然光线,让整个空间视感光线,更加开阔透亮。


客餐厅开放式布局在视觉上大大增加了整体的空间感。皮质餐椅线条舒适温馨,西餐岛台简洁而不失质感,轻松营造出精致优雅的就餐氛围,为生活注入了艺术美感。
在高品质的生活方式里,享受美食是重要的一项,一家人在餐厅吃着家常便饭,便是身心最好的慰藉。


厨房入口做推拉门设计,满足业主了生活习性。洗涤区、操作区、烹饪区完美设计,让厨房空间动线更加便利。


在入户一侧设为书房,楼高的视野空间让办公氛围安静且放松。墙面的黑色柜体与书桌自然衔接,简洁有力的线条结构,干净利落,与生俱来的线性美感,置于空间之中。


画室延续整体风格,原木柜体作隐藏式设计,满足居者的收纳需求。由于居者热衷水墨国画,多有在地面作画的习惯,因此画室活动空间大,便于居者日常作画。


主卧没有对其进行多姿多彩的色调,以及层出不穷的造型来烘托氛围,而是以简约素雅的元素营造舒适淡雅的居住氛围。



老人卧室主卧的设计比较注重温馨感,空间的暖色调能带来更好的睡眠质量,白色的纱帘让光线变得更加柔和。老人有看书的习惯,因此阳台区域为老人设计了一处书桌和休闲椅。



次卧色调温和素雅,浅灰色布艺床品营造出舒适柔和的休憩氛围,给居者一个静谧舒适的睡眠环境。
项目信息
ABOUT THE PROJECT
项目地点 | 中国 成都﹒棠湖泊林城
项目户型 | 大平层
设计面积 | 251m ²
设计风格 | 台式极简
设计团队 | 有无工作室