【楼盘名称】高山流水【建筑面积】577(使用面积700多)【户 型】独栋带360度花园【包工方式】半包【基装预算】79w(不带花园和主材)【风 格】北欧乡村 三维鸟瞰图

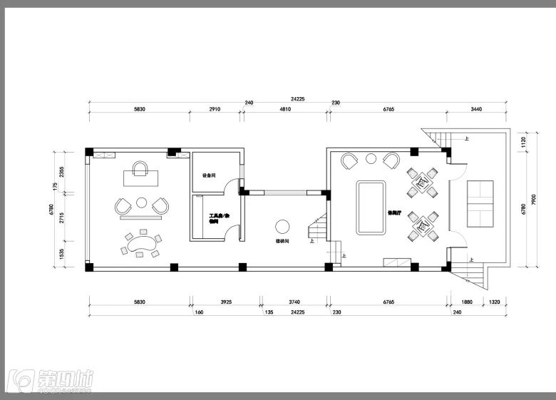
平面设计图

第一层

第二层

地下室
一、基本简介 从找装修公司到整体软装结束,均由大叔全部完成。这对于大叔目前的级别,从蜗居直接上升到独栋 别野 ,跨度历史之最!标准的亚历山大啊!
二、格大叔是谁?
得瑟一下,在这里知道大叔的人很多,但不可能是全部!所以这里浮夸一下~
全新装修日记正在火爆更新中:
1、《格大叔四城第三篇日记~西锦国际85平北欧民宿》
2、《漫漫装修路,比邻有缘人》-经典老贴,点击量48万!
3、《温暖的150平纯正简美风》-有部分主材商家地址链接!
4、《毕业在秋季》
5、《格大叔深度分享~地暖使用感受》
6、《禾香板vs欧松板》
7、《入住两年后装修经验汇总》-干货必看!!!
三、格大叔的奖项:
1、第四城装友会第八届装修日记大赛夺双冠~奖金7999闷现过现2、欢乐佳园第九届装修日记大赛再夺亚军~扫地机器金刚入住大叔家3、欢乐佳园秀家大赛再获第三名~得春节大豪包~4、东升布艺晒家有礼获第一名~得现金大红包5、《定制衣柜》征文大赛获得第一名,得现金大礼包6、《2017家居定制节原创帖大赛》获的三等奖~得豪华奖金~
7、《第四城装友会第十二届装修日记大赛》获三等奖~得现金豪包
四、装修公司的选择
必须是四城平台商家啊,大叔太爱四城了,这是个除了可以买地砖,还可以滋生情感的地方。佳园的经历虽谈不上完美(其实没有任何公司可以做到完美),但给大叔的印象正面远多于侧面,让那一丝丝不愉快的过往随风~~~
但是丑话还是要说到前头:大叔是众所周知的细节控!大叔不会为别人的错误买单!出现问题在所难免,我们共同去解决。怕的是重复出现相同的错误!怕的是出现问题不及时处理!
兔子、波叔,我真心希望与你们开始的是一段缠绵,而不是一场博弈。
五、设计师的选择
为什么没有选择我家阿星?这一点必须澄清。
事情是这样的:目前阿星的人气不管是家园内部还是网络平台,都已经的大红大紫了,人品和设计水平(特别是美式)。是大叔感觉最好的。但阿星目前接的单子爆表,再做远程别墅设计,耽误的时间太多,从经济上来讲,并不划算。再者,这次大叔参与设计,需要全新的思路,彻底甩掉美式的影子,打造崭新的北欧风格,阿星太迷人了!容易影响我的决断。所以,最终与阿星协商后决定,这一遭与目前佳园的小龙设计师携手并肩,创造新的辉煌~~~
六、主材选择
1、强化复合地板:必美(必须是欧洲进口环保王!没有之一)
2、自流平AB乳液水泥地面:邓师地坪团队(大面积,地下室全部、一楼公共和二楼公共)
3、断桥门窗及钢结构阳光棚:华申门窗(全屋及户外,巨大面积,工厂源头,性价比超高)
4、仿水泥地亚光砖及厨卫地砖、墙砖:传说中的仓库地砖(一厨八卫加所有户外平台)
5、中央空调:鸿杰暖通
6、卫生间玻璃隔断及部分石材卫浴柜:一帆卫浴(八卫)
7、木门及原木大门、玻璃楼梯扶手:祥云木门
8、石材:室内大理石、户外梯步围墙边火烧石:小彭石材
9、文化砖、城堡石:新都文化石工厂
(第一帖):
前期的考察工作虽然艰辛,但还是在预计时间内定下来了,因为年末将至,大叔的事情也会多起来,所以抓紧时间按部就班,目标是在春节前完成水电。前期和设计师碰撞的效果比较理想,确定风格和初期规划。昨天订金已交,今早叔专门请假一天和大叔的朋友、兔子、小龙、小龙的小美女助理、一起驱车前往青城山大观高山流水别墅量房。

来一张前些时候拍的外部全景镇楼

佳园客户室,温馨的环境~~~

和小龙确定初期方案好了,现在开始今天的记录:

9点半出发,结果兔兔他们输错了导航地址,导致两车南辕北辙。不过作为潮人级别的大叔,打开微信位置共享,很快与兔兔会合,两车10点40准时到达目的地。

自带北欧顶~

两小菇凉量房,有点小担心(玩笑)

天井式,豪啊!

二楼通往主卧的梯步,太喜欢了!

目前墙壁虽然斑驳,但我看到的是一年后的美貌模样~中午一点,大叔和朋友先行离开~只留下小龙三人还在冷风中~~~测量~~~感动中!!!!
(第二帖)
两周时间一晃而过,虽然别墅的体量太大,但所有的程序也是按部就班的进行着,小龙的平面图终于在大叔的千呼万唤之下,即将震撼出炉~小龙设计师,你辛苦了!这期间大叔也考察了一些主材~先是门窗及纱窗~



华申的铺面虽然很小,但东西实在,价格比起大卖场极具竞争力,特别是纱窗合体的型材性价比很惊人~师傅下周先去项目测量尺寸后再说~


原定的二楼卧室区使用必美强化地板,由于项目地处青城山,潮气很大,主人家有些小担心。叔立即与必美老总和店长取得联系,得到的答复是肯定的,必美地板的防潮性能优秀!

地下室的防水处理也是非常担心的,叔与兔子取得联系,要求进行设计施工会诊,落实可行可靠的防水方案!

出平面图前,设计部进行了最后的讨论,大叔的要求立刻得到积极响应,此处点赞一次!掌声!希望以后的工作也按照此方法继续执行!!!哈哈!!!万事俱备,只欠东风!约定下周二和小龙设计师进行平面图沟通!深秋来临,叶子黄了!气温骤降!注意保暖!下周银杏大片走起!

最后送个前几天在楼顶拍到的超级大月亮给城友们!祝心想事成!万事如意!2016年11月17日更新~
(第三帖)
关于这套别墅的装修风格叔与主人小马进行过比较深入的沟通,开始之初考虑的是纯正的工业风,但这类风格的线条过于硬朗,对于纯正的会所或者酒吧会更加适合,况且造价并没有想象中那么便宜。 我们这套别墅的作用是集轰趴,度假、团队聚会为一体的多功能场地,所以最后想在北欧轻和轻工业风之间走,但又要融入返璞归真的原生态元素,情况复杂~ 下图是小马对向往的原始生活状态的一个描述~






2016年11月19日更新
(第四帖)
成都史上最凶雾霾即将送走今年最后的一个月,2016将与我们永别。
回想起这一年的历程,感动多于抱怨,感谢生命中那些美丽的遇见,岁月匆匆,且行且珍惜~ 余花园、鼎格暖通和华申门窗都相继到场,初步的预算和设计都出来了,前期的筹备工作向前推进,预计下周出3D效果图及最终预算。小龙设计师是个非常把细的人,每一个细节都需要落实。

负一楼的改动挺大,停车库填平改为休闲娱乐空间。

一层麻将室全部改为房间,开放式中西厨合为一个大中厨,消灭油烟。

二楼主卧恢复成传统布局,增加一个小孩房。这种改动增强了整体功能的实用性,但增加了设计风格把控上的难度,小龙设计师,你得加把劲了~2016年12月7日更新~
(第五帖)
话说成都雾霾终于告一段落,今天的天空开始出现蓝色了。天气如此,装修亦然。
度过了漫长的等待期,设计师张小龙终于在四面楚歌中喘着粗气,带来了惊艳的三维效果图。




















3D效果图此处不做详细解释,只是说说沟通过程:女主,小龙,我,兔子、还有外援胡星于周五(12月23号)经过三小时时间,再次确定了需要改动的部分:
1、一楼过道改为开放式。2、主卧去掉吊顶设计,露出坡顶构架。去掉小孩房围墙。3、地下室去掉书房。4、原则上尽量不动墙,对一楼的房间卫生间尽量保持原有格局。

我家小龙

我家阿星~3D图终于凌空出世~
感谢设计团队,这一次,我的确还没有发现明显不足,作为超级细节控的大叔,此处只能给你们掌声!加油!大叔坚信,付出一定有回报。就在当天,女主的朋友也慕名找到阿星,立马下了另外一套别墅的订金!!




这次更新内容很多,上图是确定效果图第二天,公司对于预算的准确性和施工的可行性非常重视,报价中心、设计师、项目经理袁队一行人再次去现场勘查。哈哈~这个节奏~~因为自流平水泥地基本确定的是给大叔打地坪的师傅,而他又是给美景总部做水泥地的师傅,为了确保水泥地的质量和效果,大叔专门跑了一趟天府三街的美景总部看看水泥地成品。



查看结果:自流平真的很平,水泥地的质感还不错,但肌理不明显,由于常规水泥地的特性,部分开裂无法避免 。女主表示,可以接受。后期在色度上做一些调整。下一步工作:联系地坪师傅去现场落实。这周内鱼儿把新设计图的空调地暖方案做好。2016年12月27日更新~~~
(第六帖)
今天,成都的太阳完全出来了~这世界终于走出阴霾,欢呼雀跃时又有感叹美好的时光总是短暂,珍惜那些在我们生命中驻足停留的过往~ 1月11号下午,公司贵宾厅。 高山流水别墅签订施工合同,基装总价79w(不包括花园和主材),200w入住计划宣告失败!计划开工日期是2月18号,计划工期是223天。
这是叔装修以来最华丽的篇章~
推开土豪的那扇窗,你会发现,那是你无法预知的世界。 主材用量表已出,公司准备充分,感谢前期付出劳动的工作人员~这是一场硬仗。。。 花园预算已出,但走得有点远,因为停车场回填设计到地下室防水质保问题,这一项已决定交给佳园来做,一定要给力啊!其它项目只能暂时搁浅,实体围墙设计到施工太复杂,已考虑其他方案,今天约了苗圃的余老板再谈。 因为别墅是度假加轰趴馆,平时都是空闲的,所以决定取消水暖,增加空调功率来满足整套别墅的采暖。已定鼎格鱼儿,日系日立。小鱼儿,叔一直看好你哦,多费心了!但先说断后不乱哦!叔是出名的细节控哈!!!


2017年1月13号更新~
(第七帖)
2月18日,是个喜庆的日子。在这春暖花开的季节,高山流水别墅正式开工。昨天在微信里面说好的10点半到场,大叔9点就出门,结果悲催的是成温邛路口堵车,不得不调头走成灌高速,到达目的地迟到了10分钟,遗憾的是剪彩仪式刚刚玩,还好一些技术交接才刚刚进行。非常隆重华丽的前所未有的开工仪式,车子都停满了,各部门人员都到齐了。下面借着美女摄影师传来的照片,我们就开始看图说话吧。

开工春联~

袁队开始准备放火炮

布置开工现场

~~~~

红红火火的开工鞭炮

礼花~男主到场,知名人物。。。。。波叔的位置有点跑偏~左边是袁队~右边的小龙~小黄人

大叔也自爆一张。

厚厚是施工图,多少个日日夜夜,这又是个漫长的过程~


验房队进行在最后的验收,手中的的*器武**就是传说中的收房利器空鼓锤


监理再次确定交接验收。




小龙在进行打拆标注,这个一定要仔细哈。承重墙千万动不得~需反复核实~ 图片压缩太凶,只能看个大概,朋友们将就哈。说哈重点:这场开工仪式是用了心的,搞得隆重圆满。感谢每一个为此工程前期付出的朋友。也希望在以后的每一步都要做细致。袁队给我感觉很好,是个老实事,吃专业饭的人。以后多辛苦你了。目前的情况是:周一工人进场,开始打拆。打拆的位置需要反复核实,这个是大事情,不允许犯错。小龙、队长费心了。空调、门窗、衣柜橱柜、地板已经落实,地砖、隔断、石材还在考察中,有意向的主材商家可以给我站短或者回复联系。咔咔~2017年2月19日更新~
(第八贴)
周一关了地暖,结果周二就开始爆降温!看起来还要降温好几天!悲催!只怪自己功课做得不够,这就是不注意细节的结果!开地暖呢又要多费20多方气来启动,叔是个抠人,舍不得,算求,叔挣得都是血汗钱,还是晚上回家开哈卧室小空调要节约一点。但是今天也有高兴的事情发生,高山流水别野终于开工了,工人正式进场,打拆开始!袁队从现场发来照片,不过这清晰度,我感觉脑壳有点晕~~~哈哈~~~


专用小黄梯,很亲切啊~

这猛工程一启动,动静就小不了~


楼梯做了安全遮挡,细节做得总是让人放心。


这高度的打拆有点让人胆战心惊~注意安全~

2米以上必须使用安全带哦~袁队,不是叔找茬,你懂的~

袁队今天也查看了现场,发现一些小问题,等电位接点脱落,要记录一下,不要忘记恢复哈~说点感受:这次开工叔的预感非常好,这是个好的开始。2017年2月21日更新~
(第九帖)
因为大叔下周要出差,所以这周末一定要到工地看看。想到寡跑一趟工地,收效并不大。所以头天就约了地坪师傅,上午9点10分出发,10点45到达高山流水,进门保安要敲诈我5块钱,自然不得给三,我提高嗓门说你们不是才收了物管费么,保安才很不了然的开了门。地坪邓师已到,一起看了现场,找平的厚度在标准范围,不用加钱,方法是先找平,等干完了再补收缩缝,然后做三毫米厚的自流平,但是清漆刷在表面要不得,艺术漆价格又走得好远,电联小龙,落实了水泥地和墙面的收边用现场制作的水泥踢脚线,标准北欧风格应该是亚光地面,查看了小马发来的地面效果图,最后确定为亚光自流平,不刷表面漆。下面看图说话~

地坪邓师傅在查看现场~





打拆现场,这打拆量的确不小,建渣堆成了小山坡。工地派有负责人留守,工人们在往外小心翼翼地搬运,整个现场看起来井井有条~


工地规范~标示清楚~今天打拆已基本结束,下周开始补烂。

今天阳光灿烂,草坪的桃花盛开。。。。。接下来二周计划:
1、考察落实衣柜款式
2、考察落实一帆隔断款式
3、考察落实必美地板款式
4、考察落实祥云木门及楼梯的款式
5、考察天丰地砖
这阵仗刚一铺开,已经是浓烟滚滚了~~~~2017年2月26号更新~
(第十帖)
周六才更新,短短几天,又发生了好多事情,都值得记录。今天叔想到哪儿就说到哪儿哈话说佳园第十二届装修日记大赛又开始了,记得大叔在第八届得鲁班奖、第九届得亚军、第十届和秀家第一届得季军,一篇日记就获得了那么多的光环,这脸皮还真厚实的,不过叔就是拜金族,吃票子拿奖品的事情总是令人开心的!哈哈~说正题,大叔这次是作为欢乐佳园装修日记大赛的颁奖嘉宾来的,升级了~这逼格不断的高升啊~上图片~

还是不变的主持,不老的薇儿依旧漂亮~当然,龙少(左)的人气也在不断的攀升~

开场舞~原谅我~大叔的角度不会和你们希望看到的一样~

这是谁?难道就是传说中新进的神秘女摄影师???!!!

重点是下面这张~~~

好吧~自爆一张镇贴~大叔的周一出差到宜宾,周三晚上就回来了。因为网络不好,基本就没有耍手机,重要的是没有打开第四城装友会。结果,就在大叔出差的当天(27号),装友会终于在大叔的新帖首次登上了首页头版!但由于我是今天才看到,所以截图也没有了,只有系统发来了站短~但仍然值得纪念!


回到成都,就该做正事了。我和小马兵分两路,小马去东门琉璃居然之家拿下全套洁具,我前往大湾一帆卫浴和府河的祥云木门。


一帆是装友会的老商家,服务过大叔。铺面很瓦,但东西大叔觉得产品性价比还可以。适合就像大叔这样的,朴实无华的人。哈哈~隔断这东西五金玻璃结实就好,所以不出意外,一帆应该是最重要的选择。今天大叔还带了另外一个朋友,美洲花园新装修的朋友,当即拿下两个隔断~

离开一帆店面,已经12点了,我们匆匆吃了点天回镇的何氏豆腐,说实话,今天第一次感觉何氏的味道很一般,所以这可能是最后一次了。祥云木门在府河木综厂写字楼,10几分钟就到了~


虽然展厅比较凌乱,但东西还是很齐全,从板材门到指节杉木,再到原木都有,中间这档的价格比想象中惊喜~

因为是靠谱的好朋友介绍,这个应该别墅木门应该是重要选择之一~然而美洲花园的朋友一眼就相中了一款乡村风(第一张第一款)还有楼梯也中意,这是个性情购物冲动狂,废话不说,一并拿下~居然之家东门店一直是大叔的最爱,优惠活动很给力,主要是商场愿意出点血。下午小马也在居然之家大获全胜,七个卫生间全线科勒,正价4.5折再打八折,最后总价商场再让五个点(95折),算下来应该就3.4折哇??数学不好??总共花了37000多~






这价格比我买的时候又便宜了还几个点~真给力!周六计划:定制衣柜考察~到时会有更新!亲们请准时围观!咔咔!!2017年3月2日更新~~~
(第十一帖)
这装修一动起来就觉得好多事情堆起,不光是高山流水,还有美洲花园,大叔的朋友也让给全线把把关。所以这周叔不是奔波在通往主材的路上,就是停留在考察主材的店上。先说说高山流水的进度:打拆已经完全结束,补烂进行中,工地如火如荼。


墙体砌得不错,看起来很标准。



袁队为了方便高空作业的师傅,拉来了水泥搅拌机,提高工作效率~315的优惠活动应该是全年之最,所以品牌主材建议在这个节日搞定,周五下午,必美双楠店。因为8间房全部用木地板,大致确定的是浅木色系、特价、小做旧且个性张扬。叔初步选出来的是这样的:

三合一,大小版。

做旧小清新

工业风~

当然,大叔是有情怀的老年人,6256,永远的经典。电联小龙和女主,五分钟之后,工业风胜出~下定工业风,定金已交。特价之后再打折~哈哈~预计发货时间为三个月。

大叔说:每一次装修都是唤醒潜能的过程~定制衣橱柜方案周五交给曾设计开始做,预计一周内等到方案做好了和美洲花园的定制衣柜一起抽一天全部就搞定,但美洲花园的席老师工期逼得紧,定制衣柜这块需要尽快落实,所以周六一早叔就联系好了门店经理,和席老师约好了在软装馆碰头。

门店经理在进行板材比较~这小姑娘还挺不错的~小小年纪就忘我的工作~好难得


这个电视组合柜席老师一眼就看上了,价格在接受的范围,比纯装饰的电视墙适用多了~具体布局做一些调整~拿下~衣柜橱柜的门型都采用极简的平板。


今天下定的东西:一组衣柜,一组大组合柜、一组书柜、一套橱柜、一组衣帽间、一组储藏柜、一组鞋柜、门和柜体材料都采用环保禾香板。预算价格在可控范围。上午完成了定制,保利百合的高老师又打来电话说她的新房已经入住,请叔去耍耍。高老师这套房子是阿星主刀,期间大叔提供了不少大胆的思路,所以效果大叔非常期待。但苦于叔今天没有带单反,只有手机将就拍拍。下次带相机重新拍一套。

熟悉的沙发~熟悉的绿墙~

撞床了~好亲切~

公举房~


纯正的美式乡村~太棒了~

外型很蛮男主精心挑选的墙饰~ 刚毅的外面里藏着一颗萌萌的少女心~哈哈~咔咔~太赞了~2017年3月5号更新~
(第十二贴)
今天有连续更新~本来上周六就要更新的,但据大叔多年的经验,一般来说周末朋友们都在无限的*光春**中享受天伦之乐,所以四城装友会平台的周末都会比较冷清。叔这次就留了个小心机,周日下午更新得到的关注和点击会更多~哈哈~这个周末大叔也抽空去了趟崇州的重庆路看油菜花,这个时候还属于初期,天气不好人少,不过开车穿过花海的公路,心情真的很放松。花期估计还有半月才到最好,朋友们可以约起哦~


这个四轮车力量很猛~

养蜂人

开了三分之二了,上面还有好多花骨朵

有意境了~

欣赏了美景,开始今天的大更新~首先是天丰仓库的厨卫墙地砖~

所有墙砖全用这个老白砖,很穿越!

不过在上边拉15x15的槽子之后再填黑缝出来的效果就霸道了,和小砖的效果完全一样!而且铺贴费用还是算常规的,可以节约好多米米,这是张小龙设计师的好点子!所以大叔常说,好设计师不可或缺,这些过筋过脉的地方你一般老百姓咋想得出来嘛,值!

普及一下拉槽~地砖全采用水泥砖,这东西现在是主流啊~一个牌子就有好几种花色~看来今年的装修调调是北欧的天下了~

厨房地面,这个看起来不夸张,比较清爽~

卫生间地面~完全就是水泥板子的味道~

户外地面选用了比较夸张的,这个表面坑洼要深一些,露天防滑,安全第一!

主卫地砖要区分一下,妖艳儿一盘~黑白水泥花砖,低调的奢华,适合女主~小结一下,得瑟一下:以大叔现在的级别,如果还以零售价博弈地砖的话,那太没有水平了!保证广东砖!浮夸的叔不来,价格不表~天丰仓库瓷砖,价格低至落泪!订完了地砖,离一帆卫浴也不远,就杀过切再落实了一下价格,价格便宜,还送防爆膜。一帆卫浴 还是多靠谱的,话不多,做事踏实。下定!
(第十三贴)
木门的考察也有一些时间了。今天终于下定~过程记录一下~

首先普及一下我们要选择的家用常规木门~因为大叔最先考察的是四城合作商家~帝露白门(顺利木门)我们拿帝露白门来做一个示范,中间是指节实木,外层是实木板材,当然,帝露是做白门的,就多了一个高密度板材贴进口面皮。一般的没有那层高密度板。

帝露白门和帝露木门现在是两家人,所以现在他们在推顺利木门这个牌子,走的是中高端路线,但是就大叔目前别墅省钱风的选择来说价格不合适,超预算太凶。但经过考察这家木门还是挺不错的,10月份交房的那一套的木门也许会考虑他们家的。最后确定的商家大叔前几章有提及,祥云木门,优势是款式可以随意选,定做~还有就是价格也很合适!

开始准备仿tata这款极简,但是没有找到合适的木色,几经纠结只有放弃这个款式。

就在我们一筹莫展的时候,无意中大叔发现了四城里面有一个北欧贴《Hill山丘设计+旧房改造》,里面的白色木门既简单,调子又正,一下就把我的眼球给锁定了,祥云答复随便做,发给女主和小龙,大家一致赞同,木门就这么定下了~感谢装友会~感谢猿粪 @我要控制好自己

卫生间和厨房门起先考虑的是钛合金,结果问遍了成都的钛金商家,都没有找到纯正黑色,只有这个黑胡桃色,和工业风的调调不怎么搭,所以现在暂时选择矩形黑色钢管加玻璃做卫生间门,缺点是有点重。容我们再想想~
(第十四贴)
高山流水的衣厨柜设计图昨天出来了,耗时一周,小曾设计师的图纸做得非常细化。点赞小曾设计师!先下定等待测量,后期有改动再做调整~下面附全套设计图~高山流水工地现场袁队正在按部就班的进行,目前补烂主体已经完成,在进行墙体抹灰和局部修补,下一步就要联系橱柜、空调的商家进行水电交底了~



最后我们预习一下即将发生的那些繁琐的事情

