广东·深圳前海三小学
深圳大学建筑设计研究院·元本体建筑

沿街立面-吴清山

沿街透视-吴清山
近年来,随着深圳的快速发展,城市建筑的高度集约使用导致城市空间密度不断增加。在一系列政策的同时,城市人口增长如此之快,对学位的需求急剧增加。未来教育对建筑功能的多样化需求,导致学校空间硬件指标的进一步提高。考虑到城市用地发展的适应性,人口规模、教育理念、高容积率(容积率)、高密度的学校已成为深圳市中小学设计的热点和挑战。

沿街东南角透视-吴清山

校园西北角透视-吴清山
前海第三小学(现更名为深圳市南山实验教育荔湾小学)位于深圳市南山区大南山脚下,东临月湾大道,西临前海路,北临岗前路,南临居民区。学校的总面积是13048平方米。在最初的公开招标中,学校要求有24个班级。由于周边学位严重不足,班级数量调整到至少36个,所以最终面积为33200平方米,容积率为1.7。与深圳标准0.8的合理容积率相比,在如此高的建筑面积比下,设计一所健康、轻松、舒适、开放的立体学校显得尤为重要。


沿运动场透视-吴清山
设计首先从学校和周围环境的关系开始。东西向线状布局,在功能上形成一种纵向的教学活动模式,将动态空间与静态空间分开。
体育场设置在西侧,隔离月亮湾大道的噪声;南临临港路的露天游乐场。操场靠近体育场,方便学生使用,同时减少对教学楼的干扰;
教学楼主要位于南北两侧,以安静为主,而非正式和半正式的教学楼则位于东侧中部。西北部是教师宿舍、学生食堂等生活区,靠近运动场,形成相对独立的区域。
基于高容积率和土地高效利用的特殊性,建筑沿边缘布置,地下同时设有300人的多功能报告厅。
释放一个大庭院地面空间,让每一栋建筑都能享受舒适的采光、自然通风、优越的视野和巨大的日照距离。

校园从西往东看-吴清山

穿透的庭院-吴清山
不同的建筑单元与场地相适应,形成三个规模和功能各异的庭院。
第一个庭院:由校门、风雨操场、东侧教学楼界定了半围合校园主入口广场。广场为学校和城市提供了缓冲空间。同时,操场一层设置了家长接待、等候、交流的多功能房间。这个庭院与外界相对,成为学校的外部展示空间。

教学庭院-吴清山

多层次庭院-吴清山
第二庭院:大门中轴线对应的一棵梧桐树为庭院的中心,从东到西加强了庭院与运动场的延伸和联系。该界面通过教学楼的走廊、开放操场架空底部和二层平台与景观休闲台阶、食堂的首层架空和连续楼梯,构建了庭院的横向立体的空间层次感和流动感。

交互叠置的庭院-吴清山

第一庭院-罗凯星
第三个庭院:形成了一个封闭的庭院,形成了交叉并置的中心非正式空间,以及由北向南的教学楼。中心空间群以地上两层的架空空间和地下多功能厅的地下庭院为导向,延续和流动着地上、地面和地下的空间感受。空中活动平台由头顶的功能交叉箱组成,在10分钟的休息时间内为不同楼层的学生提供宝贵的活动和交流场所,引发学生互动玩耍、学习和交流的热情。教室内的非正式空间是开放的生态空间,宁静舒适,不仅可以将东南的风引入庭院,还可以看到大南山东侧的景色,构成景观的视觉互动。第三个庭院通过立体的重叠创造出垂直的空间层次感和流动性。

首层架空连廊-吴清山

第二庭院-吴清山
通过三个完全不同的庭院在不同的维度的扩展、叠加、交互和渗透,结合的建筑底部架空、下沉的庭院、景观和走廊连接,构件了一个立体的、连续的、流动、通透的公共空间系统,营造了一个生动、开放、活力的校园庭院内界面。

第三庭院-吴清山

第三庭院叠台-吴清山
建筑的一层部分架空,由走廊连接,考虑到学生的行为路线,形成一个流线型的庭院景观边界。头顶空间为学校提供了一个连续的遮阳棚和雨棚,符合南部地区的气候特点。也可用于雨天体育课。

第三庭院叠台-吴清山

第三庭院空间-吴清山
中心空间通过一系列活动路径,将面对教学办公区的外部走廊和非正式空间连接起来,这些活动路径在室内外、上下两层之间交叠,促进交流与沟通的发生。同时增强了层次性的模糊性、垂直空间的渗透性和便捷的交通。

第三庭院平台-吴清山

第三庭院的立体连通-吴清山
交通指挥中心设置在地下,为家长在紧张的校园用地情况下接送孩子提供空间。接送车流通过地下坡道入口进入地下环形交通空间的下沉式庭院的等候区。学生可以选择步行上楼,或者乘电梯到一楼,然后到每个教室。

第三庭院连廊与平台-吴清山

第三庭院往西看-吴清山
环境对人格和能力的发展有决定性的影响。我们希望学习的空间无处不在。多功能的开放空间将取代单一的走廊。不同楼层的空白空间将为学生和老师提供手工艺、绘画和阅读的可能。

三层连廊看第三庭院-吴清山

教学楼外廊-吴清山
六年的学校生活在塑造价值观和追忆过去方面是辉煌的一笔。大树下是悠闲的休息;大台阶体现了对学校运动员的鼓励;图书馆记录了学生如何探索外部世界;院子里的凤凰花开又落,一个季节来了,一个季节结束了,是毕业的告别。

树院-吴清山

庭院看风雨操场-吴清山
建筑师创造的空间不仅能满足理性,还能传达一种积极的态度。在今天思想多元化的环境下,学生们不再只是呆在室内努力学习,宽敞的走廊是一个每个人都可以互相交流的地方;交叉功能盒子形成的神秘空间,提供了在角落遇见新面孔的机会;明亮的白色墙壁,从孩子般的彩色门窗开始,展望未来的涂鸦和展览。白色的墙在情感上没有那么丰富,但却最包容。

体育馆休闲台阶-罗凯星

内院-吴清山
这些难以想象的经历,潜移默化地在学生心中播下了美丽、包容和探索的种子,也有老师和社会对这些后来者的期待。

图书馆室内-吴清山

架空连廊的渗透与流动-吴清山

多功能厅下沉庭院-吴清山

地下交通疏导中心架空下沉庭院-吴清山

总平面图

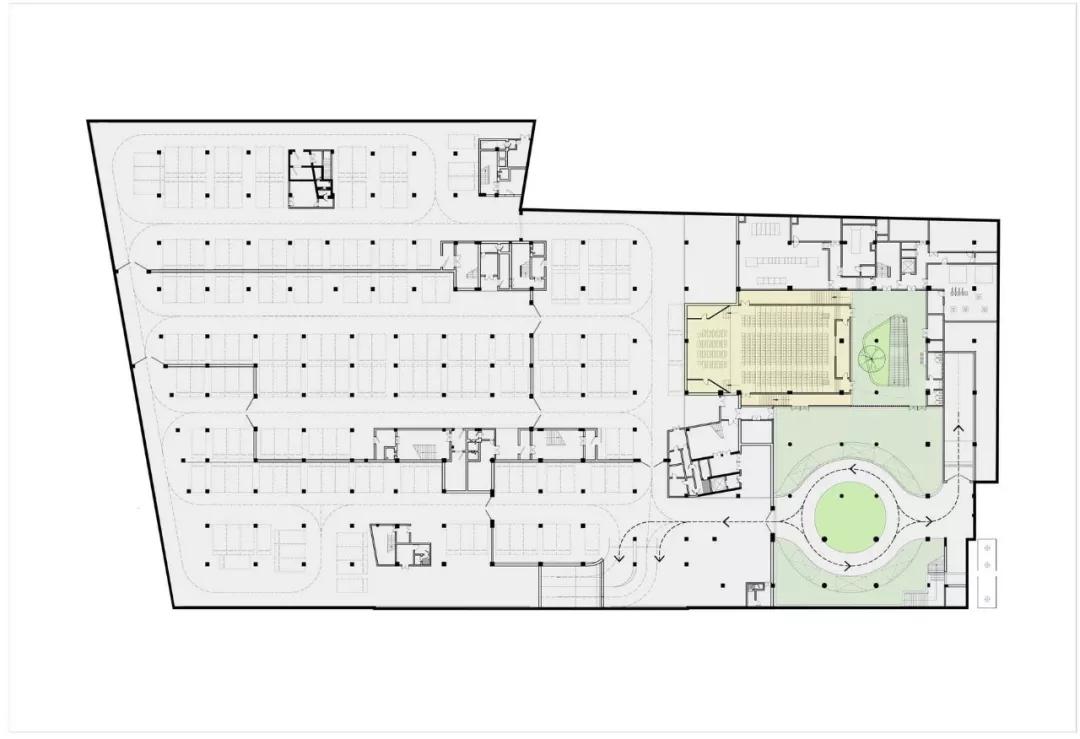
地下一层平面

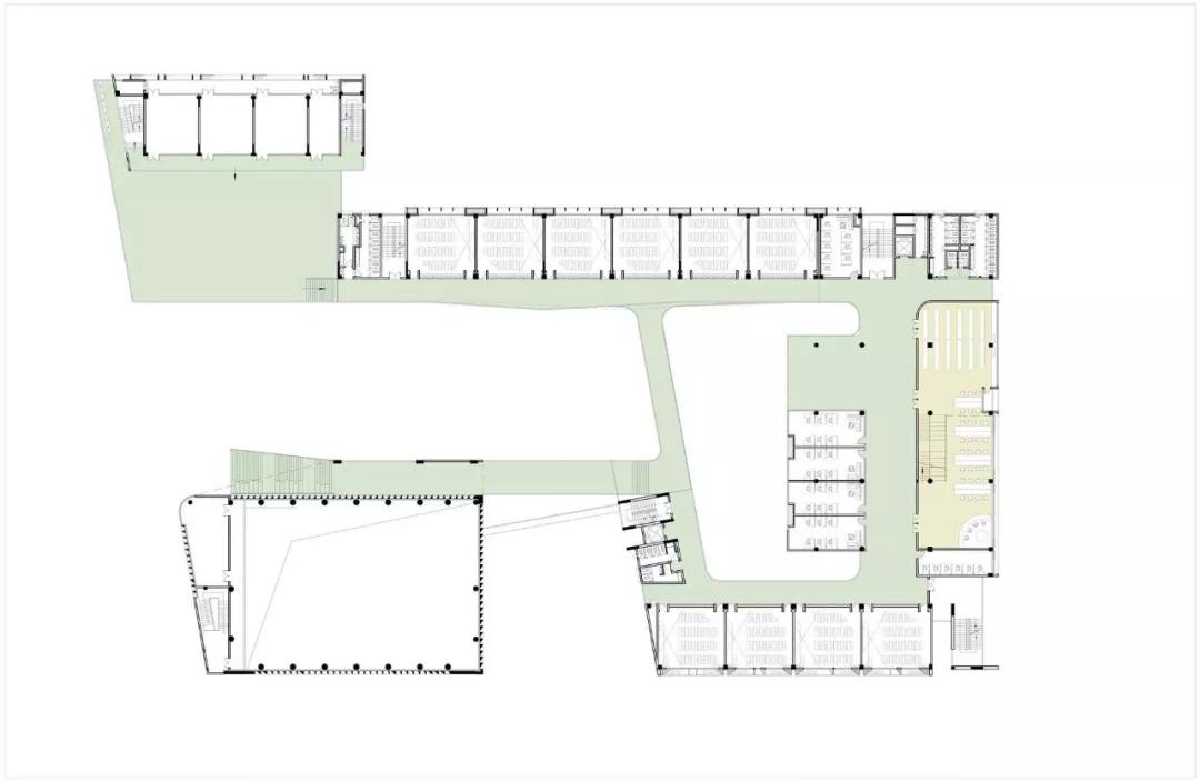
首层平面图

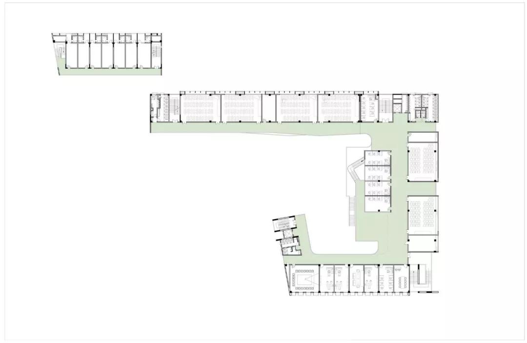
二层平面图

三层平面图

四层平面图

五层平面图

六层平面图

立面图

剖面图

功能分区©元本体工作室

三个庭院©元本体工作室