设计机构:JORYA玖雅
设计师:季凡
设计面积:101㎡
房屋位置:阳光上东
户型:2室一厅
装修花费:50W(施工+主材+部分软装)

设计师:季凡 / 工长:杲祥 监理:高士琦 /主材:晨康
这套101㎡的2居室,是两位屋主的婚房,他们曾一起留学英国,回国工作后,把家安在了北京的丽都使馆区。新家对于他们来说,是奋斗的一个小小里程碑,也是美好生活的开始,所以对新家的装修设计,他们寄予了厚望。
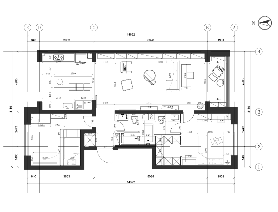
户型图

原始平面图
原有格局:
1、户型坐北朝南,采光良好。空间布局合理,没有多余的交通面积,只需要在次卫淋浴区和主卧的衣帽间做局部微调。
2、北侧带有40㎡左右的户外露台,并与厨房-客厅-南侧阳台呈一条直线,让整个户型更显通透开阔,非常适合做成开放式格局。

改造后的格局
实景图片
餐厅

交房时的厨房是干干净净的白色,效果略显平淡。


重装后的厨房,主角是雅致黑,搭配上黄铜把手和整张蛇皮纹样的岩板,气场强大。

左边一侧是西厨区,也是男屋主的Home Bar。为了这心爱的一角,屋主夫妻每个周末都会去清吧和酒店大堂Bar寻找灵感,然后将自己喜欢的效果发给设计师讨论。

黑色墙砖是美酒们最好的布景板,摆满了美酒和玻璃器皿的黄铜置物架融入到这黑色中,更添一份深沉醇厚的气息。周末的晚上,打开角落微亮的氛围灯,微醺小酒馆正式“营业”~

中厨区是两组高柜+台面的组合,橱柜墙砖与西厨区不同,采用了蓝黄为主调的艺术墙砖,颇有印象派画作的质感。

左侧高柜内嵌烤箱、微波炉,右侧是嵌入式的冰箱。中间的抽油烟机选择了吸力强劲的顶吸式。

岛台选用的蛇皮纹路岩板台面,既可以备菜,又可以做为餐桌。

岛台和客厅之间还留下了可拓展的区域,可直接摆放常规餐桌顶靠在岛台侧边。

开放式厨房的好处就是能和其它公共空间互联互通,在厨房做饭时也不会感到无聊,可以一边看看窗外的风景,和客厅里的人聊天。
客厅

两位屋主很少在家看电视,所以客厅摈弃了“以电视为中心”的传统结构,用双人沙发+单人椅+懒人沙发围合出一个充满设计感而又不失温馨的小空间。

蜂蜜色的TOGO懒人沙发,像大块柔软香甜的太妃糖,窝在里面整个下午会在不知不觉中流逝...

诞生于1925年的资深“网红”——瓦西里单人椅,搭配女屋主“一见钟情”的宜家TALLBYN落地灯,极具包豪斯时期设计的经典美感。

沙发一侧的黑色矮书架柜与黑色橱柜相呼应。

矮书架功能多样,可以展示艺术品、摆件、绿植,也可以用于收纳。宜人的尺度,让坐在沙发上的人随手就能拿到心爱的书籍。


茶几采用了透明玻璃+白色云石的材质,尽量减少视觉里多余的元素。

装饰壁炉是耐看的简约造型,用黑色大理石饰面,提升了整个空间的气质。虽然是装饰性的,但设计师希望能加入真壁炉会有的烟囱,来增加真实感,同时也丰富这面墙的层次。

装饰壁炉施工分为3个阶段:
1、墙体施工阶段,工人在壁炉的位置用石膏板和轻钢龙骨做好基层,下方的凹龛主要是为了给壁炉增加深度。
2、壁炉安装阶段,做好基层以后,大理石厂家按照设计师的设计图纸来进行安装。
3、装饰阶段,烟囱刷艺术涂料,增加肌理感。
工作区

屋主偶尔会在家办公,所以在客厅靠近阳台的区域设置了轻办公区。

阳台一角
主卧

主卧以红陶色为主调,温暖又优雅。

灵感来自摩洛哥的城市——马拉喀什,在阿拉伯语里,“马拉喀什”意为“红颜色的”,原因是当年的城墙采用赭红色岩石砌成,迄今基本保存完好。沿着旧城区红色城墙漫步,眼前所出现的景象仿佛让人又回到那遥远的中世纪时代。


两盏壁灯亮起,像落日前绝美的黄昏,静谧温柔。

床尾的五斗柜补充衣帽间的小物收纳。

两位屋主都喜欢看书,卧室里也安排了惬意的读书角。

衣帽间和主卫都是拱门,为异域风的卧室更添了几分浪漫~
主卫

卫生间油画感墙砖和中厨墙砖是同一款,大面积铺贴的效果非常棒~搭配相同纹理的米色布纹砖,质感细腻丰富。

浴缸区的吊顶采用了3000K暖色的漫反射灯带,模拟天光的效果,泡澡时不会直射到双目,也更有氛围。

壁龛灯带也采用了同样的暖色灯带,但因为光线是反射到蓝色墙砖上,会有些偏冷,细节控的设计师购买了矫正灯光颜色的改色膜,将光线颜色调暖到与吊顶灯带一致。

次卧设置沙发床和高低床,朋友家人来做客时,可在这里居住。高床下方是储物柜,用来收纳各种杂物。同时次卧单独又设置了一个可升降办公桌, 当客厅人多声音嘈杂,或需要通宵加班时,可以在这里办公休息。
玄关

玄关右侧之前是较深的储藏间,改造后做成了壁龛的形式。射灯打在屋主精心挑选的植物和小摆件上,入户的仪式感满满。

除了右侧的鞋柜,左边还做了一组结合了挂衣柜和换鞋凳的收纳柜。

次卫整体水泥砖质感,一整面的镜柜扩大空间,也将电热水器隐身其中。其实小区24小时供热水 ,但为了防止小区热水检修或不热的情况,屋主加装了即热式电热水器。

改造后的淋浴间宽度110cm,用普通对开门的话,出入会感觉不太舒服。设计师采用了三联动的推拉门,确保通道宽敞。
露台

改造前
户型自带的大露台,其实是小区连通绿化和过道的错层平台,所以在不破坏原始地面的前提下,大型植物的种植、和石板小径的铺装都无法实现。

设计师采用了在原始地面上做户外防腐木的方案,同时利用防腐木搭建围栏、花箱、以及连通花箱的卡座。
整体露台分为了高低两个区域,台阶上的防腐木区摆放了2米的户外餐桌、周围环绕卡座, 主要用于朋友、家庭多人聚会使用。

另一侧是木围栏和植物围合起来的沙发区,屋主购买了防水防晒的户外沙发组合和遮阳伞,天气好时,屋主夫妇会做好饭,端来这里慢慢享用。
围栏四周做了N个户外储物箱,用以储藏工具、烤架、清洁工具等杂物,补充室内杂物的储物功能。
合影

从开工到竣工

从左至右:设计师季凡、屋主夫妻、杲祥工长
编辑:Alice
本期案例介绍完毕
感谢观看~
带尺寸平面布局图:

~版权归作者玖雅装饰所有
~如需转载本文请联系“玖雅装饰”账号