
在等待新房交付的日子总是令人既激动的
装什么风格?户型怎么改造?
想得晚上都睡不着

小编整理了中都院子三套不同户型的改造案例
带你一睹为快

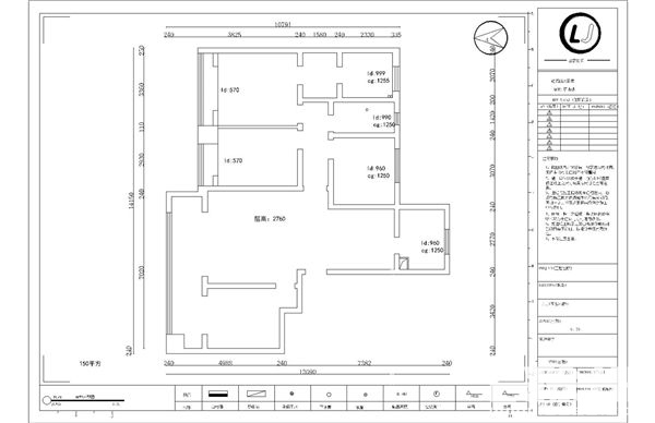
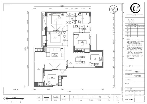
122平方户型解析
案例风格:现代风格
案例出品:恋家装饰

原始户型图

平面布置图
户型解析
►U型厨房设计,与客厅、餐厅贯通,同时形成南北通透格局;
►阳台上的空间见缝插针,合理运用,满足视觉和功能;
►主卧砸去飘窗,增加空间面积;
►将其中一件卧室改为衣帽间,满足女主人需求。
▼效果图展示▼



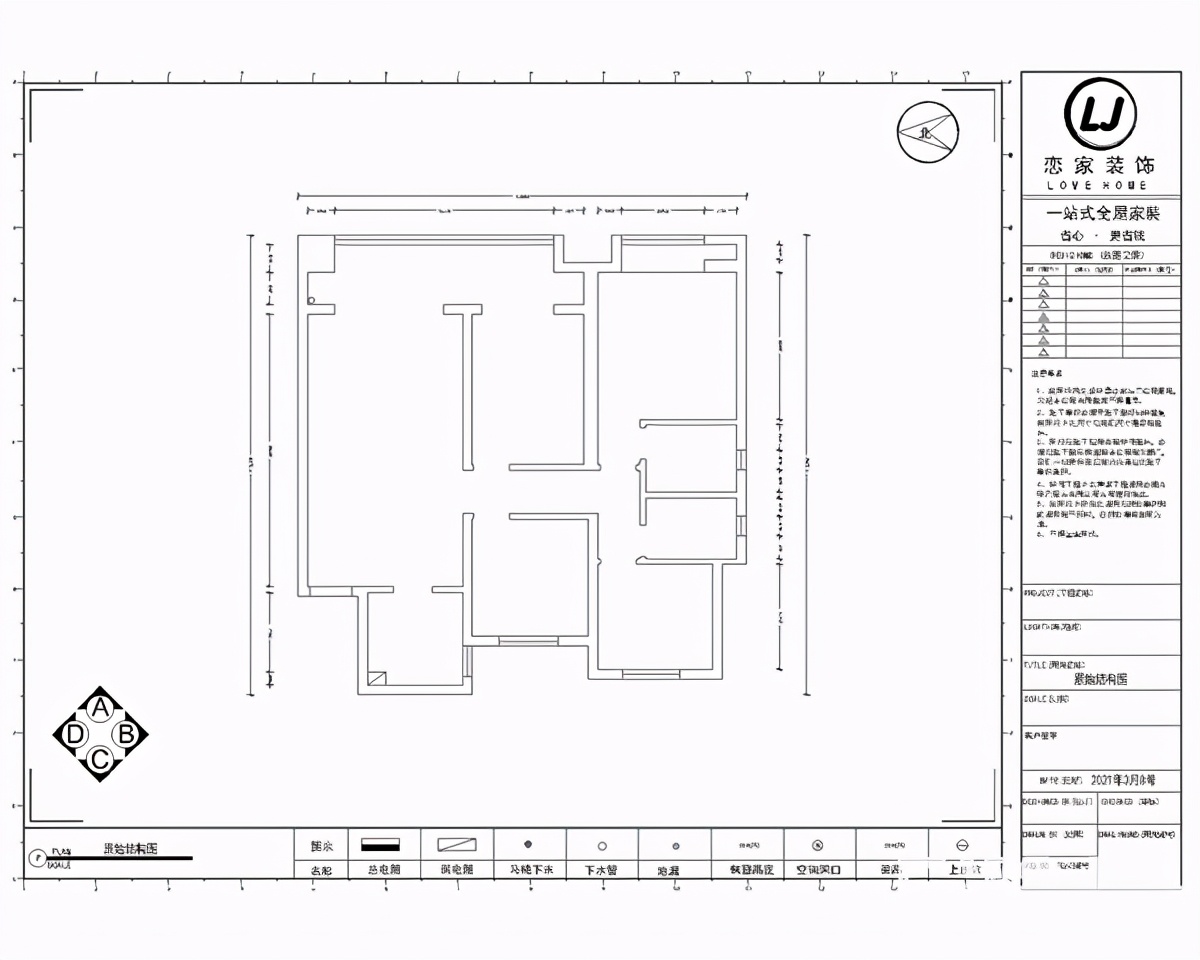
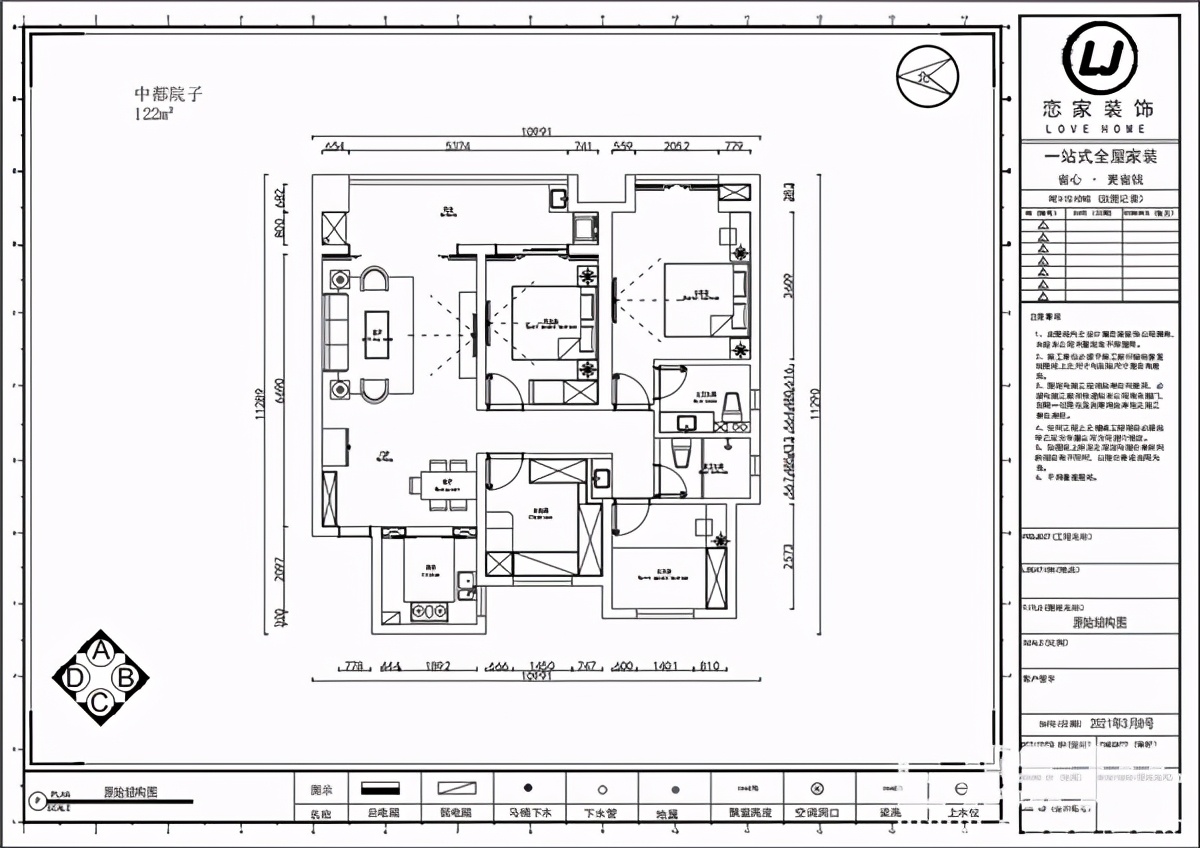
150平方户型解析
案例风格:现代风格
案例出品:恋家装饰

原始户型图

平面布置图
户型解析
►主卧以流畅的手法设计了衣帽间和主卫,空间丰富而神秘;
►U型厨房设计,与客厅、餐厅贯通,同时形成南北通透格局;
►根据业主需求,将其中一件卧室改造为书房。
▼效果图展示▼




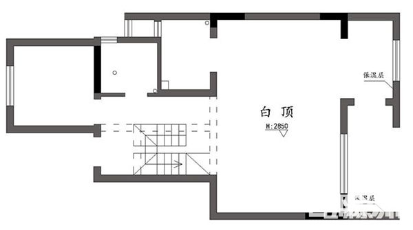
177平方户型解析
案例户型:复式
案例风格:新中式
案例出品:雅盛装饰
半包预算:12—18万

一楼原始结构图
优点:户型方正,南北通透
缺点:布局动线不流畅,空间使用不方便

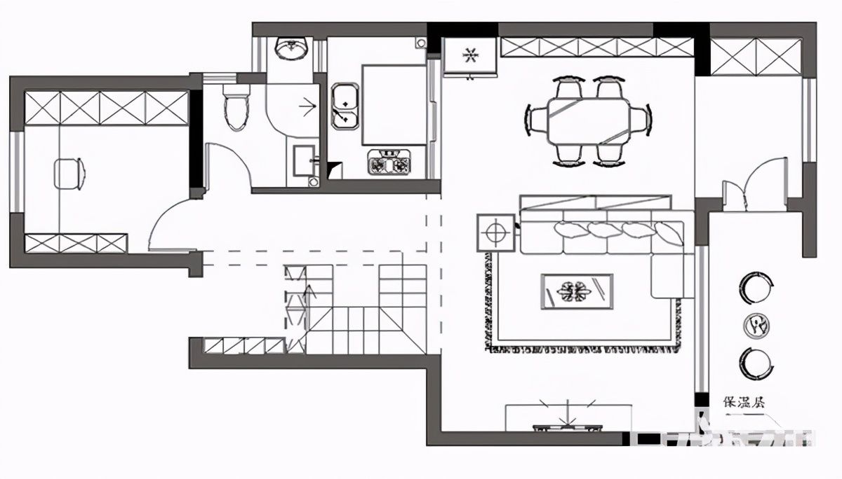
一层平面布置图
入户玄关、客厅、餐厅、厨房、书房、卫生间

二层原始结构图
缺点:小空间布局分布不均,局部空间利用率低

二层平面布置图
卧室、衣帽间、卫生间
户型解析
►入户玄关一组收纳柜设计,落灰区,也为保持日常卫生提供了便利之处。
►一层入户设计休闲卡座,提升生活品质感
►一层动线流动,主要区域划分会客区功能,客餐厅通开,遵循业主风格喜好,空间上更加明亮开阔,集休闲、聚餐,家庭娱乐
►二层改造居室空间,区别一层主要为休息区域,动静两分
►主卧室套间设计,空间感增大一倍,实用美观
▼效果图展示▼




