一、止水条
遇水膨胀止水条是一种独特的橡胶新产品,是有遇水膨胀性能的腻子型止水条和制品型止水条的统称。

1.止水原理
遇水膨胀止水条由高分子、无机吸水膨胀材料与橡胶及助剂合成的具有自粘性能的一种新型建筑防水材料。该种橡胶在遇水后产生2-3倍的膨胀变形,并充满接缝的所有不规则表面、空穴及间隙,同时产生巨大的接触压力,彻底防止渗漏。规格尺寸一般为20mm*30mm或50mm*50mm。
2. 种类

腻子型止水条(也称PN腻子型遇水膨胀橡胶止水条)

制品型止水条
- 腻子型止水条具有缓速低倍率胀大的特点,浸泡168小时后胀大倍率在70%。粘接性好,施工方便,可任意弯折扭曲。成品一般缠绕成盘状并用纸箱包装,运输方便。用于已完工的工程防渗漏,如缝隙浸透漏水,可用该止水条重新堵漏。
- 制品型的特点是遇水后快速胀大,浸泡24小时即可到达规划倍率70%。具有设定的强度和弹性,可抵御一定的外压。可用于止水速度快的缝隙施工。
3.优点
施工方便,价格便宜。
4.缺点
止水面积小,止水效果没有止水带、止水钢板好。
施工过程中不可预见的问题较多,一是钢筋密布时不好放置;二是容易吸潮膨胀,影响使用效果;三是施工缝处不平整,接触不良。通常这种方法止水效果不是很理想。
实际操作中,止水条安装时凹槽的留设,大了不能有效固定,小了镶嵌不到位;混凝土浇筑时,在混凝土浮力作用下容易移位。施工单位为了方便,往往喜欢用止水条,在基础浇筑完成时,压在墙砼浇筑的表面即可。
5.适用
可用于地下无水的建筑,一般用于建筑物的次要部位或要求不严的部位,如地下水位以上的地下室外墙、基础筏板等,即主要防止土层中的毛细水。不适宜用在表面有覆土或种植土的地下车库顶板上。
6.工艺要求

二、止水带
橡胶止水带型号常用的止水带形式有:651橡胶止水带,中埋式橡胶止水带,外贴式橡胶止水带,钢边橡胶止水带,遇水膨胀橡胶止水带,p型止水带,pvc塑料止水带,止水钢板。
根据使用情况又可分类为中埋式橡胶止水带和背贴式橡胶止水带。
根据外观形式又可以分为CB型止水带(指中间有孔的中埋式止水带) 、CP型止水带(指中间无孔的中埋式止水带)、EP型止水带(又称外贴式止水带或背贴式止水带,是指外贴式中间无孔型止水带)、EB型止水带(外贴式中间有孔的止水带,又称外贴式止水带或背贴式止水带) 。
橡胶止水带常用的规格有300×6,300×8,300×10,350×8,400×10mm等,常用型号为中埋式651型。

中埋式橡胶止水带

钢边式橡胶止水带

P型橡胶止水带

背贴式橡胶止水带

可卸式橡胶止水带

遇水膨胀止水带
1.止水原理
橡胶止水带是防止阻止水分渗透而制作安装的带状物, 宽度200-350mm不等,按设计选用,适当延长渗径,在混凝土浇注过程中部分或全部浇埋在混凝土中,具有一定的强度和韧性,其强度和韧性介于止水条和止水钢板之间。
2.优点
该止水材料具有良好的弹性,耐磨性、耐老化性和抗撕裂性能,适应变形能力强、防水性能好,温度使用范围-45℃~+60℃。
3.缺点
混凝土中有许多尖角的石子和锐利的钢筋头,因为塑料和橡胶的撕裂强度比拉伸强低3~5倍,止水带一旦被刺破或撕裂时,不需很大外力,裂口就会扩大,所以在止水带定位和混凝土浇捣过程中,应注意定位方法和浇捣压力,以免止水带被刺破,影响止水效果。
在浇筑混凝土时,由于止水带为橡胶制品比较软,易变形,不顺直,上下宽度不好控制,如用铅丝扎在钢筋上则会损坏止水带,所以施工单位一般觉得麻烦,不喜欢用。
4.适用
橡胶止水带的选择应根据构筑物的重要性等级、变形缝变形量及水压、止水带的使(应)用工作环境、经济因素等条件综合考虑确定。
一般用于竖向止水,如施工缝或后浇带或板墙结构的沉降缝、伸缩缝等沉降变形大的地方。
5.工艺要求
1.中埋式止水带施工规定:
1)埋设位置应准确,中间空心圆环应与变形缝的中心线重合;
2)顶板、底板内的止水带应成盆状安设;
3)中埋式止水带先施工一侧混凝土时,其端模应支撑牢固,并严防漏浆;
4)止水带的接缝宜为一处,应设在边墙较高位置处,不得设在结构转角处,接头宜采用热压焊接;
5)中埋式止水带在转弯处应做成圆弧形,(钢边)橡胶止水带的转角半径不应小于200mm,转角半径应随止水带的宽度增大而相应加大。(也适用于钢板止水带)
2.安设于结构内侧的可卸式止水带施工时应符合下列规定:


转角处应做成45°折角,并应增加紧固件的数量。

底板变形缝处盆式安装止水带

固定橡胶止水带的方法有附加钢筋固定法、专用卡具固定法、铅丝和模板固定法等
如需穿孔时,只能选在止水带的边缘安装区,不得损伤其他部位。
如需现场连接时,可采用电加热板硫化粘合或冷粘接(橡胶止水带)或焊接(塑料止水带)的方法。
止水带施工时不得长时间露天曝晒,防止雨淋,勿与污染性强的化学物质接触;
在运输和施工中,防止机械、钢筋损伤止水带;
施工过程中,止水带必须可靠固定,避免在浇注混凝土时发生位移,保证止水带在混凝土中的正确位置。
三、止水钢板

建筑物地下室水平构件和竖向构件无法一次性浇筑,一般采用在基础底板上返300mm位置留置水平施工缝

止水钢板一般在400mm宽,新旧混凝土内各埋置一半。
1.止水原理
新旧混凝土接缝位置称为施工缝,此属于防水混凝土防水的薄弱环节,增加止水钢板后,水沿着新旧混凝土接茬位置的缝隙渗透时碰见止水钢板即无法再往里渗,止水钢板起到了切断水渗透路径的作用。
即使沿着止水钢板与混凝土之间的缝隙渗透,止水钢板有一定宽度,也延长了水的渗透路径,同样可以起到防水作用。
止水钢板的“开口”朝迎水面,且钢板与混凝土结合紧密,辅以钢板八字形状,地下水很难沿施工缝从钢板浸透。
2.优点
钢板止水带连接部位必须焊满,且本身防渗性能非常好,加上镀锌等处理,防渗漏水效果最好。
3.缺点
规范要求,使用止水钢板的剪力墙,墙体厚度不宜小于250㎜,止水钢板与钢筋间净距离为:墙厚/2-外侧保护层厚度50-墙体双向钢筋直径;当墙体厚度为250时,250/2-50-30=45㎜。止水钢板与墙体间距离偏小,施工时混凝土在该部位容易漏振,形成蜂窝孔洞。因此,在使用止水钢板时,在施工缝部位必须加强振捣。
该止水措施的薄弱环节为搭接部位及90°转角部位。钢板八字角在90°转角部位焊缝极难控制,容易形成漏水点。钢板转角部位的焊接施工应作为该工序的关键部位予以控制。
4.适用
适用于有地下水的构筑物,如水池等有水的建筑,以及埋深在地下水位以下的水平和竖向施工缝处。
5.施工工艺

钢板的凹面应朝向迎水面,转角处止水钢板应弯成45°角。止水钢板居中布置。

何为迎水面

水处理构筑物的侧壁防水

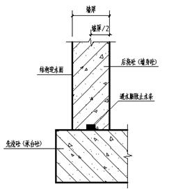
侧墙后浇带防水
工艺说明:地下室外墙后浇带在做防水施工前,内侧的卷材保护层先施工。铺贴外墙卷材时,现在预制板外侧铺一层防水加强层,然后大面卷材直接铺过与之盖板。绑扎墙体钢筋时,用附加筋将止水钢板固定在墙体中间。

底板后浇带防水(渗水小的可用遇水膨胀止水胶条)

底板后浇带防水(渗水小的可用遇水膨胀止水胶条)
工艺说明:底板后浇带处先施做防水卷材附加层,再用大面卷材铺设施工。在绑扎底板钢筋时,用附加筋将橡胶止水带和止水钢板分别固定在后浇带的底部和中间。

施工时,尽力保证止水钢板在墙体中线上

两块钢板之间的焊接要饱满且为双面焊 ,钢板搭接不小于20mm


墙体转角处的处理通常采用整块钢板弯折、丁字型焊接、7字型焊接等。

止水钢板的支撑焊接,可以用小钢筋电焊在主筋上


止水钢板穿过柱箍筋时,可以将所穿过的箍筋断开,制作成开口箍,电焊在钢板上。
四、总结


2020年一级市政实务助考,需要的朋友私信
谢谢大家的认可和支持!真诚希望大家点赞、关注、转发和评论!预祝大家2020市政考试顺利通关!