-
中海锦苑130平装修效果图,本案定位于美式乡村风格,带着浓浓的乡村气息,以享受为最高原则,在面料、沙发的皮质上,强调它的舒适度,感觉起来宽松柔软,以舒适机能为导向,强调“回归自然”。
-
小区名称:中海锦苑
-
案例户型:三室两厅一卫
-
装修风格:美式乡村
-
装修套餐:528套餐
-
小区面积:130平方
-
套餐造价:8.50万
-
个性造价:150000.00元
-
工程造价:23.50万
-
房屋类型:商品房
-
设计师:白一鸣18937119460
-
装修公司:美巢装饰郑州花园路总店


中海锦苑130平装修效果图,本案业主是一家三口,都在机关办事处工作,想要一个舒适自然的新家,为此美巢装饰将装修风格定位于美式乡村风格,带着浓浓的乡村气息,以享受为最高原则,在面料、沙发的皮质上,强调它的舒适度,感觉起来宽松柔软,以舒适机能为导向,强调“回归自然”。

中海锦苑三室两厅装修效果图美式装修风格——客餐厅

中海锦苑3室2厅装修效果图130平案例——客厅

中海锦苑130平装修效果图美式乡村风格——电视背景墙,美式乡村风格的色彩以自然色调为主,绿色、土褐色最为常见;壁纸多为纯纸浆质地

郑州中海锦苑130平装修效果图——沙发背景墙,布艺是乡村风格中非常重要的运用元素,本色的棉麻是主流,布艺的天然感与乡村风格能很好地协调

美巢装饰中海锦苑装修设计图130平美式装修风格——餐厅

中海锦苑装修效果图美式乡村风格案例——主卧

郑州中海锦苑三室两厅130平美式乡村风格装修效果图——次卧

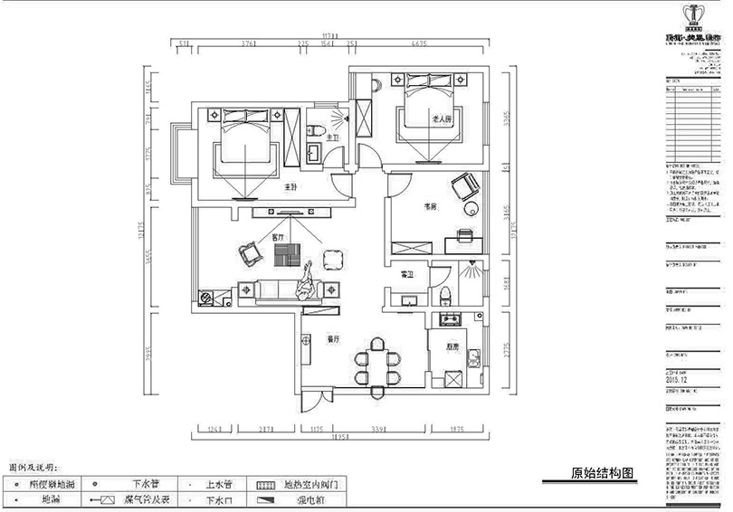
中海锦苑三室两厅美式风格130平装修效果图案例——户型布局方案

郑州中海锦苑美式装修风格130平装修效果图——书房
河南省内郑州市业主有需要装修设计请关注美巢装饰设计师微信18937119460(believeyou99)长按复制粘贴键