
基本信息
小区名称: 金鹏·清风明月
户型: 四室两厅一厨两卫
装修面积: 135平 装修方式: 半包 装修金额: 8.6W
装修公司: 雅盛装饰
设计师: 胡立桂

设计理念:
秉承“空间的畅想者”设计理念主张“创新与艺术相结合”的思想。着力将国际化的视野和本土化的风格融入到设计作品中。
设计师与业主的故事
这是一套面积为135平的婚房,男主人有着理科生的理性睿智,女主人则有着文艺青年的浪漫情怀,新人对未来充满了美好的憧憬,因此比较看重后期的设计改造和色彩的搭配,设计师力求为他们打造一个理性与感性并存的温暖居所。

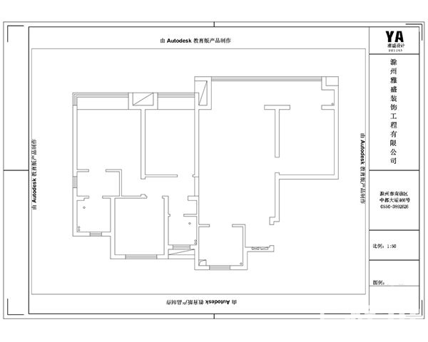
▲原始结构图▲

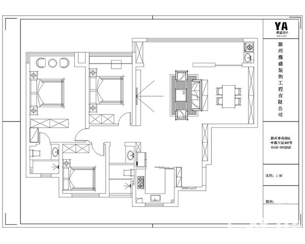
▲平面布置图▲
入户
入户区便是排矮鞋柜,挂在墙上的经典史努比挂画透露出业主童趣的内心~

入墙到顶式入户柜既保持了玄关处整洁干净,还满足了充分的储物需求。


玻璃展示柜内嵌灯带展出业主收藏的盲盒娃娃,下班到家看到这些可爱的小宝宝,足可缓解一天的疲惫~

客厅
设计师拆除了卧室墙体,将空间包揽进客厅位置,玻璃长窗增加客厅的采光,整体更加通透明亮。

双阳台大横厅+无主灯悬浮吊顶,各个空间独立且贯通。

深灰色皮质沙发,玻璃和木质结合的茶几,柔软的地垫,不同元素有着呼应与对比,尤为木制茶几的天然材质,令空间产生与大自然独特的亲近感。

餐厅
皮革软垫餐椅和大理石餐桌为空间增添了大量的温暖和质感。

厨房
全屋动线以厨房为起点,冰箱以嵌入形式放置在外更省空间,将中厨空间纵向延伸,联动客餐厅区域,弱化了空间界限。


主卧
主卧室改变原有门洞,背景采用暖咖和浅灰色搭配,温柔淡雅层次丰富,展柜和衣柜相互结合,满足收纳及展示需求。


还有迪士尼小伙伴陪伴入梦哦~

次卧
次卧床头的跳色处理则更加简单大方。

并在靠窗区手打了一组白色书桌,满足孩子学习的功能性需求,实用与美观并重

卫生间
客卫采用“长方形三分离”设计布局,灰色大理石瓷砖纹理自然,每寸空间简单而又充满高级感~



设计师有话说
设计过程中更在意空间的真实感,装修和业主本身是需要有共鸣的,是熟悉的,安心的,它不是单一的,是立体的,丰富的,是视觉,触觉,精神,情感和记忆的共鸣,让我们置身其中,一切都是那么自热而然的存在和发生。