小编碎碎念
今天的内容,是关于园林工程预算里面的园路和园桥部分,解读规范是2012年北京市建设工程预算定额庭院工程分册。每个部分我们都附上了计算实例,希望能对园林造价的小伙伴有所启发。
一、概述
(一)本定额包括园路面层,路牙,台阶,桥台、桥墩,桥柱、梁,桥拱券,桥券脸安装,金刚墙砌筑,桥面铺筑,栏杆安装,河底海墁,木制步桥、栈道,涉水汀步安装13节共126个子目。
(二)本定额的适用范围:
1.定额中的园路是指公园、小游园、绿地内、庭园内的行人甬路、蹬道和带有部分踏步的坡道。
2.园桥是指建造在庭园内的,供游人通行兼有观赏价值的桥梁。不适用在庭园外建造的桥梁。

一、园路工程











二、定额主要工作内容及工程量计算规则
(一)定额主要工作内容
第一节 园路面层,本节包括整体路面、快料路面、树池箅子及填充共44个子目。
本节中各子目工作内容包括有:
1.整体路面:清理底层、座浆、铺设、灌缝、扫缝,混凝土、砂浆拌合、运输、压实(印)、抹平、养护等。
2.块料路面:清理底层、结合层、面砖的选砖归类、现场排样、锯板修边、铺设、灌缝、勾缝、扫缝、清理净面、养护等,涂刷底漆、中间漆、界面剂、打磨吸尘等。
3.树池箅子及填充:表面清理、安装、固定,树池填充等。
第二节 路牙,本节共8个子目。
本节中各子目工作内容包括有:挖沟槽、灰土基础、砂浆拌合、运输、砌路牙、回填、勾缝等。
第三节 台阶,本节共7个子目。
本节中各子目工作内容包括有:混凝土运输、浇捣、养护等,基层清理、砂浆拌合、材料运输、砌筑砖、石、抹面压实、赶光、剁斧、锯板磨边、贴花岗岩、擦缝、清理净面等。
(二)工程量计算规则
1.路面(不含蹬道)和地面,按设计图示尺寸以面积计算。
2.坡道路面带踏步者,其踏步部分应予以扣除,并另按台阶相应定额子目计算。
3.拌石或片石蹬道,按设计图示尺寸以水平投影面积计算。
4.成品树池箅子按设计图示数量计算。
5.树池填充,按树池内框尺寸以面积计算。
6.路牙,按设计图示尺寸以长度计算。
7.混凝土或砖石台阶,按设计图示尺寸以体积计算。
8.台阶和坡道的踏步面层,按设计图示尺寸以水平投影面积计算。
三、执行定额应注意的问题
(一)章说明及章说明解释
1.园路、台阶的土方项目,执行第一章土方工程相应定额子目。
2.蹬道道边挡土墙,除山石挡土墙执行第六章堆塑假山的相应定额子目外,其他砖石挡土墙均执行第三章砌筑工程的相应定额子目。
(二)其它需要说明的内容
1.园路面层
(1)彩色压印艺术地坪定额未包含基层路面,实际使用需根据设计要求执行相应定额,该定额子目编制考虑了压印模具的使用费,不再另行计算。
(2)块料路面定额中的材料是按常用规格编制的,如设计要求与定额不同时,允许换算。
(3)地面拼花(图案)除已有子目外,均综合考虑了拼花(图案)内容,实际使用时不再另行计算;普通卵石路面拼花、雨花石路面拼花是指卵石、雨花石拼花,如在卵石、雨花石地面中用其它材料拼花时,拼花部分按相应定额计算。
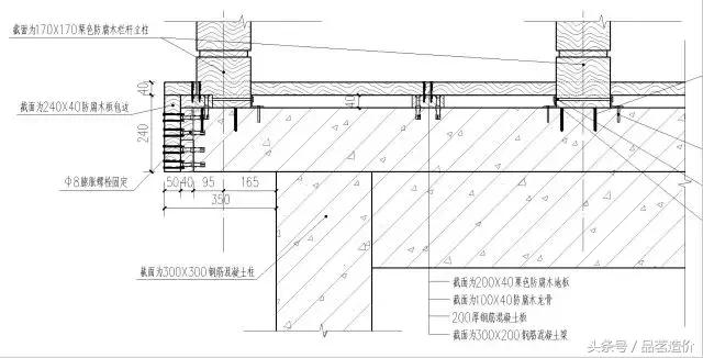
(4)室外木地板分木龙骨和钢龙骨,如设计为无龙骨的,可以参考其它相应定额子目。(注:不可使用成(4-38)-(4-124))
(5)园路地面定额已包括了结合层,不包括垫层。
2.树池箅子及填充
(1)树池箅子定额子目是按成品树池箅子安装编制的,规格不超过1200×1200(mm),如采用现场制作树池箅子的,根据设计要求,可以参考块料路面或其它相应定额子目。
(2)树池填充分树皮填充和卵石填充,填充厚度为100mm以内,如填充厚度在100mm以外的,根据实际填充厚度比定额标准,乘以相应定额子目;如设计采用其它材料填充的,应另行计算。
3.树池围牙是按长度编制的,实际使用时单位为套的成品树池围牙,应换算为长度执行相应定额。
4.新增加的花岗岩整石台阶是按厚150mm以内编制的,如设计规格为150mm以内的执行本定额,花岗岩整石单价可调整,设计规格为150mm以外的,另行计算。
5.定额中的预制钢筋混凝土构件应包括内含钢筋的价格,发生时不再另行计算。
【例题】某居住小区配套幼儿园道路为150mm厚C25混凝土彩色卡通压花地面,道路宽3m,中心线长150m,计算其路面预算价。(材料市场价:C25预拌混凝土390元/立方米,彩色强化剂18元/公斤)
执行定额子目:(4-3)、(4-4)、(4-5)、(12-6)、(13-2)
计算:3×150×(68.36+3×4.81+55.61+(18-10)×4.2+3.73)+24.58×150×2×0.15=80184.6元
【例题】某林荫广场树池填充卵石厚150mm,计算其预算价。(材料价:卵石0.07元/公斤)
执行定额子目:(4-44)×150/100
计算:17.23×150/100=25.85元
【例题】某小区绿地内园路宽2.4m(不含路牙),长10m,采用60厚青石板与卵石混拼,其中卵石占60%,青石板占40%,计算其路面面层预算价。(材料价:卵石0.07元/公斤,60厚青石板90元/平方米)
执行定额子目:(4-15)、(4-24)
计算:2.4×10×(0.6×97.74+0.4×(106.61+(90-56.5)×1.03))=2762.16元

【例题】某小区中心绿地下沉广场台阶为150mm厚花岗岩整石台阶,结构做法如图所示,台阶宽3米,台阶面积4.8平方米,灰土量2.25立方米,混凝土量1立方米,钢筋量16.6公斤,计算其预算价(不含土方工程)。(材料价:150mm厚花岗岩台阶600元/平方米,C15预拌混凝土360元/立方米)
执行定额子目:(4-53)、(4-56)、(2-1)、(11-1)、(13-3)、(12-6)
计算:84.65×2.25+518.73×1+745.52×4.8+5293.33×16.6×0.001+4.8×3.73+48.76×2.46=4513.41元

二、园桥工程
名词解释
1.雁翅:是指河身泊岸与桥两边金刚墙之间所垒砌的三角形墩墙,由于两边金刚墙与雁翅是连在一起的,故一般统称为“雁翅”,或“雁翅金刚墙”,或“桥帮”。
2.金刚墙:是指券脚下的垂直承重墙,又叫“平水墙”或“桥墩”。梢孔内侧的叫“分水金刚墙”,梢孔外侧的叫“两边金刚墙”。
3.金门:石券桥的桥孔,靠两岸最边的桥孔称为“梢孔”,正中间的桥孔称为“中孔”,在梢孔和中孔之间的都称为“次孔”。
4.券石:石拱券最外端的一圈券石叫“券脸石”,券洞内的叫“内券石”。石券正中的一块券脸石常称为“龙口石”,也有叫“龙门石”,龙门石上若雕凿有兽面的叫“兽面石”,兽面形象为古代传说中龙生九子之一的,俗称“戏水兽”、“喷水兽”。
5.桥身撞券石:在桥身的两侧面,金刚墙以上,仰天石以下的统称为“撞券石”。
6.仰天石:位于桥面两边的边缘石叫“仰天石”。在桥面正中带弧形的叫“罗锅仰天”,在桥面两头的叫“扒头仰天”。
7.牙子石:位于桥面两头,作为拦束桥板石的窄石叫“锁口牙子石”,简称“牙子石”。
8.地栿石:它是栏杆和栏板最下面一层的桥面栏护石。在桥面正中带弧形的叫“罗锅地栿”,在桥面两头的叫“扒头地栿”。
9.抱鼓石:又叫“戗鼓”,或“撑鼓”,位置在桥面栏杆尽端,是雁翅桥面部分的栏板石。一般将石面雕凿成圆鼓形花纹,故叫抱鼓石。
三孔石拱(券)桥正立面

石拱(券)桥构造

石拱(券)桥栏板
名词解释
10.寻仗栏杆:是由望柱、寻仗扶手、折柱、中枋、下枋、绦环板或棂条花格等基本构件组成的栏杆。
11.望柱:截面为方形的栏杆柱。顶端有素方头、莲花头、龙凤头、狮子头等装饰。
12.寻仗扶手:它是最上面的一根横木,其断面一般为圆形。寻仗即取巡仗之意。
13.罗汉板:不镂空的栏板。


二、定额主要工作内容及工程量计算规则
(一)定额主要工作内容
第四节 桥台、桥墩,本节共4个子目。
本节中各子目工作内容包括有:选料、运石、现场吊装、砂浆拌合、铺砂浆、砌石、勾缝等。
第五节 桥柱、梁,本节共4个子目。
本节中各子目工作内容包括有:混凝土浇捣、养护、构件运输、安装等。
第六节 桥拱券,本节共5个子目。
本节中各子目工作内容包括有:清理底层,砂浆拌合、运输、砌筑灌浆,混凝土浇捣、座浆、养护、构件运输、吊装、安装等。
第七节 桥券脸安装,本节共2个子目。
本节中各子目工作内容包括有:砂浆拌合、运输、吊装、截头打眼、拼缝安装、灌缝净面等。
第八节 金刚墙砌筑,本节共4个子目。
本节中各子目工作内容包括有:砂浆拌合、运输、截头打眼、拼缝安装、灌缝净面等。
第八节 金刚墙砌筑,本节共4个子目。
本节中各子目工作内容包括有:砂浆拌合、运输、截头打眼、拼缝安装、灌缝净面等。
第九节 桥面铺筑
本节包括桥面石、牙子石、仰天石、地伏石、踏步石、预制平桥板、预制拱形桥板、桥挂檐板共20个子目。
本节中各子目工作内容包括有:
1.砂浆拌合、运输、吊装、截头打眼、拼缝,安装、灌缝、净面等。
2.混凝土浇捣、养护等。
3.工厂预制混凝土桥板、现场安装等。
第十节 栏杆安装
本节包括寻杖栏杆、罗汉板、望柱、抱鼓石共15个子目。
本节中各子目工作内容包括有:砂浆拌合、运输、吊装、成品安装、灌缝净面等。
第十一节 河底海墁
本节共1个子目。
本节中各子目工作内容包括有:砂浆拌合、运输、墁石安装等。
第十二节 木制步桥、栈道
本节包括木桥面、平台、檐板、栏杆、台阶制安、木梁、木龙骨共10个子目。
本节中各子目工作内容包括有:
1.放样、选料、运料、划线、起线凿眼、齐头、锯榫、挖底、铺灰、安装等。
2.木台阶:踏步、平台、踢脚线的制安等。
3.安装:吊线、校正、临时支撑、钉牢、齐头、安装等。
第十三节 涉水汀步安装
本节共1个子目。
本节中各子目工作内容包括有:清理、运料、夯实、摆放、砌筑、养护等。




(二)工程量计算规则
9.桥台、桥墩按设计图示尺寸以体积计算。
10.现浇桥洞底板,按图示尺寸以体积计算。
11.现浇混凝土柱(桥墩)、梁、拱券、砖石拱券砌筑和内券石、金刚墙砌筑、券脸石安装等按设计图示尺寸以体积计算。
12.桥面石,分厚度按设计图示尺寸以面积计算。
13.牙子石、仰天石、地伏石、踏步石,均按设计图示尺寸以长度计算。
14.预制混凝土平、拱桥板、支撑及接头灌缝,均按设计图示尺寸以体积计算。
15.桥挂檐板,按设计图示尺寸以面积计算。
16.型钢锔子、铸铁银锭按设计图示数量计算。
17.石栏板,按设计底边(斜栏板按斜长)长度以数量计算。
18.石望柱,按设计高度以数量计算。
19.栏板抱鼓石,按设计图示尺寸以面积计算。
20.河底海墁,按设计图示尺寸以面积计算。
21.木桥面、平台按设计图示外围尺寸以面积计算。
22.木桥挂檐板按设计图示外围尺寸以面积计算。
23.木制栏杆以地面上皮至扶手上皮间高度乘以长度(不扣除木柱)以面积计算。
24.木台阶按设计图示尺寸以水平投影面积计算。
25.木桥木梁按设计图示截面尺寸乘以长度以体积计算。
26.木桥木龙骨按设计图示桥面尺寸以面积计算。
27.涉水汀步石按设计图示尺寸以体积计算。
三、执行定额应注意的问题
(一)章说明及章说明解释
3.园桥的土方、垫层、砖石基础、找平层、墙面勾缝、装饰、金属栏杆、 防潮防水等项目,执行相关章节的相应定额子目。
4.石桥桥身的砖石背里和毛石金刚墙,分别执行第三章砌筑工程的砖石挡土墙和毛石墙相应定额子目。
5.石桥的金刚墙砌筑项目中,已综合了桥身的各部位金刚墙的因素,不分雁翅金刚墙、分水金刚墙和两边的金刚墙,均按本章定额执行。
6.石桥桥身的拱券石项目,执行桥拱券相应定额子目。
7.金刚墙砌筑及桥面铺装,定额是按青白石和花岗石两种石料编制的,如实际使用砖碴石、汉白玉石料时,执行青白石相应定额子目,使用其他石料时,应另行计算。
8.金刚墙砌筑及桥面铺装,如设计要求采用铁锔子或铁银锭时,其铁锔子或铁银锭应另行计算。
9.石桥的栏板、望柱安装定额以平直为准,遇有斜栏板及其相联的望柱安装,另按斜形栏板、望柱安装定额执行。
10.木平台、木栈道、木桥设计有木柱的,执行第八章花架中的木柱定额子目。
(二)其它需要说明的内容
6.园桥定额是按无水情况编制的,有水时应另行计算。
7.栏杆安装
(1)寻杖栏杆、罗汉板、望柱、抱鼓石均按成品构件安装编制,如设计要求与定额不同时,可以调整构件材料价格。
8.木制步桥、栈道
(1)木制步桥、栈道定额包括制作和安装,实际使用采用成品木构件或其它材料的,可以参考其它相应定额或另行计算。
(2)木桥面、平台制安板厚40mm是综合了40mm以内的木板,板厚不足40mm的按40mm计算,超过40mm的,根据实际板厚,另外执行相应每增加10mm子目。
(3)半圆木桥面、平台制安是按圆木半径80mm编制的,如设计与定额不同时,允许换算。
(4)木桥挂檐板和木台阶是按板厚30mm编制的,如设计与定额不同时,允许换算。
(5)木栏杆:如设计为木栏板,另行计算。
(6)木梁制安:当梁截面为圆形时,梁宽为圆直径,当梁截面为矩形时,梁宽为周长的1/4。
(7)木龙骨定额子目实际使用时不可调整。
【例题】某木平桥,桥面面积为50平方米,桥面板厚50mm,计算其预算价。
执行定额子目:5×((4-115)+(4-116))
计算:5×(2640.05+617.41)=16287.3元
