设计 \ Design:balbek bureau
图片 \ Photo Credits:Andrey Bezuglov, Yevhenii Avramenko

“
“Protagonist”是一家咖啡、酒吧,位于乌克兰哈尔科夫市充满历史意味的街区。这里是富有创造力和想象力的人的聚会场所,他们可以分享想法并表达自己。这里的每位客人都是“主角”,是故事情节的主角,也是创意的倡导者。
Protagonist is a café-bar located in a historical part of Kharkiv, Ukraine. It is a hangout place for the creative and imaginative people, to share ideas and express themselves. Every guest here is a ‘protagonist’ – a leading character of their storylines, and an advocate of the creative ideas.
”



这是一间带有混凝土支柱的阁楼,我们将旧的饰面剥离掉,以揭示天花板纹理的美感,以及先前拆除的地砖的复杂背面印记。这些是我们要保留的关键元素,因为他们强调出了建筑物的原始设计。
It is a loft with concrete pillars that we stripped of old finishes to reveal the beauty of the ceiling's textures and intricate backside prints of previously removed floor tiles. These were the key elements we wanted to preserve, thus emphasizing the original architectural design of the building.



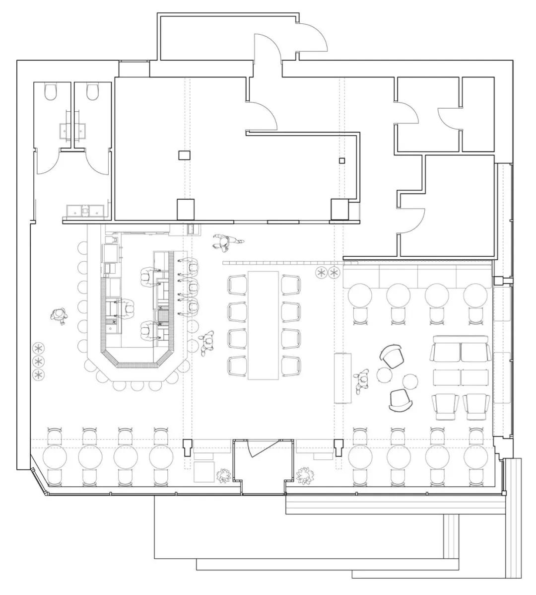
我们的任务之一是将空间划分为功能区域,以及确认空间动线。因此,我们将房间的后面指定为技术区域,而中心部分沿着全景窗户成为主要的用餐区域。一个可以容纳大群体的公共桌子被放置在房间的中间,一个全尺寸的酒吧被放置在桌子的左边。
One of our tasks was to divide the space into functional zones and process flows. Thus, we designated the back of the room as a technological zone, while the central part along panoramic windows became the main dining area. A communal table that can accommodate large groups was placed in the middle of the room, and a full-size bar was positioned to the left of the table.



我们把DJ安置在桌子的右边,而柔软的座位——扶手椅和沙发,以及两人坐的小桌子被放在DJ的后面,还有全景窗户。除了公共餐桌,大部分家具元素都是由我们的家具品牌propro设计和生产的。
We stationed the DJ to the right side of the table, while soft seating – armchairs and sofas, - together with small tables for two were placed behind the DJ, along with panoramic windows. With exception of the communal table, most of the furniture elements were designed and produced by our furniture brand propro.


没有音乐,就不会有酒吧。该场所的所有者是高品质声音的真正鉴赏家,非常重视声音设备。他们选择了Void Acoustics,这是针对已安装和现场声音市场的音频系统的领先制造商。Void不仅可以*放播**背景音乐,还可以与邀请的DJ举办派对。
No bar can exist without music. The owners of the establishment, being true connoisseurs of quality sound, have placed a great emphasis on sonic equipment. They chose Void Acoustics, a leading manufacturer of the audio systems for the installed and live sound markets. Void makes it possible to not only play background music, and also to host parties with invited DJs.



复古设计的时尚主题贯穿整个房间。可以在钢化玻璃墙板中确切的看到,这些材料是我们在拆除一座旧建筑时抢救出来的。复古元素也体现在DJ的控制面板,谁我们通过对老式收音机进行现代化改造的结果。后壁上的老镜子会产生无限的视觉效果,从而增加物体和视角。
The hip theme of vintage design can be traced throughout the room. It can be seen in authentic wall panels of tempered glass, that we salvaged during the deconstruction of an old building. It is also in the DJ's control panel that we created by modernizing a vintage radiogram. An aged mirror on the back wall creates an effect of the visual infinity, multiplying objects and adding perspectives.


DJ控制台是我们在分类广告网站上购买的现代化的苏联时代的收音机。我们将它切成两半,把缺失的那块用现代材料补上。电线穿过收音机的桌腿,音乐控制隐藏在收音机内。
The DJ console is a modernized Soviet-era radiogram that we bought on a classifieds website. We cut the radiogram into two and added the missing piece made of modern materials. Electric leads were threaded through the radiogram’s leg, and the music control unit was hidden inside the radiogram.



房间的重点之一是悬挂在公用桌子上的灯具。在大型聚会中,它被升高至天花板上,而桌子则靠置到玻璃墙上。灯具的形状绝非偶然,非常复杂:它包含一个特殊的主角用语——“这个城市需要一个主角”,由声波代表,项目团队将其叠加在一个椭圆形上面。
One of the focal points of the room is a light fixture suspended over the communal table. It is lifted to the ceiling during big parties, while the table is wheeled away to the glass wall. The shape of the light fixture is quite complex by no accident: it contains a special Protagonist phrase – 'this city needs a leading character', represented by a sound wave that was superimposed onto the oval shape by the project team.




盥洗室的金属框架被设计成一个收纳装置——有序地放置和隐藏所有必要的配件。与空间的总体主题一致,洗手间的内部以剥落的瓷砖设计为特色。
Metal frame in the lavatories was designed in the style of an organizer - to orderly hold and conceal all the necessary accessories. In tune with the general theme of the space, the interior of the lavatories features a peeling tile design.






建筑外观简单朴素与内部相协调,深色的基石搭配铝复合板,上面是是铝复合板完成。在主入口旁边,我们创造了一个开放的露台,上面有长座位的休息空间,吸引着过往车辆的目光。
The facade is simple and unpretentious. In tune with the interior, dark foundation is finished with aluminum composite panels. By the main entrance, we created an open terrace that is also a long seating place that attracts street traffic.





平面图 Plan

灯具固定示意 Light Fixture





项目名称 / Project Name: Protagonist
建筑公司 / Company: balbek bureau
建筑师 / Architects: Slava Balbek, Liza Kormilets, Yevhenii Kuchmin
项目面积 / Project Area: 165m²
完成年份 / Project Year: 2019
项目地址 / Location: 乌克兰 / Kharkiv, Ukraine
图片版权 / Photo credits: Andrey Bezuglov, Yevhenii Avramenko