
小编从武汉经济开发区(汉南区)自然资源与规划局获悉:又有一所科技加工型企业在我区报建,助力我区经济转型发挥作用。
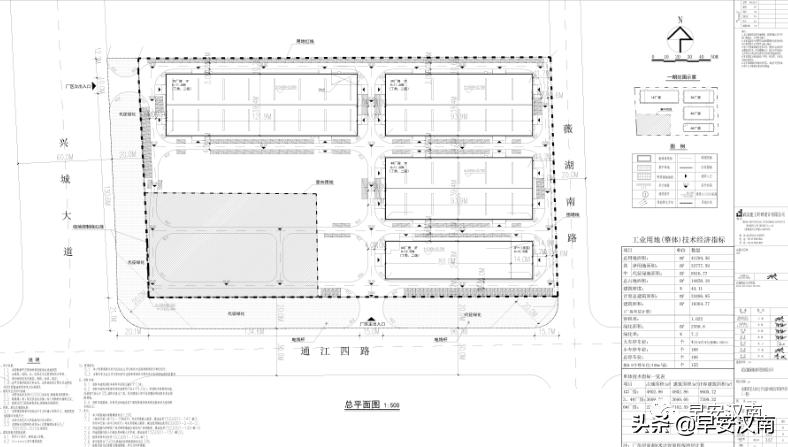
武汉鑫豪航泰科技有限公司“金豪泰无人机电子电器导航仪零部件项目”规划建筑方案。该项目位于汉南区纱帽街南临通江四路,西临兴城大道,东临薇湖南路。该项目规划有3栋1层厂房,1栋3层厂房。我局拟按该方案办理新建建筑物的建设工程规划许可证,现按相关规定将总平面设计图予以公示。


据小编查询了解:武汉鑫豪航泰科技有限公司于2018年11月29日成立,注册地址位于武汉经济技术开发区通用航空及卫星产业园特1号,经营范围:包括航空、航天、汽车电子零部件及设备的研发、制造、销售;软件开发;钢结构工程施工;机械设备安装,是一家科技加工型企业。
2019年6月6日,湖北省武汉市汉南区成交1宗工业用地,武汉鑫豪航泰科技有限公司以底价1441.00万元竞得工HN(2019)005地块,楼面价360元/㎡。
地块编号工HN(2019)005地块位置汉南区纱帽街通江三路以南,兴城大道以东用地性质工业用地出让方式挂牌出让面积(㎡)40001.08容积率≥1成交价(万元)1441.00溢价率0.00%出让时间2019年6月6日竞得者武汉鑫豪航泰科技有限公司
编号为工HN(2019)005地块,位于汉南区纱帽街通江三路以南,兴城大道以东,工业用地,出让年限 50年,出让总用地面积为40001.08㎡,建设用地面积40001.08㎡,容积率≥1,起始价1441.00万元,最终由武汉鑫豪航泰科技有限公司以底价1441.00万元成交。