公寓楼在一些大城市,其实是很吃香的,尤其是受到众多年轻人的喜爱,不管是单人还是俩人一起生活,小小的空间也是足够了,总比租房子要强很多。公寓楼一般层高都比较高,很多人装修的时候,都会想办法一层变成两层,这样子更实用,更能把空间利用起来。
说到这里,这次给大家带来坐标西安的装修案例。屋主她在西安打拼了好几年了,虽然买不起大的房子,但是能拥有这套套内面积仅有38平左右,3.6米层高小公寓,已经觉得很幸福了。去年已经交房拿到钥匙,由于今年租房也差不多到期了,才开始考虑装修。层高足够,想着变成错层,也就是上下两层,上面部分作为卧室,基本是这样子布局了。从开工到完工历时三个多月的时间,原来的平层公寓“摇身一变”LOFT,非常让人羡慕啊,一个人居住这样的LOFT真的太幸福了,看着都羡慕。下面。带大家一起来感受感受。(本案屋主:忧裕阳光)

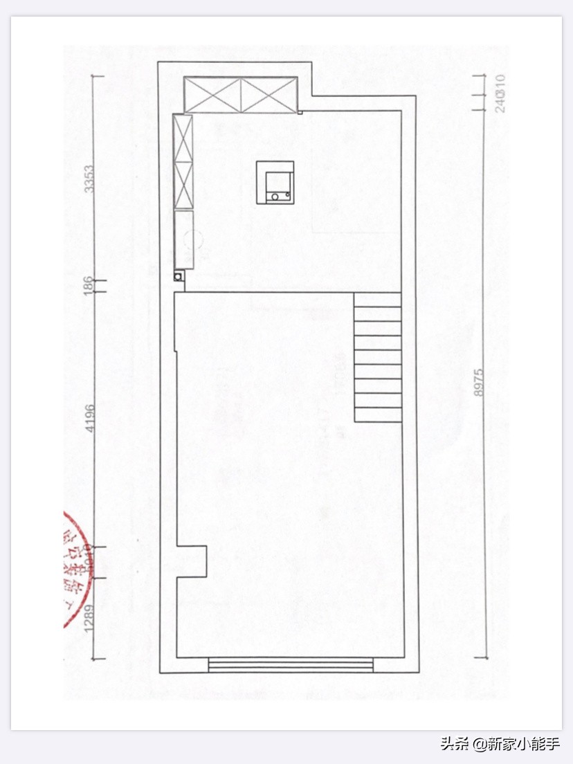
这是差不多的原始户型图,不过这个建筑面积52平,而屋主的是54平,其实也是差不多的哈。原本的户型家具布局就是这样的效果,不是那么合理,而且有点浪费了3.6层高的空间了。屋主自己的需要,需要把平层的公寓,变成LOFT,也就是错层的户型,能有上下两层的话,动静分区就比较合理了。

根据屋主的需求,重新整体布局了家具家电的摆放位置,这样子会更合理,也不会影响到室内采光。

这是二楼的户型图,右边加了一个楼梯上去,也就是书房了,“摇身一变”loft,特别让人羡慕啊。

打开入户大门就是这样的角度了,左侧设计了上下两层的鞋柜,可以满足自己的需求,储物空间还是足够大的。鞋柜最底下预留位置,可以放一些常穿的拖鞋,非常实用。还放着一个把小换鞋凳,可以方便坐着换穿鞋子,考虑非常周到。旁边的位置还可以放冰箱,可以当隔断使用,使用到的时候很顺手,对日常生活使用比较方便。

二楼划分出来的层高只有1米多而已,显得比较压抑,不过可以作为卧室或者书房,都非常合适。屋主她比较懒,上面的空间没有做卧室,主要是晚上如果方便的话,需要爬楼梯,不是那么方便。而是作为衣帽间,觉得还不错哈。楼梯是另外加上去的,包括二楼的层面也是现建的,就这样的设计把原本平层的公寓,“摇身一变”loft,一个人居住这样的Loft公寓,真的太舒适,太让人羡慕了。楼梯下面的位置可以电视柜,可以提供蛮不错的储物空间,不过没有把电视墙的正面角度拍出来。

楼梯和上面都是用钢板的材质,质量会更好,而稳固,以后也不会担心出现质量问题。墙面刷的是白色,显得整个空间比较光亮,也比较简洁。【沪尚茗居】

虽然一个人居住,但是客厅沙发也是不可缺少的一部分,布置了小沙发,平时朋友过来玩耍的时候,还可以有沙发可以方便坐着。中间黑色一大一小圆形茶几,觉得款式还不错,相对比较节省一些空间。色彩搭配效果还很协调,如果地面能摆放地毯的话,显得更有档次。

布置了一张大床,睡着很舒服。床上被单是蓝色和粉色搭配,效果真心漂亮,看着很想拥有这样的床。建议屋主过段时间,墙上可以挂装饰画,效果会更完美。一个人居住,空间虽然不大,但是能有一个独立的空间,还是蛮不错的,也足够使用了。

这边就是生活阳台了,左侧是一个衣柜,还预留了位置可以放梳妆台,右边是洗衣柜,顶面安装了晾衣架,晾晒衣物的时候,方便很多。大大的落地窗,采光很充足,光线很好。

刚好预留的位置可以放梳妆台,使用特别方便。布置了LED智能梳妆镜,屋主每天都可以在这边美美梳妆了,特别幸福。台面东西摆放整齐,不会显得过于凌乱。

这边是既然是工作台,也预留了刚好可以放洗衣机的位置,使用特别方便,大小位置刚好足够。墙上的吊柜还可以增加蛮不错的储物空间,特别实用,辛辛苦苦打拼换来的小公寓,半点空间都不能浪费。

厨房定制了“L”字型白色橱柜,刚好把小小厨房空间利用起来,并且形成了“洗、切、炒”的顺序。白色的橱柜,显得比较干净,白色的感觉,显得空间都宽敞很多呢。

卫生间空间小,没有做干湿分离,但是不影响使用。安装了柜式镜子,牙膏牙刷都方便收纳起来,可以增加一些储物空间还是蛮不错的。铺贴的瓷砖颜色比较白,以后生活过程中,做保洁的时候,方便很多。
如果你家公寓也是这样3.6米左右的层高,可以参考这样的设计,原本平层的房子“摇身一变”LOFT,显得空间更有层次感,以后即使家里“多”一个人,居住空间也是足够的哈。