减量又减价的新型悬挑脚手架,你用了吗?
传统悬挑式脚手架的悬挑钢梁搭设方法为:悬挑的工字钢或槽钢安装在混泥土梁结构上,悬挑钢梁的长度为悬挑长度2倍或以上,钢梁的锚固段以不少于二个锚固筋固定,悬挑钢梁的外侧以钢丝绳与上层拉结。
实操过程中,由于钢梁的锚固段以不少于二个锚固筋固定,使用完成后不方便拆卸,只能人工进行切割,不能重复使用,导致施工成本提高。

新型可调拉杆式悬挂脚手架
新型上拉式悬挑脚手架又称可调拉杆式悬挂脚手架,它完美解决了悬挑钢梁不能重复使用导致施工成本提高的问题,作为一种新型悬挑脚手架体系中的可调拉杆式悬挂脚手架,它由底部的梁侧预埋悬挑承立架和上部的双排钢管脚手架组成。而底部的梁侧预埋悬挑承立架由型钢梁、斜拉杆和下支撑杆组成。
可调拉杆式悬挂脚手架使用材料轻便,属于快速安装型的工具式脚手架,在作业层安装过程中,缩短了安装周期,节约了挑架层施工的时间,不仅如此,还节省了工字钢材料以及U型预埋件,同时又节省了拆除传统工字钢和预埋件后所需的切割、补砌筑等环节的费用和工时,节材省钱效果显著。

新型可调拉杆式悬挂脚手架适用范围
它适用于高层悬挑脚手架施工,尤其对住宅建筑周围结构墙比较集中的建筑大有裨益;可以减少大量的预留孔。

新型可调拉杆式悬挂脚手架设计
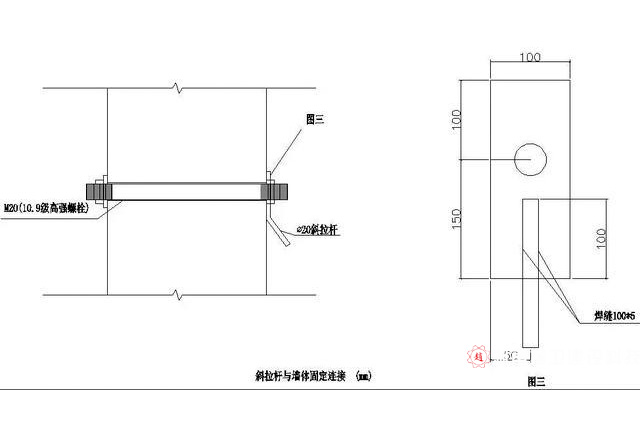
悬挑支撑梁采用18#工字钢,分为普通型、转角加长型(即直角工字钢、斜角工字钢和对角工字钢),普通型长度为1.2m,采用2个8.8级M20高强螺栓与建筑结构固定,型钢悬挑外端采用斜拉杆与结构拉结,斜拉杆由Φ20长螺栓杆,中间配有M50的高强螺母,普通型采用1根斜拉杆、转角加长型采用2根斜拉杆。

优势上
1、新型可调拉杆式悬挂脚手架改变了传统型钢梁在楼面锚固的施工方法,改用型钢挑梁与楼层梁板采用高强螺栓锚固连接,悬挑端采用圆钢斜拉于上层梁板,形成外架钢管搭设平台。相比传统型悬挑架,由于新型悬挑工字钢长度比传统悬挑工字钢缩短一半以上,因此减少了钢材用量,大大降低了成本。
2、新型可调拉杆式悬挂脚手架改变了传统用钢丝绳卸荷的施工方法,改用梁端上部用Φ20圆钢连接,由花篮螺栓拧紧受力可起到固定、卸荷、减轻钢梁支座弯矩作用,且花篮螺栓和圆钢可回收二次利用,与常规使用的钢丝绳比较更安全。型钢梁工字钢耗材少,安装拆除无需塔吊配合,轻量化操作,方便快捷,节约人工,它是定型化制作,规格型号少,周转高,且经济合理。
3、由于悬挑钢梁不需穿墙安装,无需墙面预留洞口,不会损坏混凝土墙、梁、板等结构,能有效保证主体结构的施工质量,墙面施工时无需再次修补,对后续作业楼层面地坪施工也不影响,无需等悬挑钢梁拆除后再进行地坪施工、加快了室内装修进度,有效杜绝外墙渗水漏水现象,又缩短了工期。
4、悬挑钢梁上部基本与混凝土楼层面持平,铺上旧模板后防护到位,室内没有型钢梁妨碍,建筑垃圾清理及施工人员行走,各种施工工序可交叉进行,施工现场简洁、美观。

经济效益分析
采用新型悬挑脚手架可以在挑架作业层减少2天的挑架时间,给作业层其他班组提供了保证。按照钢筋工30人、木工30人计算:
每天为60×300=18000元,如果能提前到两天则有:2×18000=36000元
每栋楼挑架6次:6×36000=216000元
而且解决了挑架工字钢外墙开洞的问题,提高了整体外立面的成型效果。

施工方法
上拉式脚手架的设计





材料的选择

受力性能验算
1.基本参数

2.荷载布置参数

3.主梁参数
