父母自掏腰包装的养老房,本以为不怎么样,一进门却被迷住了
老家的房子是早在10年前就买了,本来父母是想留给自己当婚房用的,但计划不如变化,结婚的时候老婆那面给准备了一套不错的房子,所以家里的房子就留给了父母养老用。虽然房子是两居室,但空间面积相对较大,而且次卧和主卧都有单独的卫生间。

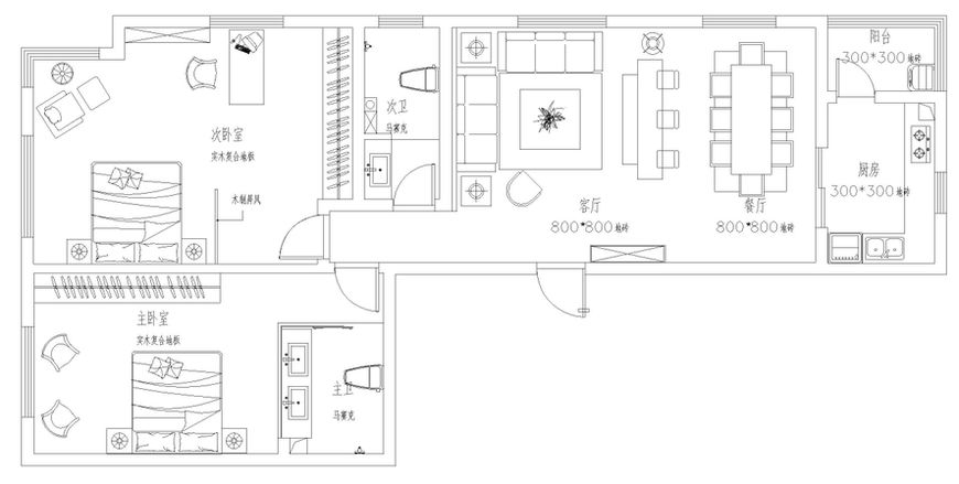
考虑到以后自己不经常在家住,再加上房子本身有些年头了,所以父母两人就打算自掏腰包把家里重新装修一下,这样住着也就会更舒适一些。如下图所示,改造的时候打算把客厅的卫生间给拆掉,把拆出来的空间重新设计成餐厅区域、同时并入客厅。一是家里的主卧、次卧已经有了单独的卫生间,足够用;二就是想要增大餐厅和客厅空间。

房子装修下来共花了30多万,设计师主要通过地面材料、吊顶、家具、墙面装饰和灯光来表现不同空间的划分,同时体现整个空间的灵活性与兼容性。选材上不再局限于石材、木材、面砖等天然材料,而是将选择的范围扩大到肌理涂料、玻璃和软装饰,通过水平线,演绎传统与现代的结合,外加材质的表现和造型的设计使业主在现代化的住宅中依然有雅致的意境,也充分表达了父母的生活方式和品位,居室轻松的氛围,到处都传达着传达一种文化品位和艺术个性。

一开始自己觉得父母自己装修,房子应该不会装的怎么样,但放假回家一进门却被迷住了,房子装修的真是有模有样,难怪能够话费30多万,忍不住给大家晒晒。

客厅空间比较大,在设计的时候就在中间单独做了一道实木隔断,如下图所示,既可以充当电视背景墙又能充当吧台,最重要的是还将客厅和餐厅给隔断开,既保证了相互独立性又不影响视野。

由于父母都是比较讲究的人,所以餐厅装修也显得非常大气,一张欧式长条餐桌、再加上吊灯的映衬、一下就让品味格调显得高大上,设计师说还好家里的空间面积大,不管怎么样做都会显得很好看。

主卧墙面选用硅藻泥装饰,地面铺实木地板,绿色环保健康,卫生间外墙面选用玻璃造型装饰,在雅致中又透露着工业风,凸显生活品味。


次卧一半是卧室一半是书房,同时入门口与主卧床铺通过镂空实木板做隔断,既保护了隐私性又富有空间感,在设计上满足了各种功能需求。


温馨提示:以上分享仅供参考学习,喜欢的朋友可以点赞、转发收藏和关注,如果对此装修有什么好的想法,欢迎评论留言!