【小区名称】华冶翡翠湾
【建筑面积】96㎡
【装修风格】现代简约风格
【工程造价】8万
【设计理念】时尚,简单,线条构成的家装成为了现在年轻人宠儿,风格的构成更是代表着一个人的生活态度,与对家构思的蓝图。

合肥苹果装饰
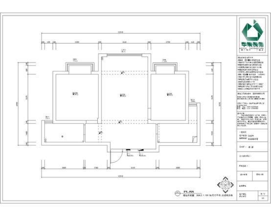
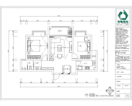
平面设计解析
户型南北通透,整个的空间偏于空旷,在房间设置了集实用与美观于一体的酒柜、鞋柜、玄关等来增加储物空间。同时,也在木制作上做了特别的定制造型,让房间呈现出个性化和多样化。

合肥苹果装饰

合肥苹果装饰
客厅
客厅在背景上几个简单的几何造型,装饰出别致的效果,简约不代表简单,线条的美感,是视觉上最舒适的享受,房间的整体效果也由这些线条衬托出特别的感觉。

合肥苹果装饰
餐厅
在客厅、餐厅与厨房间没有设置任何的门,而是选择了一组酒柜让三个地方变得融洽,安逸,在餐桌的墙上设置一组别致造型的架子,不仅成为一个装饰品,也让生活方便了很多。

合肥苹果装饰
卧室
卧室的环境若是太过透亮会影响到睡眠的质量,而若是色彩太过深沉,便不符合简约风格的特点与整个房间的风格不搭配,所以选用了暖色的咖啡色作为主色调,烘托出卧室的特点。

合肥苹果装饰
设计的首要目标是完美家居的体验,满足不同人群对家不同的感觉,家居一样可以DIY定制你的专属特点。
设计师介绍

合肥苹果装饰
首席设计师:杨媛
设计理念:创意成就生活,因为喜欢,所以热爱。