前几天和一个朋友聊天,说起她家装修最后悔的事情, 就是客厅没有设计好 。朋友说,客厅是家里最大的一个房间,只摆了沙发、茶几、电视柜和电视机,完全可以用「傻大」两个字来形容。
也难怪,传统“老三样”式的客厅布局,往往只讲究排面,功能却过于单一。对于如今大部分家庭来说, 客厅待客次数很少,居住生活才是日常 ,布局也应该有所调整!
本期,要为大家分享的案例就和这个有关, 女主家做了“去客厅化”设计,将客厅功能进行了重新定义,也让生活变得更加丰富有趣。 下面,就让我们一起参观下女主的新家吧!

▲装修实拍图
//户型分析//
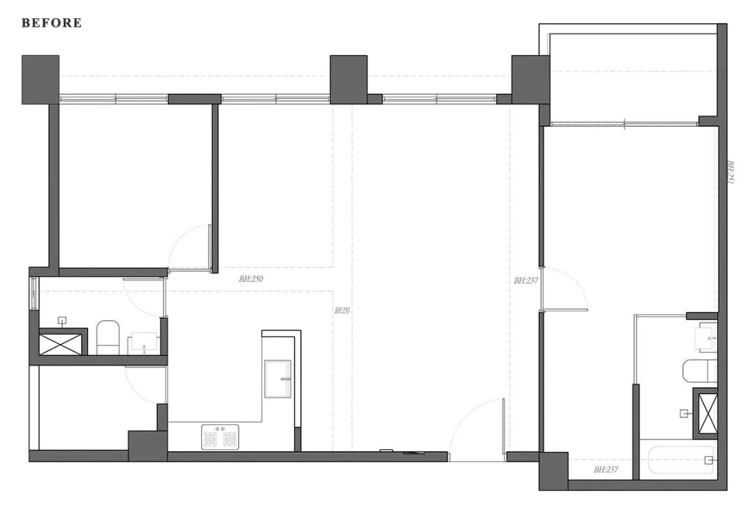
①整屋套内面积约99㎡,是两居室的户型,格局较为方正。
②房子坐北朝南,仅有一侧住采光面,采光不错、但通风性较差。
③客餐厅空间宽敞,但卧室的面积相对较小。

▲户型平面图
//设计亮点//
女主四口之家,她和丈夫育有一儿一女,希望家里能多一些互动空间,以拉近家庭成员之间的距离。 重点改造设计如下:
①拆除厨房的非承重墙体,做开放式餐厨设计,提升厨房的使用面积和空间感。
②沿着客厅两侧定制20cm高的地台,并将客厅一分为二,增设开放式书房的功能。
③儿童房做高架床的设计,充分利用垂直空间,来提升室内的功能性。
④借用主卧和阳台空间,隔出一间独立书房,为屋主夫妻居家办公提供便利。

▲装修平面图
客厅
客厅的设计简约大气,整体以白色和浅木色为基调,将丰富的功能性铺设开来。
设计师沿着客厅的两侧墙面,定制20cm高的L型地台,作为客厅沙发的补充,让屋主可以随处而坐。地台带有储物的功能,做成了多个小抽屉,轻松收纳生活杂物。

▲客厅实拍图
考虑到孩子们的日常活动,为了避免磕碰,地台拐角处做了弧形处理。 天花板上的吊顶形状,和地台保持一致,形成了巧妙的呼应,视觉感更加协调统一。

▲客厅实拍图
客厅被设计师分成了两部分,以书桌为界限,自然形成了开放式书房和休闲区。
书房的一侧墙面,定制了顶天立地的储物柜,柜体厚度约40cm,兼顾了书架、收纳和展示的功能。
书桌三面做了立板,桌面是两个独立的板面,方便两个孩子日常写作业;桌子的背面,也充当了电视背景墙的功能。

▲客厅实拍图
客厅的休闲区内,布置了懒人沙发、黑色角几和地毯,家具的尺寸都很小巧,可以反衬出客厅的空间感。
电视机悬挂在书桌背面的立板上,电线和插座都隐藏于其后,视觉感整洁清爽。

▲客厅实拍图
沙发后方的墙面,定制了“原木+铁艺”展示柜,用来收纳相框、唱片、花瓶等物品。

▲客厅实拍图
餐厨
设计师拆除了厨房两侧的非承重墙体,做了开放式餐厨布局,和客厅无阻碍相连,显得公共空间开阔通透。
餐厨规划了丰富的储物空间,包含收纳高柜、橱柜和中岛;烤箱、蒸箱等厨电,都做了嵌入式设计,美观又节省空间。

▲餐厨实拍图
女主对开放式餐厨的设计非常满意,平时她在厨房准备晚餐,两个孩子会在客厅的书房写作业,她可以随时照顾到孩子们。

▲餐厨实拍图
特别喜欢女主家餐厅的灯饰,三盏古铜吊灯悬挂在餐桌和中岛的上方,微微透着内敛的光晕,为用餐增添了一份浪漫的氛围。

▲餐厨实拍图
儿童房
儿童房的设计灵感来源于高低床,设计师充分利用垂直空间,实现了睡眠、收纳、学习等多重功能。
两个孩子的床铺位于卧室的上方,可以从侧面的抽屉爬上去,抽屉内也有一定的储物空间,用来收纳孩子们的内衣和袜子。

▲儿童房实拍图
两张床的下方,分别安排了架子鼓和电钢琴,让孩子们可以尽情享受音乐带来的乐趣。
为了不影响邻居生活,设计师在架子鼓的下面铺了隔音地毯,平时孩*弹子**琴也会插上耳机。

▲儿童房实拍图
床头下方的空间,定制了衣柜和书柜,收纳能力很强大。
两张床侧面都安装了护栏,中间还设计了一个小通道,方便孩子们日常互动交流。

▲儿童房实拍图
主卧
主卧的布局简约大气,大白墙搭配无主灯设计,营造出舒缓放松的休憩氛围。
设计师利用床尾空间,做了一排1米高的矮柜,作为衣帽间的扩充;柜子厚度仅35公分,不会影响到走道空间,柜面部分也能随手放些小物件。

▲主卧实拍图
床头部分用木饰板做了一体式设计,两侧置物板代替了床头柜的功能,在隐藏式灯带的隐藏下,显得格外简洁干练。
主卧和隔壁的书房之间,安装了室内门和室内窗,可以更好地把自然光引入主卧。

▲主卧实拍图
主卧自带独立卫生间和衣帽间,入口均安装了轨道滑门,从视觉上形成了一定的延伸效果。

▲主卧实拍图
书房
设计师利用部分主卧面积和阳台空间,规划了一个独立的书房,为屋主夫妻日常居家办公提供了方便。
书房有两个入口,一个入口连接着客厅,中间未设置室内门;另一个入口则连接着主卧,安装了一扇白色的木门,隔音效果不错。

▲书房实拍图
阳台空间做了一部分保留处理,用玻璃折叠门和书房区分开,并增设了钢丝护栏,既保证了开阔的视野,又兼顾了安全性。

▲书房实拍图
书房内的承重柱不能拆除,设计师便在墙面和柱体之间,定制了“三段式”柜体,兼顾收纳和吧台的功能。
屋主平时在这里工作累了,可以随手冲泡一杯咖啡,望望远处的风景,别提有多惬意了。

▲书房实拍图
【本期总结】
回顾本案,整屋装修简约大气,设计师以屋主一家人的实际需求为出发点,合理地规划功能分区,大大提升了居住得房率,值得学习!如果你也喜欢本期内容,欢迎点赞收藏!
想了解更多精彩内容,快来关注甜茶的极简生活