#了不起的广州# #广州资讯#
“结庐在人境,而无车马喧”
——-陶渊明《饮酒》
秉承东方园林师法自然
隐匿于市的精髓
仰承岭南文化脉流
唤醒于闹市而逐桃源的情怀
以城市最高人居形态
打造广州百年城脉下的城市别墅
中冶逸璟公馆

请横屏浏览




项目背景
中冶·逸璟公馆位于广州市海珠区。广州,广东省省会,也是国家历史文化名城,拥有独特的岭南广府文化。海珠区则是广东省广州市的老四区之一,在广州市珠江的南面,处在广州市的核心位置。本项目是广州主城区极其罕见的第五座城市别墅,填补海珠老区别墅空白,是新中式文化的完美呈现,将为社会巅峰人群奉上都市繁华中的院落生活。

△ 区位分析
设计理念

△ 北方园林 庄重大气

△ 岭南园林 雅致婉转
中国北方园林入园便有门厅,一进,二进,三进的序列,尊贵、礼序,营造恢弘大气的空间氛围。岭南园林作为中国传统造园艺术的三大流派之一,布局灵动婉转,方寸之地,须弥之间,掩藏一方世界。本案汲取南北园林的精华,融入现代设计元素,演绎轻奢、格调、写意的新岭南园林景观。

通过对广州本地的传统居住形式“西关大屋”的详尽分析。房屋布局均为中轴对称,自入口至尾部天井为大屋核心轴区,两侧为不规则对称分布有厢房、偏厅,外侧为大屋青云巷。设计抽象提炼西关大屋的空间布局形式及序列,延续广州传统居住空间,充分体现本地域特色,因地制宜全面展现岭南的景观特色。

△ 梁园空间分析
梁园为岭南四大园林之一,其空间组织形成具有代表性,自入口至园内共成九境,其为“门”、“幽”、“礼”、“园”、“转”、“院”、“觞”、“巷”、“户”,意境层层递进,序列有致。设计秉承我国园林的精髓,方寸之间藏而不显,豪而不张,华而不奢,韵味深长,以当代东方美学观,营造“大隐隐于市”的都市桃花源,在喧嚣的城市之中,诗意回归。


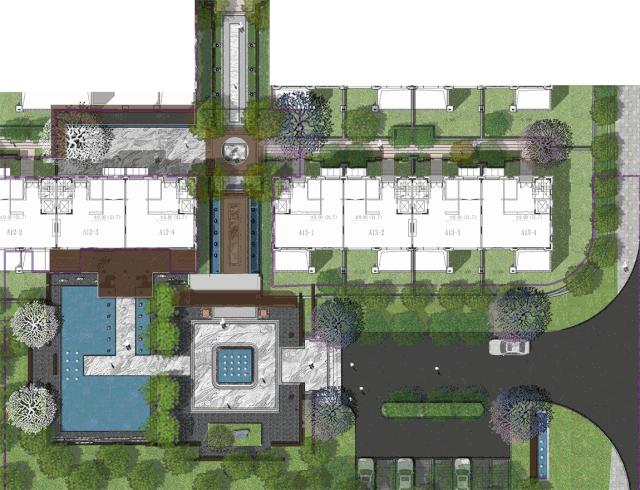
△ 空间结构

△ 总图





△ 空间推演
△ 现场视频
在本次设计中,设计把中国传统园林的内涵,以现代设计手法,层层递进,演绎传递给人们,营造符合当代人审美,简洁而又意味深长的景观空间。
一进 · 门

沿路闲情逸致的曲水流觞和富有禅意的枯山水景空间,自然质朴与人文气息交融,将人从外引至简洁、优雅的示范区入口,成为进入示范区域的第一级礼仪空间。

二进·礼


恢宏的主入口空间和端庄的迎宾中轴空间给人极大的震撼。四水归堂,逸璟双狮,更显住宅尊贵不同凡响。中心轴线一目了然,让人宾至如归。

三进·园

设计以现代极简主义的设计形式,在场地内打造丰富的空间层次,大面积的静水,涌泉,灯光,以小见大、步移景异,营造出空灵、静谧的意境而又不失奢华的空间景象。空间灵动,植物浓郁,水景贯穿前场,相对传统的中式风格来说,更显清雅淡丽。




四进·转


五进·觞


中轴景观,从北方皇家园林中的御道获得灵感,设计汉白玉云纹地刻,更添礼仪尊贵大气,在亭廊中表达天圆地方的传统礼序思想。廊架连接入口与现代极简的院落式空间。列植的竹林,浓郁的植物氛围,营造疏朗、自然、雅致的人文氛围。


六进·户


在别墅庭院,雅致的新中式建筑风格,搭配现代手法设计的景观,不规则的汀步,更添雅趣。别墅庭院摈弃华而不实的装饰,回归生活本源,将最美好的生活想象注入这片土地。

细 节

建筑、景观、室内浑然一体,通过细节材质的精心处理,营造一种引入入胜的生活氛围。


想了解更多详情,更多房产资讯,或者有关于房产方面的问题,欢迎留言,或者私信关注小编,一起交流学习~
谢谢阅读