【作品小区】沂源西域华府
【面积】170㎡
【设计风格】美式轻奢
【设计施工】淄博业之峰装饰
【设计理念】美国是一个崇尚自由的国家,这也造就了其自在、随意的不羁生活方式,没有太多造作的修饰与约束,不经意中也成就了另外一种休闲式的浪漫。本案根据业主需求,把其中一个小房间做成衣帽间,增大了储物空间,浅绿色墙壁使整个房子氛围更加活跃。
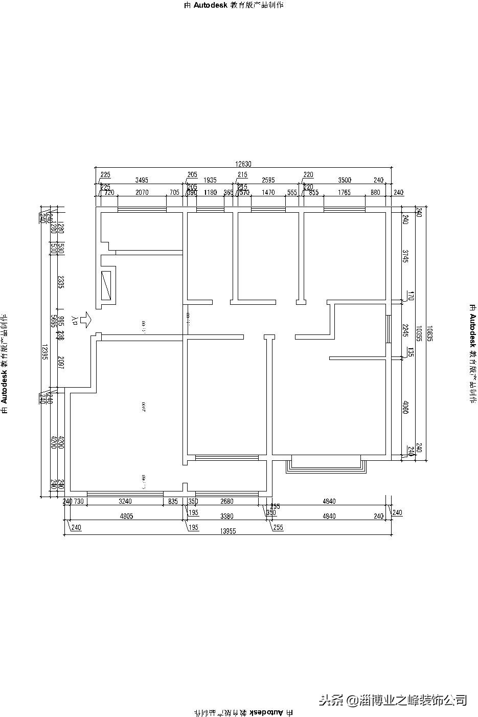
原始户型

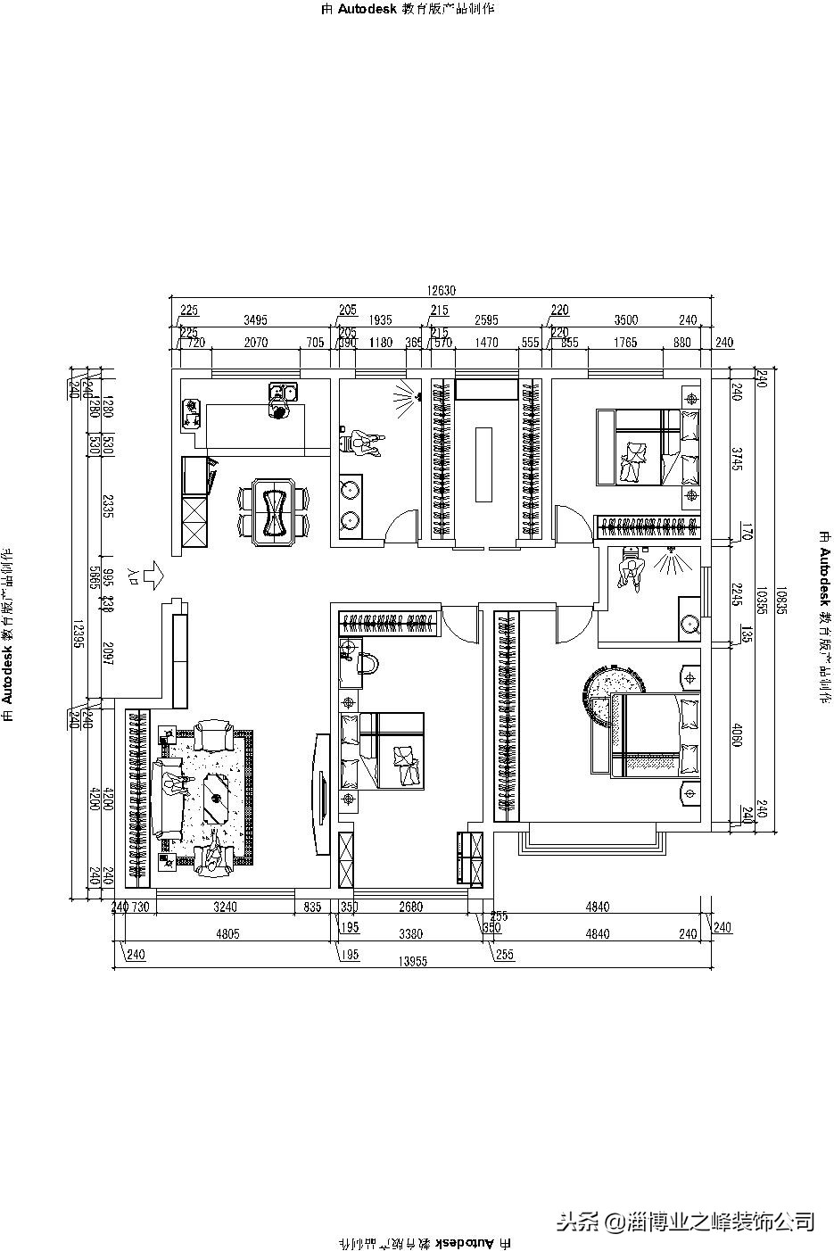
平面方案

客厅




餐厅



走廊

衣帽间


卧室


设计师


专注品质整体家装,一站式服务,做淄博老百姓放心的家装企业。
工程质量的好坏就是人品好坏——淄博业之峰装饰!
设计预约电话:17865934719
客厅装修|黑白灰风格|淄博别墅装修|淄博装饰公司|张店龙泰国际装修|曦园 | 明发效果图 |紫悦城效果图|天悦效果图 | 绿城百合风格装修|淄博装修公司|齐悦国际装修|客餐厅装修效果图
点击了解更多获取更多资讯