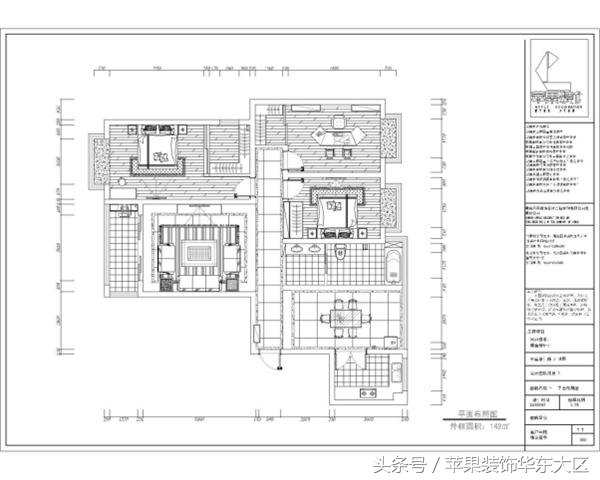
【装修楼盘】天元华雅花园
【装修面积】142㎡
【装修费用】15.5万(全包)
【装修户型】三室二厅一卫
【装修风格】现代风格
【设 计 师】周易
空间利用率:★★★★★
采光指数:★★★★
空间大小:★★★★★
户型推荐数:★★★★★
户型解析
1、三房的精致户型,全明的空间设计,通透而舒适,可以尽情享受生活的乐趣。
2、客餐厅非常宽敞,业主可以享受舒适的喜悦,功能布置清晰明了,利用率比较高;
3、卫生间设置在客厅的东侧,这样业主可以更便捷的生活,卧室独立分布可以享受各自的隐私,书房为业主打发了闲暇的时光。

餐厅
餐厅需要一个干净整洁的环境,以白色作为基色调,体现了洁净、温馨、浪漫的生活情调,整个餐桌与座椅采用了黑白色的光滑材质,突出了舒服的质感与进食的欲望,橱柜内设灯光效果,营造了时尚与大气的氛围,在设计上通过功能与形式的结合,把实用性体现得淋漓尽致。

客厅
宽敞大气中的精品设计,采用白色调的吊顶与沙发背景墙营造了非常舒适的家居环境,金黄色花纹材料的电视背景墙更显高贵与华丽,是现代风格中比较突出的表现,矩形的沙发造型体现出别具一格的风采,令人赏心悦目。

设计师介绍

姓名:周易
职位:高级设计师
设计理念:一个愉悦的空间是通过明快的艺术手法表现出来的,以满足人对实用、美观的装饰追求,通过深浅色调的主次搭配,突出了爽朗,大气的视觉效果。
擅长风格:现代风格,简欧风格,田园风格、简美风格、北欧风格、中式风格等
所属店面:湘潭苹果装饰店
毕业院校:湖南理工大学
代表案例:湘江学府,天元华雅花园,天元美居乐、步步高置业新天地、东方名苑、湖湘林语等
此装修案例来源于:湘潭苹果装饰官网