立面是建筑项目的形象,通常是标志性的,可识别的元素,成为整体重要的一部分。
我们经常在照片和艺术中看到它们,例如安德列亚斯·古斯基(Andreas Gursky)的作品,或作为电影布景的一部分。导演韦斯·安德森的“布达佩斯酒店”的粉红色对称外观,甚至是音乐录影带或专辑封面,比如齐柏林飞艇(Led Zeppelin)的传奇“Physical Grafitti”。
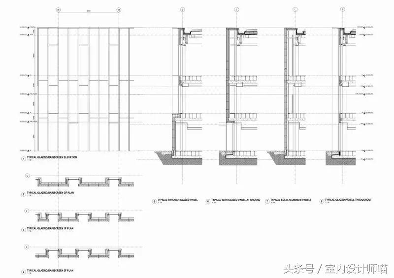
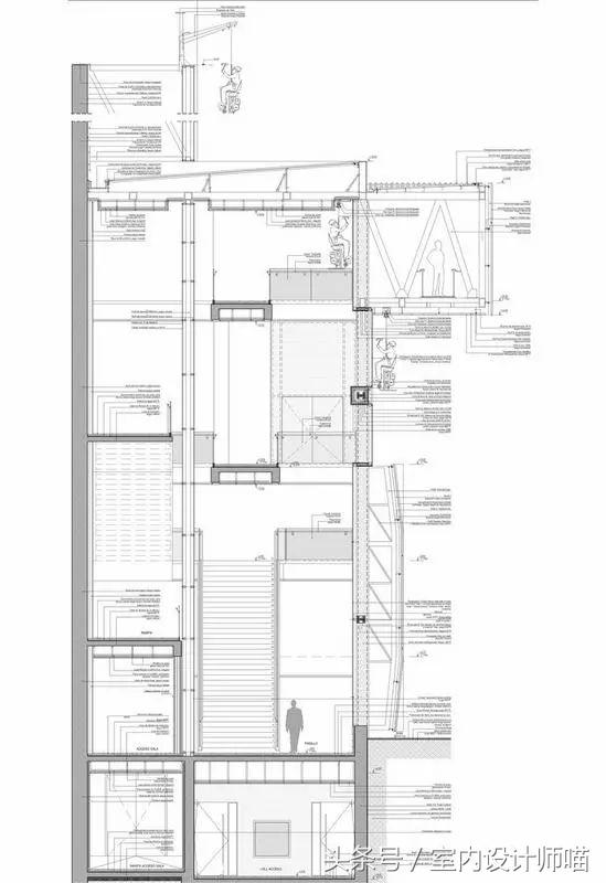
令人满意地表现立面细节的复杂性之一是观点。 立面细节的最佳视图/框架是什么? 是剖面图,轴测图还是平面图?
我们选择了50个立面细节,目的是展示处理这种表现形式的不同方式,突出特性,接点,内部舒适度和颜色(以及其他属性作为外墙的一部分)等方面。
1、Villa el Libertador Príncipe de Asturias Municipal Hospital / Santiago Viale + Ian Dutari + Alejandro Paz

2、圣菲波哥大基金会医院 / El Equipo de Mazzanti

3、Gribone Building / Ventura Virzi arquitectos

4、Mahallat Residential Building No3 / CAAT Studio

5、Star Engineers, Administrative Building and Factory / Studio VDGA

6、砖楼/ Ventura Virzi arquitectos

7、光影玻璃住宅/ Hiroshi Nakamura & NAP

8、洛德圣安东尼奥会所/ Dutari Viale Arquitectos

9、 Angle Lake中转站及广场 / Brooks + Scarpa

10、Secondary School Extension / SMS Arquitectos

11、光影玻璃住宅/ Hiroshi Nakamura & NAP

12、大理石之家 / Openbox Architects

13、垂直住宅/ Miró Rivera Architects

14、新旧交织的拼贴住宅 / S+PS Architects

15、江南区老宅改建 / Joho Architecture

16、BLM私人别墅 / ATRIA Arquitetos

17、洛德圣安东尼奥会所/ Dutari Viale Arquitectos

18、Angle Lake中转站及广场 / Brooks + Scarpa

19、Secondary School Extension / SMS Arquitectos

20、美国托宾艺术表演中心披上金属“面纱” / LMN + Marmon Mok

21、Stapleton社区新图书馆/ Andrew Berman Architect

22、Mont-Ras酒庄丨Jorge Vidal + Víctor Rahola

23、G.Zanella小学改造和扩建 / Giulia de Appolonia- officina di architettura

24、Northwestern University Ryan - Walter Athletics Center / Perkins+Wil

25、On Detail: Textile Facade

26、神秘食盒 / 加州大学环境设计学院+隈研吾

27、神秘食盒 / 加州大学环境设计学院+隈研吾

28、Somriures 牙科诊所/ Masquespacio

29、ecoSuites, A Reed-Clad Hotel / Alex A. Tsolakis Architecture

30、Hive Hotel 外墙更新设计 / 前置建筑

31、Coallia公寓和社交餐厅/ PERIPHERIQUES Architectes

32、墨西哥照明幕墙/ PTaller David Dana Arquitectura

33、2016年里约奥运手球馆

34、Weill Cornell Medical College Belfer Research Building / Todd Schliemann | Ennead Architects

35、伦敦西部的Sky Central工作场所/AL_A, HASSELL + PLP

36、1,500 Semi-Transparent Plastic Baskets Form a Lightweight Facade

37、加布里埃拉米斯特拉尔文化中心

38、荷兰吊车轨/ OTH Architecten

39、Vakko总部和Power媒体中心/REX

40、宁波万达广场立面/ LAB Architecture Studio

41、法国蒙特龙莱班*场赌**/ DATA architectes

42、韩国釜山歌剧院/ Henning Larsen Architects + Tomoon Architects

43、Manhattan Districts 1/2/5 Garage & spring street Salt Shed / Dattner Architects

44、 海洋馆 / Stefano Boeri Architetti

45、伦敦设计博物馆 / OMA + Allies and Morrison + John Pawson

46、Cubic Buildings by NADAAA and Himma Studio Redefine the Office Space

47、Rifugio Monte Penna / Lucio Serpagli

48、维也纳经济大学图书馆及学习中心/ 扎哈·哈迪德

49、Weill Cornell Medical College Belfer Research Building / Todd Schliemann | Ennead Architects

50、 Pathe 基金会 / Renzo Piano Building Workshop

让设计更容易,为设计师附能 —— 设计头条APP