户型解析
地址:汤泉世家 户型:复式 面积:170㎡ 风格:现代简约风 在接触业主之初,了解到业主比较注重造型和设计的美感,并且十分注重家庭细节上给人的舒适性,在经历了数次的设计方案的沟通和一些修改后,最终达到了业主的设计需求。
本案主要定义为现代简约风,但其实按照一些设计理念来说,本案说是现代轻奢风也是可以的,在配色上多用现代化的灰色和白色来做基调,综合暖色系的颜色,比如餐厅的粉色,卧室的蓝色和绿色,再以金色线条做装饰,打造设计感,最终呈现出现代温馨的效果。
本案设计师:陈海俭

原始户型图

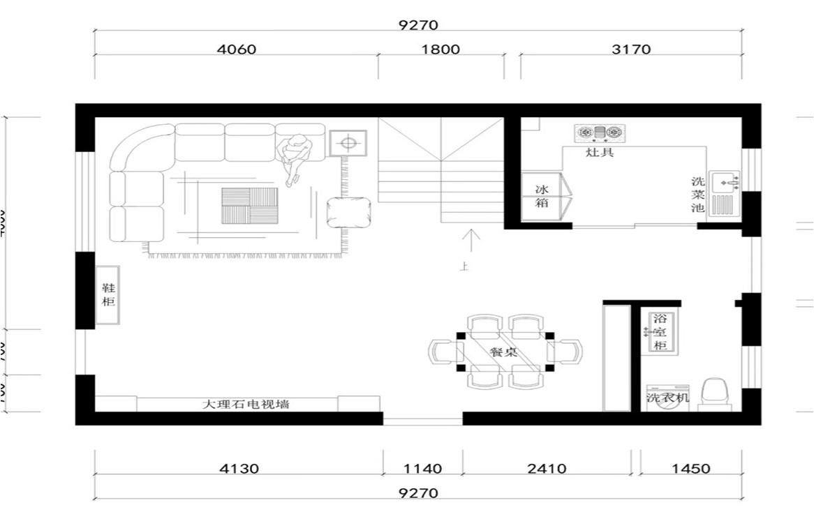
平面布置图
客厅

客厅
进门处左侧是厨房的位置,黑色的玻璃推拉门让整个空间看起来更通透。 客厅主要以现代时尚为主,基调为灰色,再搭配黑色的电视柜和茶几,十分具有品质感,组合沙发都用了灰色,简约舒适又温馨。
餐厅

餐厅
餐边柜嵌入墙体,更加节省空间,灰色的柜面用金色的线条来装饰,和粉色的餐椅十分相衬。
主卧

主卧
黑色的大型组合衣柜可以收纳很多的衣物,用了白色线条来装饰,颇具质感,床头背景墙用了金色的线条来框住,看起来奢华又大气。蓝色的窗帘和客厅保持一致,纱帘和窗帘搭配增加了卧室的温馨感。
次卧

次卧
次卧和主卧相比看起来更加稳重,没有玻璃感的衣柜,黑色的木质衣柜,简单的金条线条,精致又时尚。蓝色的背景墙也很有特色,软包的床头安全又舒适。
书房

书房
书房最重要的东西就是书架了,本案的书架是定制的,上下推拉的方式不仅节省空间,储物空间也更大,编织的藤椅放在阳台一侧,休闲时刻书房看看书喝喝茶也是一个不错的选择。
卫生间

卫生间
卫生间的功能区做了重新的划分,干湿区分开,淋浴区用了玻璃推拉门,白色的墙砖提升光线感,洗漱区增加了置物架,可以收纳更多的生活用品。