葛塘街道保障房有变更
新区首批就业实习基地认定结果公示
新区药谷企业先声东元1类新药即将获批
高美基因完成数千万元Pre-A轮融资
....
最近发生了哪些事
快来跟小北看看吧

葛塘街道保障房变更情况
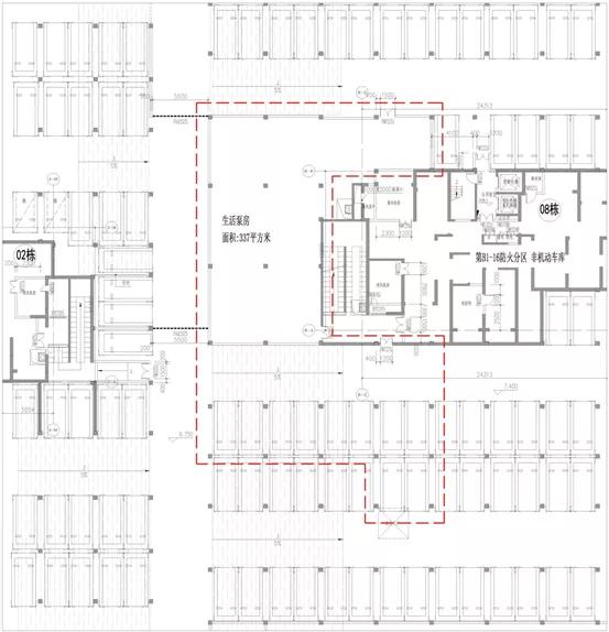
项目概况
项目位于新区葛塘街道,东临葛塘河,南临规划道路,西至大厂污水处理厂,北至马汊河,用地性质为R2二类居住用地。规划用地面积123735.15㎡,容积率≤2.2,建筑密度≤20%,绿地率≥35%,建筑高度≤60m。总建筑面积约36.97万㎡,其中地上建筑面积约27.21万㎡,地下建筑面积约9.76万㎡。该项目已于2017年12月15日取得建设工程规划许可证,许可证号:建字第320116201730032号。

定位红线图

根据项目建设及实际使用需求,为提升项目居住品质,依建设单位申请拟对该项目中02栋一层绝对标高、地面机动车及非机动车坡道增加玻璃顶棚、住宅户内开敞阳台改成封闭阳台、地下室生活泵房使用面积、地面机动车数量及位置等进行变更,本次调整不涉及建筑面积及绿地率变化,满足日照要求。主要调整内容如下:
住宅户型开敞阳台改成封闭阳台

变更前 变更后
单体图变更——定位红线图
变更内容
向上滑动阅览
(1)变更1 将02栋住宅一层绝对标高11.500变更为9.280。
(2)变更2 地面机动车位置根据测绘成果进行调整,数量由131辆变更为132辆。
(3)变更3 机动车及非机动车坡道增加玻璃顶棚。
单体图变更——地下室生活泵房及周边机动车位
地下室一层生活泵房面积微调,周边机动车停车位相应调整。

变更前

变更后
单体图变更——地下室生活泵房及周边机动车位
地下室一层生活泵房面积微调,周边机动车停车位相应调整。

变更前

变更后
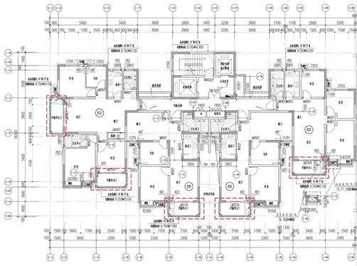
单体图变更——01~08栋住宅单体
住宅户型开敞阳台改成封闭阳台。

变更前

变更后

变更前

变更后

变更前

变更后

变更前

变更后

变更前

变更后
建设单位
南京新北建设发展有限公司
公示方式
1、项目建设现场
2、南京市江北新区政务服务中心
3、南京市江北新区网站(http://njna.nanjing.gov.cn)
公示时间:2020年7月27日至2020年8月5日
批前公示旨在征询公众意见,并非最终审批结果。如您对该规划项目有意见表达,请在公示期内将书面意见邮寄、电子邮件或者传真至南京市江北新区管理委员会规划和自然资源局规划管理办(请注明“公示反馈意见”),公众意见将作为审批决策的重要参考依据。
地址:南京市江北新区凤滁路48号
邮编:210031
邮箱:NJJBXQGTJ@163.com
传真:025-88029807
新区首批就业实习基地认定结果公示
根据《关于组织开展2020年江北新区就业实习基地申报工作的通知》(以下简称《通知》)要求,江北新区教育和社会保障局已完成首批就业实习基地认定工作。
根据审核结果,拟认定南京钢铁股份有限公司等5家企业为南京江北新区首批就业实习基地,并参照《江北新区青年大学生就业创业引领计划实施细则》,为在基地实习的青年大学生发放实习补贴。教育和社会保障局负责每年对实习基地的监督和管理,加强服务指导、过程跟踪、考核评估等工作,对弄虚作假或考核不合格的基地责令限期整改,对整改后仍不能符合条件的将撤销基地称号。
附件:
江北新区首批就业实习基地名单
南京钢铁股份有限公司
江苏集萃药康生物科技有限公司
江苏长江涂料有限公司
南京欣网通信科技股份有限公司
南京赛格微电子科技股份有限公司
名单公示时间:2020年7月28日至8月3日。
如有异议,请于公示期内向江北新区教育和社会保障局进行反映。
联系电话:025-88020965
联系地址:江北新区凤滁路48号A319室。
南京市江北新区禁毒办实体化运作
7月30日上午,江北新区举行禁毒办实体化运作揭牌仪式及第一次工作例会。期间,禁毒办负责人分别介绍了江苏省禁毒委关于各成员单位工作职责、南京市禁毒委关于市禁毒办实体化运作的实施方案以及新区禁毒工作会议的相关精神要求,同时就新区实体化运作做了解读并明确各成员单位首次进驻人员的工作要求和工作职责、工作纪律。



药谷园区企业先声东元1类新药即将获批
近日,新区生物医药谷园区企业先声东元1类新药依达拉奉右旋莰醇注射液即将获批上市,标志着脑卒中治疗将迈入救治新时代,为中国脑卒中患者带来更多获益!

据了解,先声东元1类新药「依达拉奉右旋莰醇注射液」的上市申请(受理号:CXHS1800032)于近日已经变更为"在审批",预计近期获批上市。依达拉奉右旋莰醇注射液是先声东元母公司先声药业历经13年自主研制开发的具有自主知识产权的1类创新药,用于治疗脑卒中。

(资料来源:NMPA)
高美基因完成数千万元Pre-A轮融资
江北新区生物医药谷企业江苏高美基因科技有限公司已于近期完成数千万元的Pre-A轮融资!本轮融资由南京江北新区科技投资集团旗下的高新创投独家投资,此举将加速布局其癌症早检产品上市,实现癌症早筛早诊回报社会。

江苏高美基因科技有限公司(以下简称“高美基因”)坐落于南京江北新区的基因大厦,是一家聚焦肿瘤表观遗传学和大规模的数据分析,覆盖了肿瘤早期筛查、伴随诊断、动态监测、预后评估等方向的高新技术企业。当前高美基因正在聚焦于癌症早检产品的研发,预计在明年年初将推出肝癌的早检技术产品。
新区校园暑期维修工程招投标工作完成
每逢暑假,新区各中小学都要进行维修和改造。近期,南京市第十四中学2020年暑期维修工程项目顺利完成开评标,标志着2020年江北新区暑期维修项目进场交易正式开始。
据了解,南京市第十四中学本次维修改造校内宿舍楼一栋,共3层,面积约为1580㎡,改造录播室一间,面积为140㎡,教学楼屋面防水改造,面积为580㎡,另部分附属工程项目等,维修改造内容包括:顶面、墙面、地面处理、部分墙体拆除、屋面防水改造、消防改造、新增弱电系统以及水电安装等建设内容。
截至7月24日,新区公共资源交易中心完成本年度暑期维修项目40个,共计52个标段的进场交易工作,进场交易额合计5606.05万元。目前,各中小学已经陆续有条不紊开展下一阶段的施工工作。
(来源|南京江北新区 编辑|郑好 江北新区融媒体中心出品)