
设计副总监——陈跃超
案例信息
⊙项目地址:信和·中央广场
⊙空间性质:三房两厅
⊙建筑面积:127㎡
⊙风格定位:现代风格
⊙工程造价:18万
⊙主要材质:东鹏瓷砖,金牌橱柜,大自然木地板,石材,木饰面板,钛金,硬包,墙布
设计说明
一方环境,一片生活,一种人生;
沉稳的木,精致的灰,高贵的金;
幸福的空间,一方安静,一片祥和,一种品位。
原始结构图

原始结构图
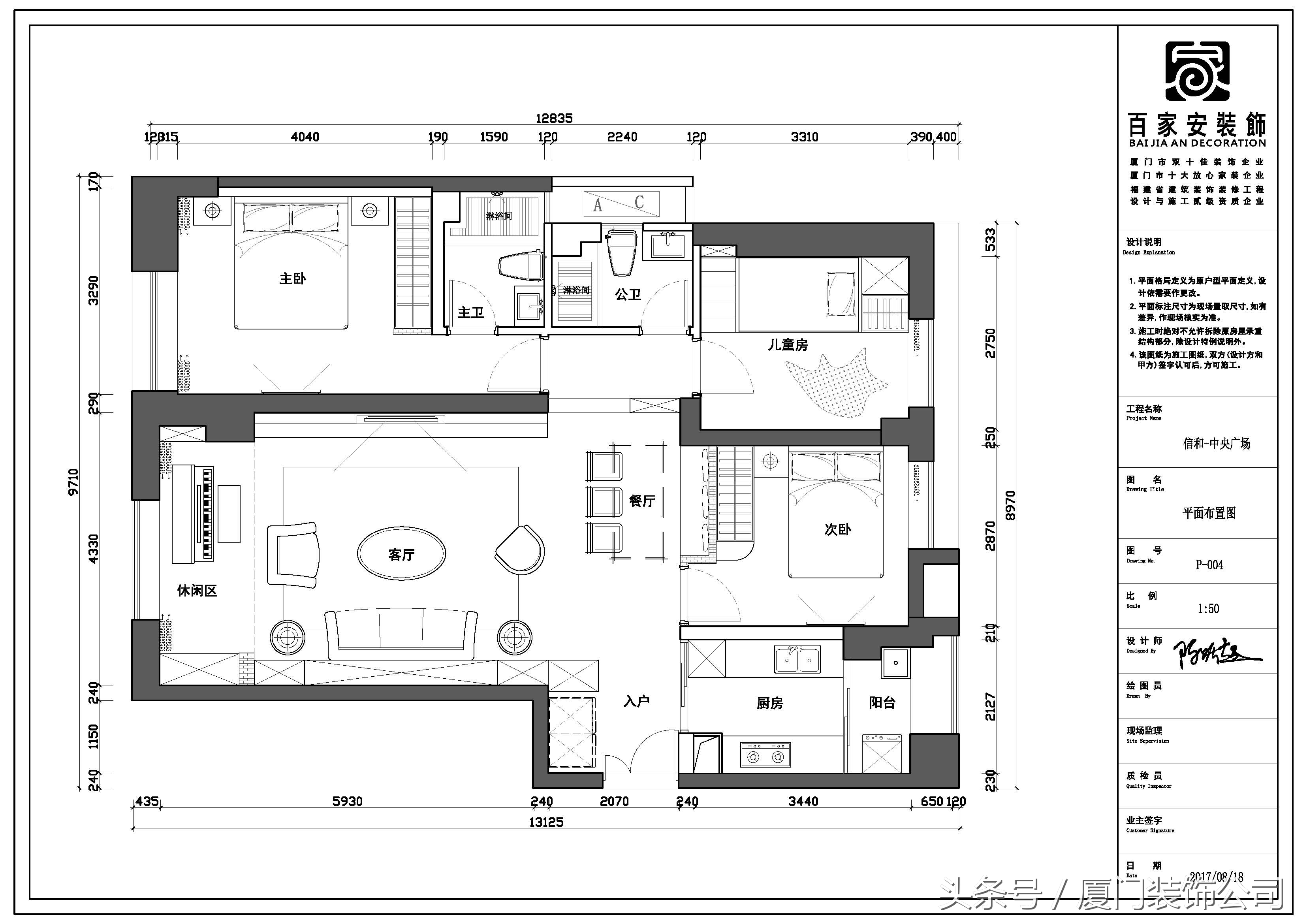
平面布置图

平面布置图
完工实景图

客厅

客厅

设计师与业主合照

客厅

客厅

客厅

客厅

客厅

客厅



厨房

卧室

卧室

卧室

卧室

卧室

卫生间
关注厦门装修公司——百家安装饰,查看更多家装资讯、攻略及案例!
网址:www.bjazs.com