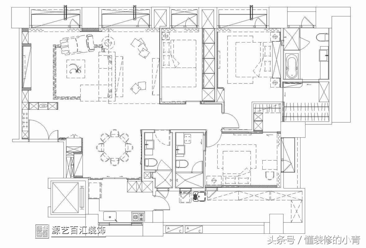
【小区】国雅城
【面积】139平米
【地址】山西太原
【设计风格】欧式风格
【房屋类型】三室两厅一厨三卫
【门厅】

【客厅】顶面采用跌级石膏板吊顶,提升空间层次感,墙面采用淡色乳胶漆饰面


【儿童区】地面采用实木复合地板,客厅与儿童区采用地面材质不同进行分割,异性的跌级吊顶显得很有空间感


【餐厅】圆形的餐厅吊顶设计,外方内圆,有一种古代铜钱的感觉

【卧室】床头背景采用软包加石膏线,淡紫色的双人床,地逃采用同一色系地毯装饰,整个空间都是一中浪漫色彩

【主卫】暖灰色系的卫生间,玻璃隔断做干湿分区

【次卧】白色的家具,搭配简单的石膏线,很标准的欧式风格

【儿童房】蓝色加粉色的墙面,搭配可爱的小天使装饰品,这样的房间简单又可爱


好了,今天的案例就分享到这里了。
喜欢什么风格就加我微信告诉我,下一次我们继续。
记住哦,我是懂家装的小青,而不是白蛇传里的小青!
太原公园时代城99平欧式风格装修案例
太原西部丽景北欧风格装修案例
太原中海寰宇天下127平简约风案例
太原润景原著96平美式风格装修案例
太原国樾龙城——13万元打造的140平米简约复式