
01.
重庆居民楼改造“月河对影“
朝天门
老人们讲,两江交汇之处是一个城市的丹田所在,对于这样一个无论盖什么都会引来非议的地方,最稳健的决策就是不做任何建设。然而,重庆却做出了更具勇气的选择,在长江、嘉陵江交汇的朝天门,个性张扬的“来福士”正在拔地而起,傲视两江。

远眺
而在它的对岸,无数的江景民宿已打扮妥当,争相在这“朝天扬帆”的盛景前合影:不同的装修与摄影风格,不变的是窗外“来福士”那魔幻的施工现场,它们都是“Airbnb”上最夺目的定妆照。

二号房楼梯

远眺
小区
本项目位于一处临江小区的25楼,面向朝天门有极佳的观赏角度。从外部观看,小区的房间有局部跃层的处理,形成通高六米的开放式阳台,物业对建筑外立面并不加以控制,这给了住户很大的发挥空间。

二号房楼梯

楼梯休息平台

二号房楼梯二楼视角

二号房楼梯

二号房楼梯二楼视角
这里既有设计师的奇思妙想,也有住户的随心所欲:有的封闭起阳台,有的添置了夹层,有的改造成花园... 不同的结构形式、材料与色彩争奇斗艳,整个小区似乎重现了柯布西耶的阿尔及尔市OBUS规划,是一个可容纳多样化表达和二次设计的基础结构。

一号客房榻榻米

三号客房
改造
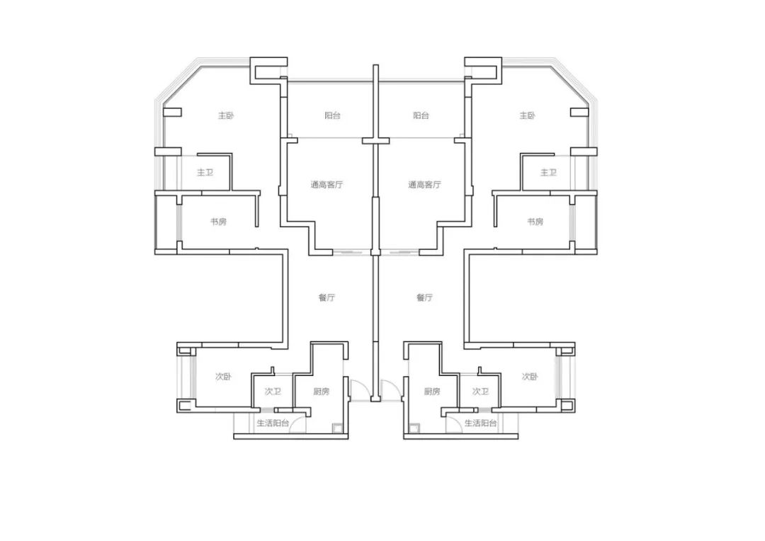
小区的户型是一梯两户共233平方米,每户三室两厅两卫,其中客厅部分通高六米。业主买下整个25层用于民宿经营,综合考虑现有的管线位置和房间面积,将除餐厅外的部分改造为七间客房(其中一间为跃层)。
得益于江景房的先天优势,这里既有面宽12米的转角落地窗,也有通高六米的临江阳台,景观资源可以用“横轴”和“竖轴”的方式被引入,设计师需要做的仅是拆除多余的隔墙来充分发挥这一优势。

改造后一层平面图

改造后二层平面图
为了提升民宿的入户体验,设计师选择仅保留一个入户门,将两间餐厅打通形成一个近40平米的公区,置入吧台和早餐厅的功能,并在公区正中间设置一条长桌,以避免入户后漫无目的的流线,引导住客绕场一周后再进入自己的房间,以期能够在尺寸间创造出节奏上的变化。

酒吧及餐厅

酒吧及餐厅
网红
身处城市小区,决定了它很难具备精品民宿的品质;而坐拥两江盛景,又使其不甘沦为商务快捷酒店,用“网红民宿”来描述其定位十分恰当。
网红经济是一个值得探讨的现象,居伊·德波曾在《景观社会》中预测了一种十分悲观的生存状态:整个社会生活显示为巨大的幻象的堆积,少数人演出,多数人被动观看,依靠幻象而活,无论是商品还是明星都是被多数人观看的幻象。

二号房浴室

五号房

五号房浴室
但现在看来,这一趋势似乎发生了扭转,随着微信微博、直播平台的兴起,普通人的平凡生活开始变成观看对象,于是人人都可以是表演者,大家互相观看。
而面对一个个网红打卡点,人们先是被戏剧化的真实所吸引,但随后就会去进行切身体验,并拿起手机化身为新的表演者,被动观看的生活状态也随之瓦解,一种新的生活常态被建立。

二号房楼梯夜景

二号房楼梯夜景
楼梯
如何利用六米通高的阳台创造与朝天门的互动关系,在沿岸数不清的民宿中脱颖而出,成为第一网红打卡点?
电影《蒂凡尼的早餐》带来了灵感,奥黛丽赫本倚在消防楼梯上拨弦清唱“Moon River”的画面符合在阳台上制造奇异幻象的一切条件。

二号房楼梯

二号房楼梯夜景
于是设计师将通往跃层二楼(客房卧室)的楼梯至于阳台之上,配合对岸的景观将休息平台设计成两个取景框,提供不同角度和姿势的观景选择,并期待在此发生不同的桥段与情节,为住客提供在网络上化身为表演者的舞台。

二号房楼梯二楼视角 ©青·微舍工作室
室外楼梯的现场体验有着出乎意料的场所感:与风景的对视关系,可倚可坐的各级台阶,以及木纹温暖的触感,都让人得以诗意的停留。置身于此,便不再想跟居伊·德波辩论“观看”与“表演”的问题了,却更想向海德格尔求教一下现代化社会中的诗意栖居,或是对天地神人的守护。
当一名旅客背负行囊来到重庆,沉溺于灯红酒绿的感官刺激,栖身在一个巨大人造物的第25层,其生活方式无疑脱离了淳朴而异化为征服大地、拒绝天空、远离诸神和自我流放。

二号房楼梯夜景 ©青·微舍工作室
但这个阳台上的楼梯却可以用自己的方式将天地神人重新聚集于此:它护送着慢悠悠或急匆匆的旅客,在通达卧室的途中,获得了重新感知天空与大地的方法,这也就是在跨越他们已经习惯了的沉沦状态,无论这一过程是否被特别的思考到了。

阳台 ©青·微舍工作室
项目图纸

项目区位

改造前平面图

分析图

效果图
项目信息
室内设计:青·微舍工作室
地址:南山区, 重庆, 中国
主创设计师:胡兴、余凯、刘常明
设计团队:李阳,黄尤佳,肖磊,贵溥健,王志铮
建筑面积:233.0 平方米
项目年份:2019
摄影师:青·微舍工作室
建筑技术设计合作单位:得森设计
建筑技术设计团队:李哲,陈昀飞,沈一方
现场负责人:李阳
业主:界归(重庆)酒店管理有限公司
文章来源:建日筑闻
--延伸阅读--
一个最新的民宿群改造案例
02.
东莞新基白房子民宿群
密集村庄的共生策略

月夜星空
新基白房子民宿群项目位于东莞市麻涌镇新基村,一个十分典型的珠三角城郊密集型农村。
在新基村,设计师采取一种散点式的更新方式,通过对散落在整个村落中的荒废破败、有文化价值的老房子进行改造,打造出一个开放式的,与当地村民共生共存的民宿集群。


新基础村鸟瞰图

天台共享空间与祠堂公共空间的共生
中国农村原本是一个严格尊重土地所有权的社会,这使得设计原本共享的概念难以实现。因此在整个社区的核心组团的设计中,设计师利用相邻四栋被租赁下来的房子,打破房子间的围墙、众筹一个公共空间——将四栋房子的院子,附属空间,过道空间,露台空间等原属于单个房子内部的公共空间全部集合到一起,梳理出一个属于大家的能适应新的使用功能的公共空间体系,以解决整个白房子民宿社区缺乏公共活动空间的难题,众筹一个社区活动中心。

分析图

分析图

新宅与旧宅的共生


众筹院子
项目建成之后,核心组团很自然地成为了辐射整个白房子社区的公共空间,白房子团队在这里举办了多场天台音乐会,多次天台烧烤派对,这些活动的参与者,除了运营方和民宿住客,还有村子里的老人小孩等。


长在屋顶上的白房子

音乐会活动

建筑与植物的共生
由于这个天台公共空间的存在,本地村民与外来住客有了更多的交集,彼此之间的交往更加融洽,设计师原本设想的散点式、共生式的旧村更新和民宿生活态度得到了很好的实现。

分析图

室内空间的光影与细节

现代建筑与传统水乡文化的共生
项目图纸








项目信息
建筑师:竖梁社建筑
地址:麻涌镇新基村, 东莞市, 广东, 中国
主创建筑师:钟冠球,宋刚,朱志远
设计团队:林海锐、赵海博、金鑫、田涛、肖明慧、阮洁莹、梅琬菲、肖欣、葛凤姣(实习) 、王子轩(实习)
建筑面积:6000.0 平方米
项目年份:2017
摄影师:吴嗣铭
结构设计:汪丹松
室内软装:直立空间
文章来源:建日筑闻