
申购比17:1,你关心的这个共有产权项目正商明苑将于12月27日17:00前截止对申购结果的复核申请。小狐焦推测,这个丰台目前唯一还能买的共产项目,不出意外将于2月份正式开启摇号选房!

小狐焦每天都能收到不少询问关于共有产权及限竞房项目的问题,置业群里的讨论也是此起彼伏。眼看着申购比64:1的石景山共产项目玉景阳光上周六选房2居室小户型秒光,丰台限竞房西城天铸小户型去化高至97%,大兴中海云熙单次开盘去化套数创2018三季度以来限竞房市场记录,小狐焦也为咱们申购了正商明苑的小伙伴们着急!(项目施工现场周边↓)

置业共有产权房还是限竞房?(解答附在文末)我想这个问题戳中了不少手头资金不充裕的刚需一族们的内心。这一站,小狐焦先带大家看看正商明苑,项目有何特色?它的周边配套和户型究竟怎样?
Part 1 交通
正商明苑位于南四环边的丰台槐房路,小狐焦实测,下了地铁4号大兴线新宫站A号口,步行约800m到达项目所在地块。地铁出行确实方便,800米的距离也算名副其实的临铁盘。值得一提的是这个新宫站站点非常大,正在修建中的19号线和地铁机场线(预计2019年通车)未来将在此与4号线交汇,新宫站也将作为始站投放使用!19号线一期规划南起新宫站,北至牡丹园站(10号线站点),跨越丰台、西城和海淀3个内城区。设置的10个站点中,有8站为换乘站,2020年就能实现通车!未来小区的业主日常往返内城上班,周末休闲娱乐都会更加便捷。

除了地铁外,项目周边公车路网也很发达。光是从地铁口走到项目门前的这段路,就看到了2个站点。1公里内可搭乘的交通线路也是多达17条,其中小区门口的343路更是直达北京南站。自驾出行,沿着南苑西路往西北侧直行1.6公里可以直接上京开高速,避开早晚车流高峰畅行四环五环。总的来说,项目周边交通配套还不错,临铁800m,未来三地铁线交汇,公车路网发达,自驾出行直通南四环。

Part 2 配套
商业:刚出新宫站,小狐焦就看见了近处的万达广场,没忍住就进去转了转,餐饮娱乐商超那是应有尽有!不说别的,负一层的永辉超市就能满足日常生活必须品的消费~

虽说周边有些成熟社区,自然基础生活配套不会太差,但是小编在项目四周逛了逛,硬是没找着除了万达的任何,挠头自问:这还是临铁房吗?深感与同为四号线的公益西桥站周边(见下图)形成鲜明对比。好在正商明苑往西2公里有一个有名的新发地蔬菜市场(353路公交可达),里面的蔬菜水果很便宜很新鲜!可以一夸!可惜的是,其他商场比如马家堡荟聚购物中心、花乡奥莱村、乐家购物中心就要三公里往外一点了。

教育:教育资源可以说是丰台区的通病,新宫板块更是无话可说。小狐焦从土地出让公告上发现,正商明苑配有基础教育用地。2公里范围内,2个幼儿园,一个槐房路小学,南苑中学从项目过去自驾要个3公里。基本的教育需求能满足,但还是想吐槽一声周边教育资源一般!
医疗:最近的三甲医院天坛医院新院区距离项目有个4.5公里,其神经外科也是相当有名气了!项目周边多为一些小的社区卫生服务站,项目门口约200米处就有一个,但它长下图这样…

Part 3 户型

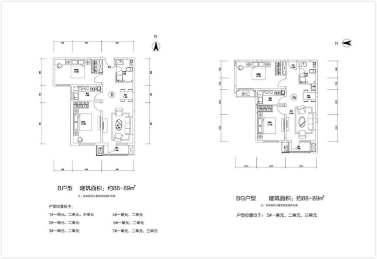
正商明苑一共七栋楼,999套房源,推出A/A改(89㎡)、B/B改(88㎡)四种户型,皆为2居,其中A户型409套、A改户型90套、B户型410套、B改户型90套。
A/AG户型,典型的“刀把”户型,乍一看就不舒服。A户型是南北朝向,AG户型东西向,明厨明卫,但通风和采光有待考究。A户型南向的采光面只有一个,还位于主卧,阴天或是下午晚些时候主卧与客厅拐角处基本就暗了,通风肯定也是比不过方正户型。AG甚至没有南向采光面,主卧还面临西晒的问题,通风小狐焦就不评价了!

B/BG户型缺点1,暗卫设计且不干湿分离,卫生间会比较潮湿。缺点2,功能间布局上不如A的两个户型,没有做到动静分区,卫生间离主卧的距离也太远。但这两个户型较方正,而小狐焦是比较喜欢客厅南向的户型。BG户型全朝西,B户型全朝南,两个户型除了朝向没有太大区别。

总的来看,正商明苑没有全明户型。和选房结束的丰台另一个四环共有产权项目槐新雅筑相比,正商明苑5号楼东西朝向让人头疼。两个项目A户型的功能间布局上有所差别,正商明苑更优;B户型基本一致。小狐焦推荐正商明苑的B户型!
Part 4 价格
正商明苑含全装修费用销售均价35000元/平方米(根据具体楼层、朝向在±5%的范围内调整销售价格)。也就是说,按照3.5万元/平(含装修)计算,最高总价仅需327万。对比四环、新宫板块动不动就千万起的新房价格,不能再美丽了。

新房这边,项目往南大概2公里,改善盘泰禾金府大院、天恒天悦壹号的均价都到了8万起。虽说这两个项目主打改善大户型,不具可比性,但这样的价格也一定程度反应了板块的价值,未来可期!
周边二手房方面,2005年建板楼翠海明苑90余平两居均价55109元/㎡,2010年建的塔楼南庭新苑68㎡的小二居总价都要380万。90㎡以下户型的二手房售价基本都在5-6万/平之间。


四环边地铁旁,含装修均价只要3.5万。综合周边二手房及新房来看,这样的价格真的是很难再遇到了,小狐焦认为这也是为什么个人产权比例60%,无法达到70%的原因吧!(单价同样3万5的北五环中铁碧桂园,个人产权占比为70%)

总结,综合地段、价格、配套、户型来看,正商明苑还是靠谱。申购成功的朋友们可以去摇个号,选到小狐焦推荐的B户型,那真是完美了!暂且观望不出手的小伙伴,也可以考虑考虑,丰台四环还有一个未开盘的限竞房项目世茂国风长安值得期待一下。
如果您预算相对充裕,小狐焦建议首选限竞房,购买限竞房尽量选择城区内,投资的属性高一些。限竞房大部分户型都是90平米小三居,分布在五环外,价格在500万上下。除了拿到房产证五年后才能出售,和商品房没啥差别,位置好(西城天铸)、户型好(中海云熙)房子还是很抢手的!
共有产权房虽然价格比限竞房便宜,但不易出售,其出让必须卖给有共有产权申购条件的人。如果您是刚需自住,且不对升值抱有期望,那么小狐焦认为可以一试!
