
这一套140平米的新中式风格装修,整体以庄重的空间氛围,搭配上儒雅舒适的软装布艺,再点缀上精致清新的细节,装扮出一个典雅高档的中式氛围。
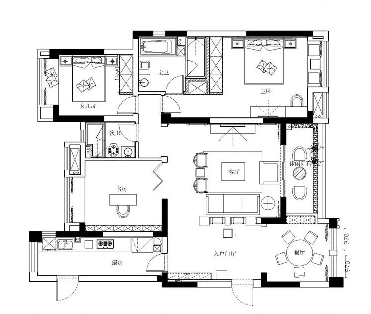
平面布置图

玄关

入户大门左边一个端景台,摆上禅意的摆饰、一幅圆形装饰画,在不经意间流露出独特的雅致感。

原本开门直对客餐厅的设计,为了避免这样一览无遗的视觉,在针对大门的位置装了一扇屏风墙,加入展示架,摆上精致的装饰品,显得高档好雅气。

玄关的地面拼花与吊顶造型,一进门就能感受到这是一个不平凡的家庭。
客厅

电视墙在木框造型分成3部分,中间区域是墙砖,两侧软包+壁灯的设计,以轴对称的设计,搭配上实木家具,沙发上垫着布艺坐垫,在庄重的空间里点缀出清新舒适的视觉与体验。
餐厅

餐厅布置在玄关右侧的靠窗位置,这里有着丰富的采光,6人位的大圆形餐桌布置,整体充满了品质的档次感。

餐椅有着舒适的布艺坐垫,而餐桌上也是布置上各种淡雅精致的餐具,整个餐厅令人胃口大开。
厨房

厨房一字形的长条格局,整体以中式木质的定制橱柜吊柜,搭配灰色抛光砖墙面地面,整个空间简约舒适,实用档次。
走廊

走廊的墙面竖着挂着一道墙饰,加入一组各式木质的装饰品,为空间注入了雅致的艺术感。
卧室

卧室床头墙以带有禅意图案的硬包板,结合舒适的软装布艺,给人以轻松的禅意气息。

床头墙的“花好月圆”图案,让空间散发出雅致儒雅的禅意。
阳台

阳台布置上石材与树桩茶几,再点缀上绿植,显得清新而舒适。
【品质今朝,私人定制】
顶级高端设计服务沙龙一条线
不管您是豪宅还是别墅,我们的私人定制毋庸置疑会为您带来称心如意!今朝装饰一站式服务亲情为您打造至臻府邸,品味人生享受奢华首选今朝!邀请您用独特的标准和眼光在我们的今朝做出信任的选择。

中国装饰行业十大品牌影响力
推荐阅读:
找熟人装修到底好不好
小户型装修千万别犯这4个错,犯一个毁一套房!
二手房装修需要注意的八件事,你确定不看?