人们总认为现代简约风格的装修就是简单的线条及黑白灰的色彩。其实不然,现代简约风格不单单是线条及面的体现,更是一种生活态度的体现。
写在前言:
【面积】:106 m2
【户型】:3室2厅1厨1卫1阳台
【设计风格】:现代简约风格
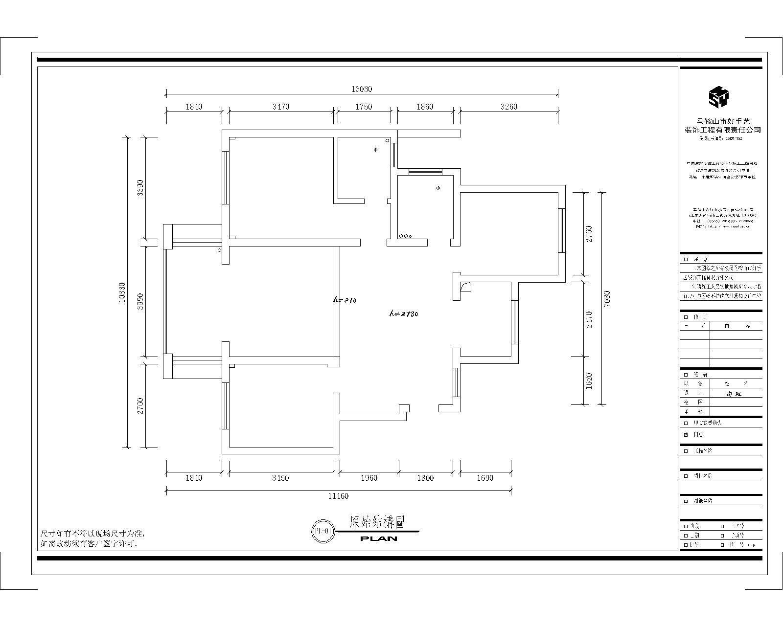
原始结构图

马鞍山秀山郡原始结构图
这是106平的户型,户型图来看。整体周正的,主要客卫对着入户门,会有风水上的禁忌。
接下来我们来普及一下这个风水上的小知识:
入户门正对卫生间,这种户型在风水上叫“内煞”,也称作“一箭穿心煞”。容易漏财,生病。厕所带浊气,而起有流水意为:流水留不住财。大门是迎财迎旺气之玄门,在家中占据主要风水作用,使用厕所与大门相对是大忌。
化解之术一:修改卫生间的门,偏离入户门的轴心线,或者换个方向。然而这个户型却不允许我们做这样的改动。
化解之术二:采用玄关迂回之术,在入户做一个玄关。但是这个方式有一定的局限性。需要入户有足够的空间。我们的业主喜欢开阔的视野,我们采用第三个方案。
化解之术三:就是在卫生间内摆放水晶,桃叶,吸附浊气,起到化解的作用。一定要是黄水晶,聚财。
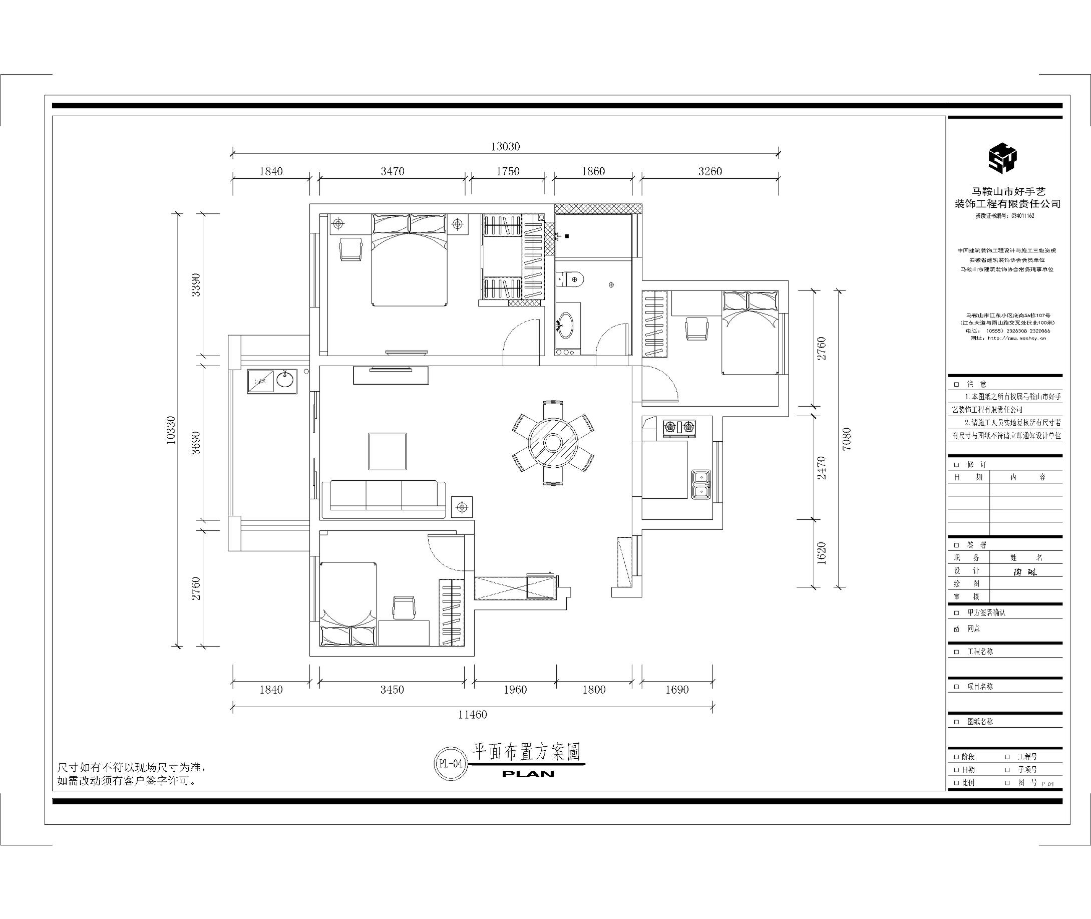
平面设计图

马鞍山秀山郡平面设计图
平面效果图

马鞍山秀山郡平面效果图
这套现代简约风格家,给人一种给人无所拘束,清爽悠闲、时尚、温馨大方的感觉。
简约的背后也体现一种现代“消费观”既注重生活品位,注重时尚健康,注重合理节约科学消费。

现代简约风格
这家业主朋友在墙面的处理上选择了最简单的方式——使用白色乳胶漆,整体看起来会比较单调,这个时候就是考验我们设计师软装搭配的功力了,通过使用有特色的装饰画,配合着大胆跳色的枕头,绿色植物的摆放,和窗帘色彩的选择,整体上有个呼应,看似简单的设计却处处表达出一种生活的态度!

现代简约风格
由于厨房面积有限,设计师把冰箱由厨房移至客厅,把冰箱和进门的储藏柜放在同一个空间里,既解决了厨房使用面积过小的局限,又显得进门储藏柜整齐,大气,一举双得~
你家的样子就是你的样子
欢迎加入群聊一起讨论你爱的装修风格~