
男屋主一家五口,孩子、老人同住,属于典型三代同堂,打算装修位于重庆渝北区融创·凡尔赛的别墅,让父母安度晚年,一家人其乐融融,每个人在此享受生活。
无奈,别墅面积虽为500㎡,可利用的空间却数得过来,除了每一层“块状化”的架构外,每一层楼都分布了大小不同错位的异形挑空区域(每层都会有个“空”区域),实属让人“欲哭无泪”的鸡肋户型,想要住的舒适,就要进行大刀阔斧的改造!
户型情况
户型:别墅
面积:500㎡
花费:300W
位置:重庆渝北区
业主非常爱干净,除了对收纳有强烈的需求、喜欢极简设计外,更希望家足够整洁:
1.生活偏西式,对西厨有较高要求;
2.空间既能满足家庭社交,又能拥有彼此的私密空间,互不干扰;
3.家能有阳光,每个空间是温暖而通透的;
透视结构

看完整个别墅的透视结构,终于明白了什么是“格子屋”,不规整、零碎的空间无法实现生活想要的质感,只能重新打开格局!
而且别墅每一层有个挑空区域????小窗户无法透进光线,着实令人堪忧~没错,小编也“怀疑人生”了!

诸多“病症”让屋主着实头疼,KD室内设计团队根据业主需求及房子的现状进行综合考量,巧妙重建并改造了挑空区域,完善整个别墅的建筑结构,重新规划设计和细分每层空间的动静分区,一层、负一和负二层则是家庭共享区域,二层老人小孩、三层夫妻居住强调私密性,从生活、居住、使用上合理分配,让三代人互不干扰却也能相互照顾,以现代自然风的极简设计,给屋主造了一个梦寐的自然、诗意、宜居的生活。
.01挑空层借光,负两层空间“透亮”新生

负二层改造前后对比图
负二层是业主一家较为常用长待的空间,从车库一回到这里,最先进入的是鞋帽间,设计师特地增加了一个开放式洗手休闲区,基本以日常使用为主,偏重生活化。
具体负二层的改造情况如下:

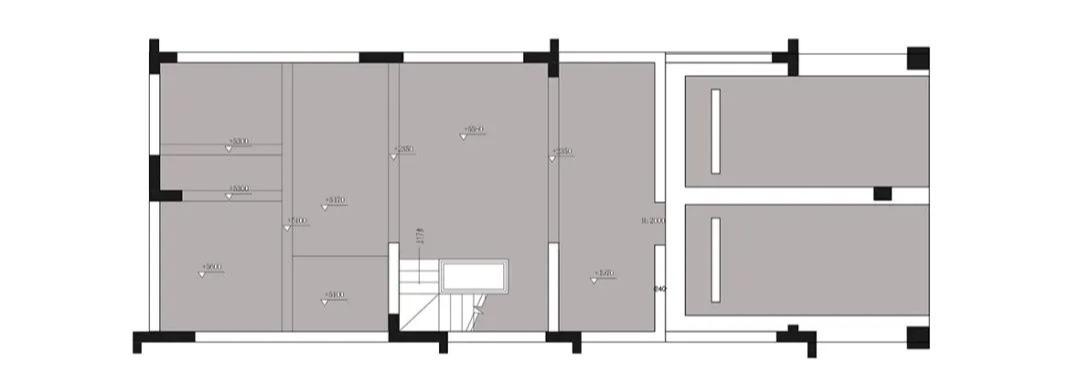
负二层原始结构

负二层平面布置
改造重点:
1.拆改墙体,并未改动大的结构调整,做开放式布局设计;
2.增加采光区域,除了原始的采光井之外,通过下沉式观景台的玻璃廊道为空间借光;
3.为了改善严重的潮湿问题,设计师通过加建地面架空层,解决潮气;

负二层挑空区域改造前后对比图
负一层和负二层看似两个楼层,但是,两层空间属于“一荣俱荣,一损俱损”,负一层的优劣直接决定了负二层的采光,一旦负一层设计有误,那么,就难以改善负二层的阴暗、潮湿、通风问题。

整个负二层就是一个敞开式的布局,设计师巧妙地增加功能性洗手台、储物区、休闲区......让家庭成员在负二层活动的时候,更得心应手。
为了解决潮湿问题,通过加建架空层来缓解潮气。

负二层下沉式观景区是一大特色,所以,另一个重点解决的难点:阴暗、采光差。
从负二层到负一层,四面玻璃窗,让整个廊道不再“暗无天日”,负一层的家政间位于负二层客厅上方,除了取光之外,再加上挑高的自然优势,会更为高挑大气,丝毫没有负层的感觉。

负二层会客厅前后对比图
负二层原有布局单纯靠电视墙外侧的天井采光,一个区域根本无法满足让整个负二层,采光极差,阴暗、潮湿,人无法健康的居住;改造后,会客厅的实墙被改造成了玻璃廊道,1.2米的光束角可以照到室内,负一层的玻璃廊道也将光线辐射至负二层,观景区会成为此区域的一大亮点。

负二层电视墙前后对比图
原木+大白墙的硬装手法和屋主喜欢的极简风设计契合度极高,整个白色的墙面基础上,以木饰面装饰用几何的方式来增加空间的变化,无形中也提亮了空间。
别墅的挑空结构让负二层空间的挑高被放大,搭配无主灯设计,让顶部大面积留白,视觉上拉升空间层高,让整体空间更为立体、高挑、空阔,自然木色的朴实也显得简单、高级。


负一层原始结构

负一层平面布置
改造重点 :
1.负一层挑空区域拆扩,给负二层引入光线,延续两层的挑空;
2.保留负一层的承重梁,露出梁结构强化空间的建筑关系;
3.改建玻璃廊道引入自然光线,直接通往负二层,解决采光、通风问题;

改造后:负一层和负二层局部
负一楼整个空间做了横向大挑空,将整个负一楼与负二楼的造型做到最大化形态,通风、采光贯穿整个负层,为了弱化横梁采用木饰面进行装饰,并与结构梁呼应,延续出建筑感、不突兀,同时,整个地下两层也会更为大气磅礴。

楼梯改造前后对比图
原始整栋楼的楼梯简直就像一个“黑洞”,走在楼梯都有些害怕~
改造后,整个楼梯更换成玻璃栏杆增强结构美感,同时,借负层空间的采光来改变原始结构的弊端,有光,置身其中才能感到心无旁骛。

原木梯步+透明玻璃组成的旋转楼梯,是空间中的一道艺术曲线装置,将整体空间串连,也如空间仿佛拥有生命一般,让生活有浪花、够活力。

负一层和一层在隔而隔的结构设计里,负层空间的玻璃廊道相互补给,改善了整个空间的采光,负一层客房、瑜伽室,与负二层的功能更为合理,即使是楼梯区也时常会因为客厅的阳光、景色而多些许自然的诗意。
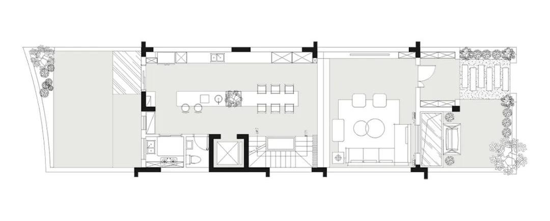
.02客餐厅开放设计,亮阔实用又透景

虽然整个一层的空间在布局上并无太大的缺陷,如果保留客厅的挑空,则有些浪费,并且二层会少一间房;加上餐厨空间的位置采光不足,后花园的景色也与生活有一定的距离,外景会造成闲置。

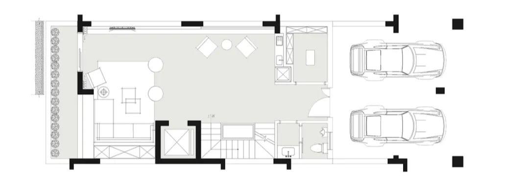
一层原始结构

一层平面布置
改造重点:
1.空间虽较规整,但采光是一大难点,将一楼设计为开放式区域,垫高餐厨区,划分客餐厅,隔而未断;
2.餐厅过于狭长,细分为餐厅、西厨、中厨等;
3.挑空区域现场浇筑,解决了层高过高的问题,二层多了一个儿童房;
改造前一层客厅
▼



对于挑空区域,采用现浇一层楼板的方式来强化空间的结构,二层变为儿童房,最大化利用层高的优势挖掘功能性,改造后客厅变成这样
改造后一层客厅
▼

客厅保留了原始窗户的拱形造型,实现功能优化、空间结构优化和采光等问题,设计师强调空间与自然的融合,原木格栅、原木地板,搭配简约而又不失设计感的功能性布艺沙发、风扇,营造出家的随性自在与轻松感。

客厅并非下沉式设计,台阶自然划分客厅、餐区,设计师为了增加楼梯区域的光线,墙面设计成7字形,既空间互通,又以绿植做装饰,空间的自然气息瞬间浓郁起来......

餐厅改造前后对比图
从客厅自然过渡到餐区,餐厅设在楼梯旁,拆除了原本的结构,更换为落地玻璃门窗,瞬间畅通、通透,空间开阔且不凌乱。

楼梯的曲线与空间的简约的设计成为一大特色,可以说,7字墙的结构设计具有透景的效果,简单却不失格调,拱形窗户的复古与光影交错,让生活多几分雅致。
改造后餐厨空间
▼

因为屋主一家日常以轻食、西餐为主,所以,中厨则选择为封闭式设计,且面积较小,重点空间让位给了西厨,餐厅与西厨串联开放式的布局,自然而然空间功能互交,成为家的社交中心。
7米长的餐厅,分为餐桌、岛台,高低差异化的设计既强调了所谓的“生活功能”,也营造了层次,收纳为主的设计以整体厨柜的平衡,满足主人另一个诉求:简单、干净。

通过吸顶轨道灯来进行空间照明,与极简的设计和玻璃廊道结合,这样的空间既可让一家人互动,又可保持应有的整洁。
白色吧台延伸出原木色餐桌,一体式设计与整墙的橱柜+嵌入式蒸、烤箱、冰箱等,能更好地满足用食、社交、学习,玩乐、品茗等需求,生活&互动,通通OK。
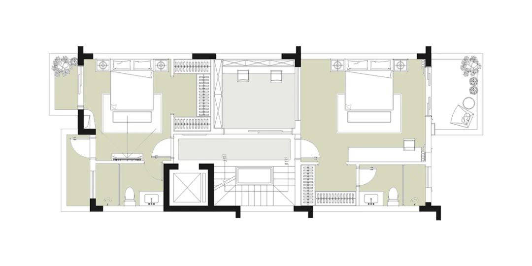
.03二楼改造后,多了一间空中儿童房

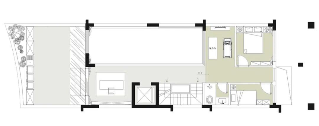
原始结构

平面布置
改造重点:
1.巧改挑空区域,现浇施工后重新建构二楼,儿童房对应一楼的客厅;
2.重新划分区域,并合理利用露台面积;

一层的客厅,也就是原本的挑空区域,现浇一层后,多出了现在的儿童房,和老人房处在同一层,方便日常照顾,加上,玻璃廊道空间采光充足,简直像换了一扇窗,超级通透。


儿童房改造前后对比图
儿童房面积不大,也巧妙地利用露台面积,整个空间大了不少,落地窗令整个屋子充满阳光,直接能照到衣帽间,可谓“通透大气”;大面积留白,木饰面与木地板带来温暖的气息,深蓝色作为点缀,让空间呈现出安静而时尚的氛围。

老人房较为方正,除了睡眠区之外,合理细化功能增加步入式衣帽区、客卫等,满足日常生活,老人起夜也会更为方便,设计上也以实用和舒适为主,延续木调的自然与温馨。
.04三楼去除挑空区,典型的“套房”真治愈

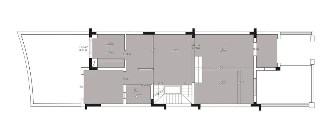
三层原始结构

三层平面布置
改造重点:
1.挑空区域给最大化利用,整层空间更为功能化;
2.重改挑空区域,增加部分功能性,保证上下层采光最优;
3.重新划分入户玄关、主人房、衣帽间、书房、浴室等独立空间。

主卧改造前后对比图
三楼卧室与廊道打通,改造成落地窗,解决空间采光不足的问题,力求整个卧室保持宽敞、通透,同时,放大了主卧的空间感;三楼将整个主人房做成功能复合型空间,睡眠区、休闲区结合,更为私密。

三楼主卧电视墙改造前后对比图

按照屋主的喜好,为了更加方便男女主人的生活,主卧的电视墙也做成了简约的一体式收纳式设计,既可收纳更多日常杂物,空间也不杂乱。

柔软的小沙发放置在靠近落地窗的地方,能让业主独享美好时光。

主卧是一个独立的空间,延续整体调性,更是细分为睡眠和休闲区、衣帽间、书房和浴室,算是一个典型的“套房”,诠释简约、静谧、舒适的生活情趣,躺在柔软舒适的床上,一天的疲惫都会被治愈。

从主卧出来后,便是衣帽和书房区......你可能都想不到,完全大变样,“套房”也是很能干!

三楼书房改造前后对比图
对三楼的挑空区域做了更换,原本的挑空区域与主卧联通,做成一个衣帽间,新的挑空区域较为狭长,能保证二楼的采光,可以说更优化了空间结构与功能。

三楼衣帽间改造前后对比图
衣帽间整体顶式衣柜靠墙设计,既保证了宽敞的通道,又实现了具体的储物功能;衣帽间尽头,是一个开放式书房,大面积的定制书柜,与衣柜以白色为主,简约、实用,为主人提供了轻松舒适而明亮的工作与阅读空间,同时,让空间的关系与生活的体验更加密不可分。

主卫布置浴缸、双台洗手盆,大面积白色调给空间带来质感,少许木色作为点缀,整个卫浴空间显得更加高级时尚而大方。
500㎡别墅经过大刀阔斧的改造后,不仅改善了全屋采光、通风、潮湿等问题,可以说,三代同堂生活互相陪伴,互不打扰,真的是彼此都幸福;怎么样,系不系涨芝士?你学到了吗?不妨@小编,说出你对这套别墅改造的想法?
项目名称:融创·凡尔赛
项目地址:重庆渝北区
面积:500㎡
设计:KD室内第二设计中心
软装设计:恺悦陈设
完工时间:2022
关于本案设计师

KD室内设计事务所设计总监:樊华
KD室内设计事务所一直专注于室内环境原创设计,力求打造硬装、软装与施工完美融于一体的设计,设计师樊华多次荣获国内外专业室内设计奖项:2022年意大利A’Design Award设计奖酒店空间铜奖、2021年MUSE设计奖酒店空间类铂金奖、2021年美国MUSE设计奖办公空间类铂金奖、2021年美国IDA国际设计奖、2021年筑巢奖住宅优胜奖、2021年M+高端室内设计大赛全国20强......KD室内设计事务所一直坚持以原创设计敬美好生活,珍视每一份信任,打造专属私人定制,精心构筑舒适环境,用心营造别样生活。