实用木工技术
做家俬最需要的是大胆而不是技术,技术可以边做边学,但你无胆开始便永远做不成,做得不好或做错了,唔使死的,拆了重做便可,或者将要求降低点,不要太执着追求完美,自已欣赏便得,今次唔好,下次再做,从错误中学习,一定会成功的。 现今科技进步,可购买电动工具帮手,施工变得容易,只要从本网学习基本技术,按步就班,先做一个小家具,成功了再做大型的,一理通、百理明,大小都系咁做的,够胆就得。
1.常用工具
基本工具:以下工具必须购买。
首先买个工具箱。

電動工具:首4項必須購買
补充工具: 以下工具最好购买
2. 螺丝钉、铁钉、胶塞
螺丝钉:
全部买钢牙平头十字螺丝,不要买一字的,多数会用电批上螺丝,也不要买木螺丝,因为钢牙用途广泛,有钢牙便可,款式太多难收藏,主要买幼身的,买少少粗身的便可,购买以下尺寸: 六分、1吋、吋二、吋半、二吋,1吋及吋二会常用,买多些。

铁钉:
最好买家俬钉(钉头较细),否则平常铁钉已可,购买以下尺寸: 1吋、吋半、二吋、二吋半。

石屎钉:
粗幼都买少许,购买以下尺寸: 1吋、吋二、吋半、二吋。
胶塞:
购买以下尺寸: 1吋、吋二、吋半、二吋。

3.板材
做家俬的材枓是木板,现在一般都是用夹板的,没有(少有)人用实木。
1.夹板
夹板是用原木材以旋切法切成薄木片,再以黏合剂压制而成,有多种不同的尺寸,木片使用各种不同种类的木头切割而成,为了使载重力更大,会依木头纹理的方向不同,交替堆叠再上胶。
优点: 不易扭曲及收缩,大量应用于家俬装修等,它的售价较实木板平得多。
2.木心板 <br>木心板顾名思义就是以木头为实心的板材,木心板总共有三层,中间一层厚些,上下两层为薄木片。 木心板中间是以实木条拼贴而成,需作上胶加工才能使之牢固,黏着剂里面多半会添加甲醛等化学物质防止内部腐坏,而木心板两边的木片就是夹板,一片约厚2mm不等。 木心板分大芯和细芯,只有五分和六分两种厚度。 细芯夹板是由多层横直交错的薄板黏合而成,大芯板底面有两层薄木板,中间夹着一层厚度一样但尺寸不一的长方形木条。 大芯板只限于直纹使用,横纹时承受力会变得脆弱。
优点: 木心板具有耐重、耐压的特点,但比夹板略差,可以承受的重量亦大于同厚度的高压纤维板(俗称蔗渣板)。
3.高压纤维板 <br>这是较新的装修材料,将废料用机器打碎(木槺),加入黏合剂压制而成,特性是十分平滑,可制成比夹板更大件的面积,但较夹板重得多,它的缺点是不能受潮,稍有水气,便会发涨且不能承受重压,但售价平,故仍有一定的市场,一般只有家俬厂采用,装修师傅是不会使用的。
4.实木板 <br>实木属最佳的家俬装修材料,但随着人类大量砍伐,森林的面积愈来愈少,优质的木材也愈来愈少,售价飞涨,非一般人可以接受,地位渐渐被夹板所取代,一般木行买不到,装修师傅不会采用。
板材规格以厚薄和面积区分:
厚薄规格
1
木工铅笔
2
10吋大利锯
3
10吋活动角尺
4
木工锤
5
平口铁钳
6
大力钳
7
台钳
8
酸枝刨(也可不买)
9
拉尺(6分16呎)
10
钉冲
11
1吋薄口凿
12
士巴拿
13
8吋胡桃钳
14
较剪
15
G 钳一对
16
十字批
17
一字批
18
鎅刀
19
油灰刀
20
弓形铁锯
21
板锉
1
電鑽連小鑽床
2
積saw(線鋸)
3
鑼機(可代替刨)
4
電批
5
7吋風車鋸
6
砂紙機
1
防护镜
2
手套
3
口罩
4
门铰开孔钻咀
5
柜锁开孔钻咀
6
埋头钻咀
7
胶锤
8
三角挫
9
圆底锉
10
拎梳(ring saw)
11
三角尺
12
钢尺
| 1分夹板 | 2分夹板 | 3分夹板 | 4分夹板 | 5分夹板 | 6分夹板/大心板 |
| 3mm | 6mm | 9mm | 12mm | 15mm | 18mm |
面积规格
| 6呎长 | 8呎长 | |
| 3呎阔 | 3呎x 6呎 | 3呎x 8呎 |
| 4呎阔 | 4呎x 6呎 | 4呎x 8呎 |
4.装饰面材
夹板家俬做好后,表面是要加以装饰的,常用方法有四,低级的做法是贴防火胶板,较高级的做法是扇灰油手扫漆(这是较旧的做法,现在好少人做),最高级的做法是贴木饰面夹板或贴木皮,之后油清漆或索色后油清漆。 本页只谈防火胶板,油漆请往顶页按超连结往油漆专页。
1.贴防火胶板 <br>防火胶板的面积是4呎x 8呎,刚好是一件大夹板的面积,价钱有平有贵,相差很大,视乎颜色、花纹、厚薄、出产地和牌子而定,平则约一百,贵者三数百。 可以在店铺先取一块或多块免费样本回家比较后才定购,因未必有现货。 施工时要涂万能胶在木板及胶板上,待两边万能胶不黏手时才贴上。 木板的板边是需要装饰的,封边方法有三种:
-
用现成买的封边胶带,有几种颜色选择,最常用的是白色,用万能胶黏贴。 最低级。
-
切割原来的防火胶板作封边材料,把胶板放上锯床,切割成比板边略阔的长条,用万能胶黏贴。 较高级,但必须有锯床。
-
用木条封边,在木行买合适阔度的木线,有不同材质、方形及半圆形的(卜竹),最高级。

封边胶带
2.贴木皮 <br>木皮是一层很薄的木片,质地有柚木、榉木、红樟等,因面积很小,贴大件的家俬要多块并贴,封边仍是用同样木皮,木皮是一卷卷卖的,尺寸没有一定标准,大约是六、七寸阔,八、九尺长,裁剪木皮可用铰剪或鎅刀,黏贴用白胶浆。 做得好,夹口看不岀,看似实木,所以最高级,但工序复杂,一般木工不肯做,多数会贴木饰面夹板。
3.贴木饰面夹板
木饰面夹板(木皮夹板)板身厚约4mm(分半或2分),表面贴有0.35mm厚度的上等实木纹皮,但未上面油,备有多种木纹选择,如元木、榉木、雀眼木等,贴好后油清漆或索色(即在木纹板上着色,效果比喷色好),现今高档家具造法。 板边封木皮或木线。
5. 家俬制作程序
买齐以上工具,便可以开始做家俬。
-
绘图
-
买料
-
开料
-
制作家具主体 (柜壳)
-
制作脚座
-
柜壳贴装饰面材
-
封边
-
镶嵌脚座
-
制作柜桶
-
柜桶面板及柜门贴胶板及封边
-
柜桶安装面板
-
装柜门
-
油漆(若是贴木饰面夹板)
-
装拉手
-
完工
6. 绘图
-
先在脑中构思好要造一件什么形状和尺寸的家俬,然后将它用纸笔画下来,这是设计的工作。
-
决定用英制还是公制尺寸来设计,从前多是用英制(吋、分),现在多用公制(mm)。
-
现在示范制作一个深15吋6分(400mm)、阔15吋(380mm)、高23吋5分(600mm)的床头柜,此柜有一柜桶及一掩门,外贴木纹胶板。

制作一个如相中所示床头柜,但略有修改,只有一个柜桶(上面的),下面两个改作掩门
1. 外观图
绘画外观图,这是初步规划,只需设计外部尺寸,暂时不须理会木板厚度。
最好采用下图的绘画方式,这是一个三视图,能显示正视、侧视和顶视,可完全显示整个家具的仔细结构,绘图时应合乎比例,建议选择以1:10的比例绘图,因为一个7呎10吋(240cm)高的衣柜也可在A4纸上绘画出来。

2. 侧面透视图
详尽设计,须计算木板厚度。
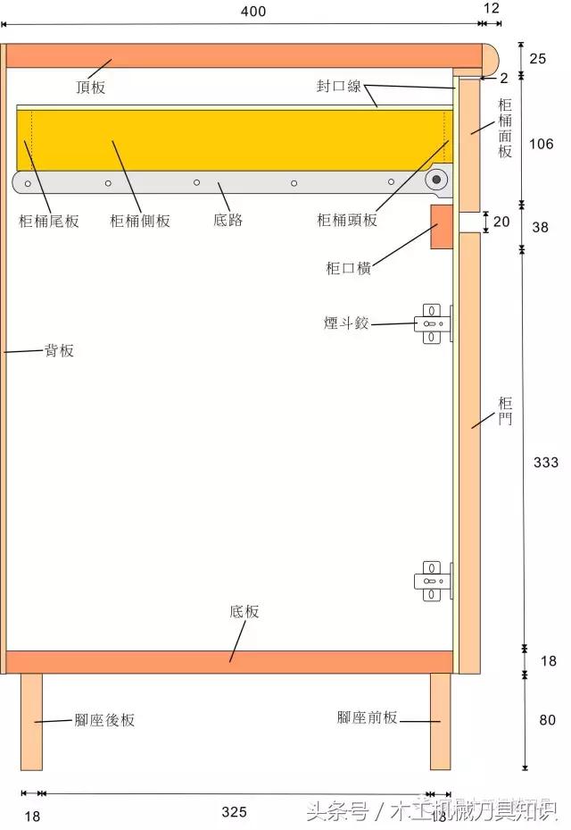
认识家俬的各部分名称: 柜壳、脚座、柜门口、柜口横、柜桶头、顶板、底板、侧板、背板。

7. 买料
在购买材料前,先计算所需木材,详尽列表,如下图,加起各部分总共需要的木材便知需要买多少。 这过程专业师傅不会做,因为一单工程会做很多件家俬,需要很多木板,购买大约数量便可,到时各家俬的木材可互补,即是可用碎料,不需太准确,业余者便不同了,只做一、两件家俬,必须清楚计算,以免浪费,或到时不足重麻烦。

8. 开料
开料好重要,好的开始等于成功的一半,开料尺寸要非常准确,而且要非常方正,工序不能马虎,否则钉装好必定不佳,若要准确,最好采用公制尺寸,长度采用mm ,英式的分太阔,不够准。 开料最好用风车锯,但风车锯要装上锯床才好用及安全,否则极危险,这时便要制造锯床了,制造锯床不难,问题是用完后无处安放,丢掉好浪费,日后重造又好烦,若不想造锯床,也可用积梳(线锯的),但当然不及锯床好用。 若只是做些小家具,不想买电动工具,可以买把大利锯,这锯非常锋利,最适宜锯木板,好过普通板锯好多,使用方法: 锯木时是拉不是推,木板锯到尾将断时,找些物件支持悬空的一端,否则会因重力跌下拗断未锯的部分,断口不整齐、崩缺及有木刺。 大利锯是损耗性工具,锯得多会钝,所以木工不喜欢借给人。
按此:看锯床之制造方法
9. 制作家具主体
-
先做柜壳,后造脚座。
-
木板栽好后,用大角尺检查是否直角,侧板配对,顶、底板配对、检查是否同样大小,背板找一最佳直角,在直角下记号,用砂磨走板边木刺,不要磨圆角边。
-
钉装时顶板及底板包(盖着)侧板,背板包顶、底及侧板。 (一般是长包短)
-
钉装时木板会移动,可预制一对定位角用来固定木板,见下图。 每次钉完,都要检查是否方正。

-
若嫌自制麻烦,可买一个画框夹。

-
有时柜身不大,钉好后难于伸手入内钉柜桶底路,可先安装底路,后装嵌柜壳。
-
先计算柜口横位置,落墨定位,柜桶头上缘与柜顶板相隔2mm ,若用底挖(不用拉手)打开柜桶,柜桶间相隔20mm。
两块侧板叠在一起竖起在侧边落墨,画出柜口横上界线(距顶板106mm),用柜口横实物贴着上界线定位画出下界线,分开侧板对,平放,利用大角尺,按标记在侧板面画出柜口横下界线,再在下界线向上回度出18mm画底路螺丝线。
-
依底路螺丝线,收螺丝装底路。
锣机连导引器(加装了木条)
沙纸饼
-
钉装前在接口涂白胶浆。
-
连接木板,可用铁钉或螺丝钉,铁钉施工快捷容易,只要用铁锤将钉打进木板便可,但若手艺不佳,会将钉打弯或打歪至穿出木板,这时拔出修补便很困难(用胡桃钳),而且用铁钉柜壳不及用螺丝实净,若用螺丝,要先用电钻钻细孔作导引,才上螺丝(否则徒手上不够力),而且要用埋头钻咀将表面钻口扩大,令螺丝头藏进板内(现在有一种叫菊花头自攻螺丝,不需用埋头钻咀,螺丝头底部带螺纹,可削走木材,将螺丝头埋进木板内),又要用电批上螺丝,工序繁复,好处是螺丝不会走歪穿出,且较坚固,初学者最好用螺丝,反正不赶时间,慢慢做,包无错。 若用铁钉,钉好柜壳后,要用钉冲将钉头打进板内。
-
利用定位角,依次钉装柜壳,钉好用大角尺检查木柜是否方正,若否,可在胶水未干前用力扭正。
-
接着钉背板,先钉背板的最佳直角(之前用角尺检定记下的)。 沿此角续钉其余的三角,边钉边挤压柜壳使其方正。
-
跟着钉柜口横。
-
柜壳钉好后,接口会有高低不平,此时可用酸枝刨刨平,但此技艺不易掌握,简单些用锣机(修边机)也可,锣机最好加装少少辅助工具,除了使用啤铃刀(bearing)外,可加装随机附送的导引器,在原装导引器上再加装木条,如此切除多出部分时,便不会因木板不平而削歪及行到尾时,因失依傍而切歪,加装工件请看附图。
-
刨平接口后,可再用沙纸饼进一步磨平,沙纸饼为一自制打磨工具,用碎料贴沙纸(粗沙及幼沙皆做一个)制成的消耗性工具,取8吋长、三吋阔的四分板,砂纸涂白胶浆,包围式贴在木板四面,剪走多出的砂纸,干后便可使用,砂纸不可覆盖全部木面,在一端留空一厘米左右,因有时我们会用砂纸饼作压刮工具,例如贴胶板时,用沙纸饼的一端压刮胶板,使其紧贴木板,所以此端不能有砂纸,会刮花胶板。
-
用沙纸饼打磨木边时,切忌过分打磨,只要磨几下便好,不能将木板的边角磨圆,因日后贴封边木线或胶板时,碰口位会有空隙的,很难看,打磨时沙纸饼要水平移动,不可倾侧,因会将板边磨圆。
-
在顶板贴胶板前,前端需要加厚,预备将来用卜竹(半圆形)木线封边,卜竹木线厚一吋,但顶板只有六分厚,需要加厚,方法是在前缘钉一条2吋阔二分板(两端开个凹避侧板),然后用锣机刨平,再用沙纸进一步磨平。
10. 制作脚座
依下图工序制作脚座:

连接板用碎料便可。
钉好后用沙纸饼磨平接口。
11. 柜壳贴装饰面材
本网的示范柜会贴防火胶板。 胶板要依床头柜的各个面的尺寸开料,开出的胶料比要贴的板面稍大,长阔各多1cm便可。 开料方法有三:
1.用尖利的薄口凿:
此法最简单及便宜,但亦最困难及费力,最老衬,先在胶板上画位,找块平直木板作间尺,用尖凿(也可用勾刀)沿画线用力刻画数下,直至感到画到入肉,把木板压实鎅口,把胶板用力向上屈曲,便可将胶板齐口拗断,此法只适用于小块胶板及薄胶板,厚料不适用,不推介。
2.用风车锯:
此法最好,方便快捷,效果好,买块*齿幼**靓锯片,替换了原厂的劣锯片,把胶板放上锯床,像木板般开料便可,强力推介。
3.用锣机:
若无锯床,用锣机开料也好过用薄口凿,但先做一把开料尺,详情按此: 锣机开料尺
贴胶板:
去五金铺买一块有齿的钢片,用来搽胶水(例如立时得万能胶),或者用胶板碎料切成小块,在某一边锯些小坑代替钢片。 将柜壳要贴胶板的一面朝天放,在其上放要贴的胶板,从胶水罐直接倒少许胶水落胶板的中央,用钢片沾少许胶水向外刮至离开胶板,像太阳光般呈辐射式向外刮,要刮得够薄,胶板有胶水便可,刮时要一次过,不能翻刮,最后若胶水有多,将它全部刮落木板(柜面),拿开胶板,放埋一边待干,再倒胶水落木板,像前述方法搽胶水,搽完饮杯茶等干,一般约等十分钟,手摸不黏便可,贴胶板要一次过,放下便黏紧,不能移位,技巧是在木板面四角各放一口大螺丝,将胶板的一边徐徐放下,因有螺丝阻隔,不会即时黏牢,慢慢对准位才将整块胶板全部放下,位置正确,拿走一边的螺丝,把胶板压向木板,再拿走另一边的螺丝,把胶板全块压落木板,用此方法,万无一失。 贴好后拿砂纸饼没砂纸的一端在胶板面上来回用力刮压,令胶水黏实,也可拿橡胶锤垫块木板在胶板面上轻锤压紧。
切除多出的胶板:
此时必须用锣机,镶上啤铃刀,最好再加导引器,切走突出的胶板。 每隔一段时间,清除啤铃刀上的胶水,免致胶水黏实碑铃,烧坏把刀,方法是喷些WD40润滑剂。 切好后用布沾松节水抺走胶板上的胶水渍,跟着拿沙纸饼在胶板边缘轻轻打磨,边磨边用手摸,看看是否齐平,注意打磨时沙纸饼必须平放,不能将胶板边磨圆,因为还要贴封口木线的,磨圆碰口位就会有隙,很难看的,好多时不磨好过磨。也有师傅用光刨刨平边缘才用沙纸饼的,但技巧要求极高,初学者切莫尝试,会刨爆胶板边的,用沙纸饼就好了。
用同样方法替脚座贴上胶板。
12. 封边
贴上胶板后,柜壳立即靓了,但是板边仍是不美观的,要进行封边,像前述,方法有三: 封边胶带、切割原装胶板、木线。 现采用木线。除顶板采用半圆形(卜竹)木线外,其他板边一律采用一般扁方木线。
柜顶显示卜竹木线 |
绉纹胶纸 |
钉顶板卜竹封口线:
切割卜竹木线至合适长度,必须精准,因为很难刨走多出部分,短了重衰,无得救,不美观,钉装前先涂白胶浆,若用细钉,会有一大个钉头留在木线面,用钉冲打入木板,仍有一个大洞,虽可补灰遮盖,仍不美观,可不用钉,用绉纹胶纸(俗称喷油纸)固定木线便可,要多贴几张,胶水干后(一日后)撕走便可,不留钉痕,最美观,缺点是颇费时及不可继续施工,专业装修佬有风机,会用钉枪打极细的风钉(蚊钉)的,效果很好,几乎睇唔到钉头,但业余者没风机,若不用喷油纸,必须用钉,方法是采用1吋钉,放平木线,在其上下钉至接近穿底,然后用胡桃钳剪走钉头,涂白胶浆,摆好位后打钉,将钉打尽便不会有钉头外露,最好不要立即刨边(无论是木刨或锣机),待一天胶水干后才刨,刨后用沙纸饼小心打磨木线与胶板接位(无信心唔做重好),至于钉位,用沙纸饼将铁钉处磨滑便可。 究竟要落多少口钉? 以本范柜为例,三口就够,钉太多会不美观,师傅话:「钉多就密,胶多就实」。 钉线小技巧:木线若不紧贴胶板,留有间隙,可边力压,边用喷油纸贴牢固定,待胶水干后撕掉胶纸。
钉侧板及底板封口线:
用同样方法续贴其余扁方木线,采用二分厚六分阔少少(20mm)榉木(或白木)线,木行有售的,专业木工会在木线直角交接处,将木线切成45度角才并接,这样较美观,业余者大可不必,直接直角并接便可,外观上差不了多少,而且会有柜桶或柜门掩盖的,很难睇到。 钉木线时要摸齐内栊,让外面突出少少,因为内栊的多出部分好难落刨,只可用沙纸饼磨平。 做好四边木线后,就钉柜口横木线,采用吋半阔榉木线便可,同样是要切准些,刚好紧贴外框的木线。 胶水干后用锣机或酸枝刨刨走多出的木线,此时要极小心,稍一不慎,会刨坏胶板的,锣完后,可用沙纸饼进一步打磨接口,边磨边摸,及将木线的边角稍稍磨圆至不鎅手,至此,柜壳完成。

13. 镶嵌脚座
这工序很简单,反转柜壳,在脚座的连接板涂胶水,放在柜底,对好位,在连接板收螺丝便可。

14. 制作柜桶
制造柜桶请按以下原则:
-
柜桶的阔度应较柜桶口小25mm(1吋),预位给底路。
-
先钉好柜桶壳(两边侧板连接头板及尾板,用底板的直角较正柜桶壳的方正),钉好装底路,放入柜壳内试位,无问题才钉柜桶面板。
可在钉好柜桶壳后才在上面加装封口线,另一更佳做法是切割预定高度的长条形木板作侧板及头、尾板,即是所有板同高,在长板上钉封口线,做好后才放上锯床开至合适的长度,如此便可简化钉木线的工序。
-
一个木柜可有多层柜桶,柜桶间可有或可无柜口横,无就一个紧贴一个,这样更省位,柜桶可做深些。 现以无柜口横为例,先计算每个柜桶的高度,计算方法请看下图,钉好后在柜壳的侧板画位,安装底路(底路也可在钉柜壳前预先安装),在柜壳的侧板边画柜桶底墨线,从而向上回度18mm,画底路的螺丝线,每个柜桶壳间应相距18mm,最后才安装柜桶的面板,面板间的底顶相距2mm。 开料时柜桶面板较柜桶头板高18mm,最底的一块面板可稍大(例如高多6mm)以覆盖一半底板,不加大也可的。

注意:上图有三个柜桶,没有柜门,与前述的范柜稍有不同。
安装底路:
路轨前端和柜壁边缘之间要留少许空位,约2mm,这可令柜桶紧贴柜身。

测试柜桶:将所有柜桶装入柜内,试下运行,看看是否畅顺。 若有问题可用以下方法修正:
-
非常紧迫:
这是柜桶过大,压迫路轨,令柜桶很难拉动,此时可拆除柜桶底路,用锣机的R刀(看下图)锣走柜桶部分木材,重装底路便可。
-
出现脱轨:
这是柜桶过小,可以松开底路螺丝,令底路松动,但不需拆下底路,在柜桶与路轨边摄些胶板碎片,撑阔底路,再重新收紧螺丝便可,若还不成,可改在柜壳上的底路着手,松开侧板上的底路螺丝,同样是摄些胶板,撑开底路,再收紧螺丝,反覆调较,直至畅顺。
-
柜桶面左右倾侧:
这是柜桶壳不够方正,即是呈平行四边形或梯形,可尝试用力扭正,或者在某一边的路轨边(前或后)摄胶板修正,又或用锣机在某边锣走少许木材。
-
柜桶面上下倾侧:
这可能是柜身的某条底路不是水平所致,可松开螺丝,调拨底路的高度,在底路空置的螺丝孔上收螺丝,再收紧原来的螺丝。
|
|
|
|
15. 柜桶面板及柜门贴胶板及封边
现在流行柜门及柜桶面板盖着柜壳侧板的,名为外门,所以柜门及柜桶面板要阔过柜门口,若每边冚板边的一半,两边合共冚一块六分板的厚度,即是六分,所以柜桶面板及柜门要比柜门口阔六分(18mm)。 若柜桶间不设柜口横,每件柜桶面板要较柜桶壳高18mm,最底的一件还要高多6mm。 本网教造的范柜是有柜口横及一只掩门的,按前面7. 购材所述尺寸开料便可。 覆检柜桶面板及柜门板材无误后便开始贴胶板,然后钉木线,刨平后稍事打磨,但不要磨圆板边。 为增美感,木线会加工令其边缘更圆滑,采用锣机的R刀,将木线的外边刨圆,施工时锣刀的温度颇高,高温可能烧焦木线,令木线变黑,可用沙纸饼将黑渍磨走。
|
|
|
16. 柜桶安装面板
将所有柜桶装入柜壳内,从顶开始逐块做,用手托着最上的一块柜桶面板,把它摆放在柜壳上度位,注意板边覆盖的侧板范围应左右一致,用铅笔沿面板两边(左及右),在侧板画下记号,同时亦在面板底边画下记号,看附图。 画完线移走面板,量度距离,利用所得数值在面板上画定位线,在面板涂胶水,将柜桶壳的头板对准墨线,然后覆盖在面板上,落两口细钉,临时定位,装回柜壳内看效果,若良好取出将钉打尽再加两口螺丝永久固定。 因为柜桶面板的安装是个别化的,柜桶放入柜壳的位置不能调乱,最好反转柜桶,在桶底写上如上中下等记号。

17. 装柜门
装门要用门铰,房门用合页门铰,但柜门差不多全用烟斗铰,烟斗铰分平口及冚口两种,平口即内门铰,已好少人用(因柜门尺寸要精准),冚口分冚2分、4分、6分三种。 烟斗铰又分有掣及无掣两类,有掣的具回弹力,柜门关至某角度,会自动压向柜身关紧,门铰能张开的角度分90度至180度。 装铰程序: 利用角尺在柜门画垂直线定圆底洞圆心的位置,然后把柜门贴向木柜侧板,按柜门线位在侧板画上记号,再利用角尺画一与柜边呈直角的铰座线,距柜边38mm处画一纵线与铰座线成十字,把铰座放在十字上,螺丝孔正正位于十字线的纵线上,把铅笔伸入螺丝孔画记号,按记号上螺丝装铰座。 圆心距门边22mm,利用门铰开孔钻咀,在柜门开个圆底大洞,放入门铰的烟斗,收螺丝。 把烟斗铰装上底座,宜买十字形底座,因较坚固。 柜门的上下调较靠底座的上下移动,柜门的紧贴靠铰身在底座的移出移入,尾端的螺丝负责锁死铰身,前面近中间有口大螺丝,此螺丝的旋出旋入能将门向左或右微调。
110度门铰 |
180度门铰 |
小柜门装两只铰已可,衣柜门装三只鈫,厚重的大柜门装四只铰,四只铰的位置不是平均分配的,一般从最高数下来,第二只会装高些,靠近顶部,因为顶部最受力。

18. 安装拉手
柜桶及柜门可选择装拉手或不装拉手,不装可做底挖,底挖是用锣机的圆底刀在柜桶面板的底部挖一长形圆底槽,开柜桶时把手指伸入底挖向上拉,便可有着力位开柜桶。 拉手又叫花抽,主要分三大类: 环形、圆珠及贝壳形,见附图。 本范柜安装环形拉手。
环形 |
圆珠 |
贝壳 |
安装方法:
在柜门口度出中间位,画一垂直线穿过各柜桶面板,取出柜桶,量度出面板的中间高度,按此高度在各柜桶面板画一横线成十字线,若用圆珠拉手,只得一口螺丝,在十字中间钻孔便可,若像本范柜用环形拉手,有两口螺丝,先量度拉手两孔距离,将距离除2,找出半径,再在各柜桶面板的十字位向左/右量出此数值并画下标记,全部柜桶都在此标记上钻孔,现在有了一孔,尚欠一孔,暂不需理会,先用一口螺丝把拉手装上,然后将拉手没螺丝的一端拨离定位线少许至见到定位线,取一口尖钉,在拉手螺丝孔侧,用锤敲打出一小洞,全部柜桶都如此处理后才一次过钻洞,如此做,螺丝孔的位置必定精准,不会入不到螺丝。
大功告成!
图文:香港自学装修网 原创

柜桶俯视
柜桶显示底路
底路边显示摄胶板(滑轮位置)
中间为R刀
柜桶面板显示经R刀刨圆的木线边缘



