简洁和实用是现代简约风格的基本特点。加上传统的中式风格让人感觉舒适和恬静,适度的装饰是家居不缺乏时代气息,使人在在空间得到精神和身体的放松,并紧跟着时尚的步伐,也满足的现代人‘混搭’的乐趣。
联发君悦湖130平现代简约风
设计单位:丛一楼装饰
城市:南昌
設計师: 江亚義
项目名称:联发君悦湖
风格:新中式
室内面积:130平米
主材:绒布硬包,雅士白大理石,艺术画,主色系为黑白灰色。

客厅

餐厅

卧室

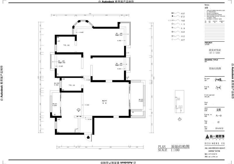
原始结构图

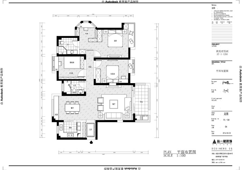
平面布置图
回归匠心,丛一开始
南昌丛一楼装饰:
覆盖区域:红谷滩区、高新开发区、青山湖区、西湖区、南昌县、东湖区、经开区、青云 谱区、昌北开发区、湾里区、新建县、桑海开发区、英雄开发区、进贤县、安义县、象湖 新城、朝阳新城、九龙湖新城
装修范围:家庭住宅、别墅、写字楼、商铺等
热点施工楼盘:
丰和新城、铜锣湾、汇和家园、莱蒙都会、世茂天城、绿地外滩公馆、中大青山湖东园、力高滨湖国 际、开元国际、十里江山、城泰江来、正荣御峰、紫金城、水天一色、路通沁园、翠叠苑 、绿地悦城、九龙湖花园、中央香榭、当代国际、中骏蓝湾香郡、联发君悦湖、绿地玫瑰 城、艾溪康桥、银亿上尚城、南天金源、国贸阳光等。
-------我是华丽丽的分隔线--------
如果你正打算装修,咨询装修问题和报价,预约设计师关注微信号:13870823590(长按复制),觉得在手机上看图不舒服?联系我给你全套大图。