台湖·金茂悦
壹
楼盘基本信息
楼盘名称:台湖金茂悦
开 发 商:中国金茂
楼盘位置:北京市通州区台湖镇17号线亦庄站前区南站南侧
物业类别:70年住宅(限竞房)
建筑类别:板楼、高层
户型朝向:南北
户型面积:80㎡(两居)
89㎡(三居)
130㎡(四居)
销售价格:均价50000--51000
得 房 率:80%左右
容 积 率:2.5
绿 化 率:35%
车 位 比:1:1.1
车 位 数:约650个
物业公司:金茂物业
物 业 费:4.96元/㎡
楼栋总数:8栋住宅楼
规划户数:604户
楼层状况:16层--18层
电 梯:1梯2户 2梯2户
交房时间:预计2022年中旬交房
装修状况:精装科技交付

贰
楼盘周边配套
区域交通:
台湖金茂悦位于通州台湖镇,东南五环与东南六环之间。对于交通,有3高速+3地铁+1高轨,可以畅达CBD、副中心,瞬联双机场。3高速分别是京津高速、京哈高速、京沪高速,其距离京哈、京沪高速都是在8公里左右的一个距离,开车15--20分钟,离京津高速则比较近了,直线距离在2公里左右,但要上京津高速则需要驱车6公里大约10分钟左右到通马路与京沪高速的交汇处东石村桥才能上,上京津高速之后5分钟就可以到达五环,25分钟左右就可以到达国贸。而通马路也将改造成双向10车道的城市快速路,连接通州副中心、台湖、亦庄经济开发区。

3地铁则是亦庄线、17号线、21号线(S6),除了亦庄线是现有地铁外(亦庄线的次渠站和17号线有交汇,可以换乘,次渠站和亦庄火车站也是住总投资了500多亿打造的两站一街),21号线(连接两大机场的)还在规划中,17号线则在建设当中,预计2022年底全线开通。台湖金茂悦北边约500米处就是17号线的首站亦庄站前区南站,对于17号线,想必大家都比较熟悉了,是贯穿北京东部南北的一条大动脉,途经通州、朝阳、东城、昌平,是大站快线。基于17号线,而台湖金茂悦则7站便可到达CBD,这也是台湖金茂悦主要宣传的一大卖点。说完3高速、3地铁,剩下的就是1高轨了,1高轨就是楼盘北边3公里处的亦庄火车站的京津高铁了。亦庄火车站既是地铁亦庄线的终点站,同时也是可以换乘京津城际铁路的亦庄高铁站。详细说完3高速、3地铁、1高轨之后,看来所言畅达CBD、副中心,瞬连双机场不假。
商业配套:
楼盘周边目前很荒,是一大片空地,待开发,没有任何商业、学校、医疗配套。好在规划不错,楼盘北边500米处的17号线亦庄站前区南站将来会是地铁上盖商业,TOD综合体。除此之外台湖金茂悦的邻居万科城市之光东望也配建了一个3700㎡的社区商业,另外就是距离楼盘3公里的万科泰禾台湖商业区。
学校教育:
目前周边现有的学校有次渠中学、月河中学、麦庄小学、台湖镇中心小学、银河湾小学、次渠家园小学。在学校教育这块,万科城市之光东望宣传的一大卖点是名校景山学校旁,其距离景山学校大概800米左右的一个距离。景山学校预计于2020年2月建成。拟设108个教学班,学校总人数4410人,12年一贯制学校。小学部50个班、每班40人,初中部40个班、每班40人,高中部18个班、每班45人。作为名校,景山学校具有相当的影响力。邓总设计师曾为学校题词:“教育要面向现代化,面向世界,面向未来”。不过景山学校是目前是面向东城区转移安置房人口的招生,但由于其离楼盘较近,不排除未来划片也将台湖金茂悦纳入进去。除此之外楼盘旁边还规划了小学、中学。
医疗配套:
目前较近的医院是通州第三医院大概3公里,距离亦庄同仁医院约10公里,另外楼盘附近规划了一所三甲医院。
户型鉴赏(上下滑动 点击放大)
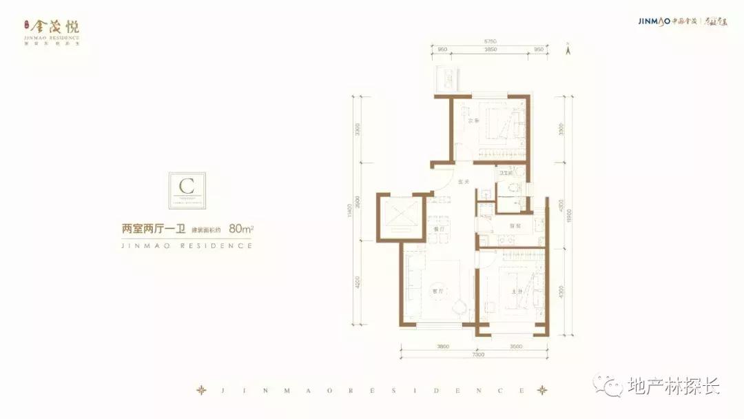
80平南北2居 全明格局
主卧带飘窗 有设备平台赠送

89平米3居 边户、中间户
市场主流做法 主卧客厅朝南
带飘窗 书房、次卧朝北


132平米四居 十分方正
南向三面宽达到11.05米

肆
精选图片(上下滑动 点击放大)





伍
探长点评
台湖金茂悦的前世今生:今年1月份,万科联手平安以66.6亿元斩下了通州限竞房体量最大的台湖地块,整个地块分成6个小地块,,包含5宗住宅用地,1宗基础教育用地。之后0094地块被万科卖给了金茂,该地块由金茂单独操盘,其余四块还是由万科操盘,这也就是当下的台湖金茂悦!金茂还退出了与禹洲联合拿的通州永顺地块,和中铁联合拿的亦庄地块,专心来操盘台湖金茂悦。
提到金茂,大家都会联想到标杆、品质!它以“科技、绿色打造产品”为理念,其府系、悦系等产品,确实给很多购房人留下了不错的印象。这次在产品上进行了全方位升级的台湖金茂悦也必然会引起购房者的关注。对于台湖金茂悦,金茂也下了很大功夫。据金茂北京营销中心总经理张程在发布上会的透露,金茂设计团队早在今年年初,就发起了一个“悦系”研讨的全*运民**动,而且这是一个在集团强大智囊团支持下的研发行动。这个针对悦系升级的团队中,涵盖了营销、设计、成本、招材、物业等多部门精英,做了大量详尽的工作,走访了16座城市,16个金茂悦社区,收集了约2000份调查问卷,并开展300多次深访,与业主、客户做了充分的沟通交流(等等,林探长怎么感觉这么熟悉,万科东望的发布会上好像也有这么一说的)。这次的“悦系升级”在金茂最擅长的绿色科技领域,在绿色、健康、低碳的基础上,开发了金茂悦系的十二大智慧舒居体系。通过对新风、温控、净水、节能、降噪、遮阳、灯光、同排、居家安全、社区安防、智慧园区、5G社区的全维实现,让生活更加“智慧”。同时,这也是金茂在北京落地的首批采用了“智能管家”的住宅项目。这么一说,确实让人比较期待这个项目。

最后,说到台湖金茂悦,不得不提到邻居万科东望,林探长觉得他俩位置相邻情况下,比拼的自然是产品力,在产品方面,林探长觉得万科东望和金茂悦都是大同小异,俩者主力户型都是89平米三居,均是市场主流的设计,客厅主卧朝南,次卧朝北。俩者也都保持了较好的产品创新力度和产品品质。不过,当你去到万科东望的时候,些许会有人告诉你:金茂悦挨着大型公交场站和垃圾回收站。。。。
更多精彩内容敬请关注微信公众“地产林探长”