设计得到(百万设计师的职业提升平台)

△题图来源www.pinterest.com
dop设计(ID:dopdesign)原创
作者丨泽顺
编辑丨豌豆
平面布置的第一步,是先通过隔墙来推敲和划分空间布局,随着现代技术的发展和设计手法的创新,处理隔墙的方式也有了很大的变化。
不同的空间类型,会用到不同的隔墙,而隔墙的材料,尺寸,高低,穿插关系,使得映像中的呆板隔墙更具灵动感。这些变化是如何实现的呢?
今天我们从材料属性和工艺构造的角度,来系统的剖析室内空间中的隔墙那些事儿~
主要分为下面3个部分:
1、室内空间中,常见的6大类隔墙,都有哪些设计要点?
2、酒店一般用哪种隔墙?
3、墙体基础构造图该怎么看?
1、混凝土墙
混凝土通常是建筑师青睐的材料和形式,混凝土具有自然感的元素,无需修饰的天然肌理,厚重而朴素,均匀平滑的质感,甚至是粗犷的木模凹凸痕迹,也被建筑师所喜爱。



△巴黎收藏博物馆 安藤忠雄 图片来源: dujour.com
光影在混凝土上斑驳微妙的变化,成为了安藤忠雄的独特设计美学。
2、砌块砖墙
砌块墙体隔音防水耐用性优于龙骨隔墙,通常用在湿作业区,厨房/管井/卫生间/分户墙等位置。
建筑工程中常用的砌块有以下几种:粘土砖、混凝土砌块、加气混凝土砌块、陶粒混凝土砌块、蒸压灰沙砖。
a、粘土砖(俗称红砖)

早期的砖墙通常指红砖墙即粘土墙,主要作为传统的农村自建房。因为红砖的生产过程并不环保,所以国家已经禁止烧制。后来蒸压灰砂砖主要替代了实心粘土砖,也就是小红砖。
①红砖墙(粘土墙)
优点:质地坚硬承重均衡,寿命长,价格实惠,夏天隔热,冬天保暖,还可隔绝湿气。
②蒸压灰砂砖墙
优点:耐久性好、强度高、环保。


b、混凝土砌块

常见的混凝土切块砖有两种,一种是实心的,一般用来作为承重墙填充。一种是空心的,容量相对较小,我们一般用来作为填充墙用。
目前市场上的混凝土砌块大致包含普通混凝土小型空心砌块、轻集料混凝土小型空心砌块、蒸压加气混凝土砌块、泡沫混凝土砌块。我们来列举几个了解一下。
① 加气混凝土砌块

加气混凝土砌块做墙体填充通常用在底部砌筑灰砂砖,起到防潮、耐久、调平等作用。
结构上需要根据情况浇筑结构柱和圈梁,马牙槎(mǎ yá chá)砌筑形式,一般墙体太长的时候,留马牙槎,方便后续施工。先砌墙,后在马牙槎里浇铸混凝土构造柱,以保持砌体的整体性与稳定性。

砌体墙在接近梁、板底时,要留一定的空隙,用蒸压灰砂砖斜砌塞顶,目的是使砌体墙与梁或顶板结合更紧密,避免开裂。

按照规范要求,应在下部墙体砌筑完成后7天后再斜砌塞顶,目的是为了让墙体充分沉降,再塞顶,后期不会因为沉降导致松动和开裂。

加气块墙长>5米时,墙顶与梁(板)宜有钢筋拉接,当顶部拉结施工有困难时,可在砌体填充墙中设置构造柱,间距≤5米;
当墙长大于层高2倍时,宜设构造柱;墙高超过4米时,半高或门洞上皮宜设置与柱连接且沿墙长贯通的混凝土现浇带,简而言之就是填充墙太高或者太长都应拉钢筋浇筑混凝土来稳固墙体。
② 陶粒混凝土砌块
陶粒混凝土砌块是以陶粒为粗骨料,以陶砂加细骨料,以水泥为胶凝材料,经搅拌,模具成型,自然养护而成。
优点:省工省料,粉刷不空鼓,不易产生裂缝。隔音、隔热性能优良,装饰方便,可直接在墙体打钉或膨胀螺丝,不下木砧等,牢固度高。

③ 蒸压灰沙砖
蒸压灰砂砖主要以石灰、砂为主原料制成。砖的规格尺寸与普通实心粘土砖完全一致,可以直接代替实心粘土砖。是国家大力发展、应用的新型墙体材料。
优点:抗冻性、耐蚀性、抗压强度等多项性能都优于实心粘土砖。
3、轻质隔板墙
轻质隔墙板是一种新型节能墙材料,它是一种外型像空心楼板一样的墙材。
a、普通镁质隔墙板
目前普通镁质隔墙板存在隔墙板按其构造分为实心、空心和复合3种。
空心隔墙板:用料省、成本低,主要用于工业和民用建筑的非承重内隔墙和活动房屋等;
实心的、复合的:则主要用于分户隔断和公用建筑的隔断。
不同类别轻质隔墙板的截面构造:


b、按隔墙板所用胶凝材料,则可分为石膏类与水泥类两大类,各类的品种均很多:
石膏类轻质隔墙板、水泥类轻质隔墙板、玻璃纤维增强水泥板、复合类轻质隔墙板、多层复合板。


石膏类:

水泥类:

综合来看轻质隔板墙有以下优缺点:
优点:轻质隔热、隔音、强度高、防火、快速施工、成本低等优点。
缺点:不防潮,墙面的吸水性很高。当空气环境中湿气很大时,墙体会吸收环境中的水汽,时间一长,隔墙会变得潮湿、有异味,甚至会出现墙体松动倒塌的现象。
c、施工工艺
①墙板与地面、顶面、柱及墙面的连接应用U型或L型卡件固定。
②在与地面、顶板、梁连接时,卡件应固定在条板的接缝处;墙的高度每米打一个卡件;卡件应用射钉枪固定。
③配制胶粘剂:胶粘剂要随配随用。配制的胶粘剂应在30min内用完。



4、轻钢龙骨隔墙
轻钢龙骨隔墙在酒店、办公等类型项目用到的比较多。它跟砌砖实墙比起来有哪些优势和不足呢?
轻钢龙骨隔墙
优点:施工便捷,难度较小,墙体比较轻,不用考虑整栋楼的承重。
缺点:隔音效果不好,但现在的做法一般都会在里面加入隔音棉或者其他隔音材料加以弥补。
砌砖实墙
优点:墙体比较牢固,防潮隔音效果好;
缺点:墙体比较载重量大,施工进度慢,砌砖实墙还需要考虑楼栋本身是否可以承受新建墙体重量。






这里需要注意的是:
隔墙龙骨需天地龙骨用膨胀螺栓顶天立地固定连接,C50/C75系列作竖龙骨立柱,横向用C50/C75系列轻钢龙骨用抽芯铆钉与竖龙骨连接或者横向贯通龙骨用卡件与竖龙骨连接;
龙骨与实体墙面或者地面连接的时候需柔性连结中间加胶垫或者岩棉等材料,为增加隔墙隔音效果在龙骨中间内填岩棉。
5、钢结构墙体
钢结构隔墙顾名思义墙体内部由钢结构作为骨架,通常作为有一定承重力的隔墙(例:墙面装饰材料为石材)或者用作湿区隔墙。钢结构顶天立地固定,焊接点做防锈处理。



6、玻璃砖隔墙
玻璃砖因其具有透光性,隔音隔热,抗压强度高,设计中常做墙体隔墙或屏风,其半透明的效果既能保障隐私又能引入光线使空间不至于太过黑暗压抑。

a、类型和规格
玻璃砖形式多样,有长条形和正方形、异形,尺寸可定制:


b、案例应用
玻璃砖在建筑和室内设计中被广泛的应用:





c、施工工艺
玻璃砖施工方法有传统砌筑法和钢筋穿法。▽ 传统砌筑法

① 准备材料,白水泥10KG,细沙10KG,建筑胶水0.3KG,水3KG,按照比配比拌成砂浆。
②将十字定位架剪成“T”型和“L”以适应各部位的需要。
③ 用砂浆砌玻璃砖,由下而上,一块一块,一层一层的叠加,每块之间再由定位架固定。
④ 砌筑完毕,扭掉定位架上的模块。
⑤ 刮去多余的砂浆,勾勒出砖与砖之间的缝隙。勾缝材料为:纯白水泥,水和建筑胶水。
⑥ 及时擦掉玻璃表面的砂浆和污垢,清洗干净。最后在缝隙里刷上防水材料即可。





▽ 钢筋穿法


2、酒店一般用哪种隔墙?
前面提到的砌筑墙体,轻钢龙骨隔墙和钢结构隔墙的优缺点,考虑楼体沉重,施工便捷性,酒店通常采用轻钢龙骨和钢结构隔墙,局部管井、厨房等位置会用到砌筑墙体。



3、墙体基础构造图该怎么看?
墙体基础构造分析:
案例一

如上图所示墙体横剖,这里的砌块墙体应该是靠近走道或管井一侧作为实体填充墙,转角交接位置浇筑了混凝土立柱结构加固。
马桶间和前厅中间的隔墙分别用了钢结构和轻钢龙骨,靠近马桶间一侧用钢结构作为墙体支撑,用防水板材封面,再做防水粘贴石材。
靠近前厅一侧墙面装饰材料是木饰面,可以用轻钢龙骨也可以用钢结构做支撑,通常C50/75系列轻钢龙骨就做够了,钢结构成本更高。
内填岩棉中间封一层石膏板优化墙体保温和隔音性能。因此墙体的厚度通常我们可以通过隔墙用的材料推算出来。
案例二

如上图所示墙体横剖,管井一侧用砌块墙体,与淋浴间墙体交接位置浇筑混凝土立柱结构加固。
两侧都是卫生间墙面装饰材料为石材,考虑石材的承重。所以内部结构都是用钢结构做支撑,防水板材封面,内填岩棉隔音保温,注意钢结构焊接位置需做防锈处理,卫生间隔墙需做地梁防水。
隔墙厚度可通过墙体用材推算,中间空隙尺寸53mm非固定尺寸,可根据需求调节。
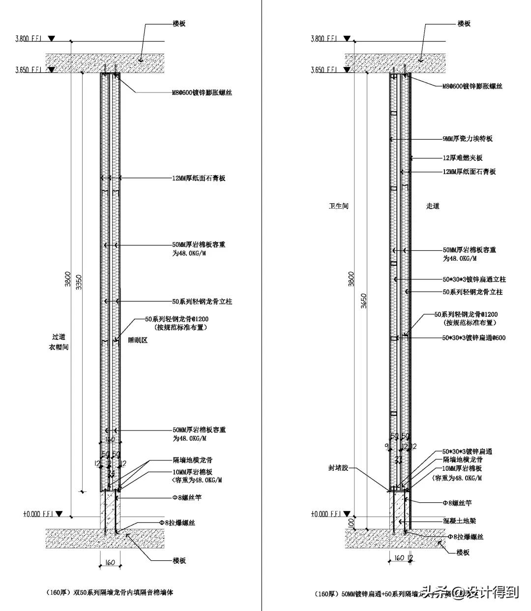
案例三

如上图所示隔墙竖剖,分别是双层轻钢龙骨隔墙,钢结构与轻钢龙骨混合隔墙。
墙体结构用轻钢龙骨还是钢结构,通常取决于墙面装饰,通常木饰面、墙纸、软硬包等材料,轻钢龙骨就可以支撑,如果是石材或其他自重较重的材料则需要用到钢结构。
隔墙结构都是需要顶贴立地固定,钢结构或轻钢龙骨与天地、墙体连接时中间加一层胶垫/岩棉软连接密实,考虑防锈、隔音、保温等处理,封板的时候根据需求用石膏板或是防水板材,卫生间或是分户墙做地梁。
更多干货知识,微信公众号搜索:dop设计