南湖,武清的天使之泪2.0版


前言
这篇文章最早写于 2018年12月29日。到现在已经将近5个月,过往的5个月,是南湖风头强劲的5个月。在我写完这篇文章以及姊妹篇《南湖以南:北辰规划与武清对比分析》之后,通武廊轻轨的消息绝尘而出,这再一次证明了小武哥分析问题的通彻以及视角的敏锐。南湖的房子也经历了,从2018年年底的8888元大倾销到现在的一房难求。通武廊轻轨消息一出,不到一个月的时间里,就有两块商业项目公示。建成投入使用,将会弥补南湖配套的短板;南湖板块在售项目都已经坐地起价。过往的几个月,南湖片区,都有哪些新变化?南湖片区的楼市又有哪些新资讯,今天的《南湖,武清的天使之泪2.0版》将为您揭示目前南湖片区最新的动态消息,此次更新不改变原有文章结构,在相应目录下更新最新信息,读过1.0版本的读者朋友,注意新添内容的变化。此次2.0版更新同时修正第一版的一些错误,以及更新一些新的认识。为什么写文章也有更新、打补丁?小武哥早年从事IT行业,打补丁是那个时候学会的技能之一。另外一个原因就是第一版的排版太难看啦!
正青春,少年狂,这里是小武哥主持的【京津大视野】。
梦里水乡
南湖板块位于武清城区的东南部,与北辰区接壤。

天和城
南湖板块其官方规划的名称是“天和城”。因为绿博园南湖太深入人心了,所以大家提起这个板块的时候就约定俗成的叫做“南湖”了。本文,我们也从众用“南湖”称呼这片热土。绿博园和南湖是这个板块的灵魂担当,如果说南湖是武清的天使之泪有点夸张,但是说南湖是这一片区的颜值担当则恰如其分。南湖风景区坐落在武清下朱庄街,占地3590亩,水面面积2640多亩,绿化面积900多亩,是国家4*级A**景区,也是武清区标志性景区。宜居,是我大南湖的“王炸”!好环境是南湖一大优势,街道绿化整齐,南湖适宜漫步。未来地位有望发展成津北的水上公园。南湖,一座为房地产而生的园林,来南湖游玩的人现在已经很多了,游玩之后顺便买所房子回家,YEAH!就这么办了!

下朱庄街道整体规划以铁路为界分三个片区:NO1 南湖片区(天和城), 津蓟铁路以东以旅游及其相关居住、 服务功能为主, 将打造旅游区、 高档社区及生态居住区;NO2中部片区(静湖片区), 津蓟铁路与京津公路之间;NO3 西部片区(龙湾城片区), 京津公路与北运河之间。天和城项目位于南湖片区。
板块规划
项目四至如下图所示,不在话下。南湖板块的特点是南北长、东西窄。周围的各种规划,楼盘、商业、学校等等都是环绕着南湖绿博园展开。所以,在南湖这个片区判断位置好不好的标准只有一个,距离南湖近不近!同时注意,南湖板块四至是以高速路、高铁路作为规划边界的,所以要特别注意距离这些道路过近的小区或者小区的楼栋或者某些户型,需要选择回避。因为在这些快速路上过往的车辆是有一定的噪声产生的。当然如果自己入住的时候,装修上做一些处理,这些噪声也能屏蔽。

商业规划1
上图中红色区域都是商业规划。现在也有部分商业建设完毕,也有一些商业地块出让完毕,还有一些待出让的商业地块。总体来看,南湖的商业规划是完善的,就是目前阶段落实得少。随着城市的发展,这个短板会逐渐补齐的。我个人有这个信心。这也是价值洼地的一个特征,等配套齐全的时候,价格也随之水涨船高了。下图就是已经建好的商业配套,目前处于招商阶段。

商业规划2
结合相关信息,嘉宁广场项目将于2019年5月启动,项目位于天和路西侧,农于道南侧,该项目包括菜市场、商业、服务中心等。

根据之前的总平面图公示及招标信息,嘉宁广场建设项目投资额约10000万元,总面积28202.98平方米,地上建筑面积19515.05平方米,地下建筑面积8687.93平方米,包括1号楼、2号楼、3号楼、地下车库。项目建设工期约为15个月。按照正常进度,到2020年底,嘉宁广场就可以建设完毕。

该广场的开工,将一改南湖片区商业项目匮乏的局面,在南湖片区的居民带来诸多便利。
近日,小武哥实地探访,该项目地址已经开始施工,机械设备、工人都已经进场。下图是最新实地状况。



商业规划3
公示建设项目智鑫广场&智湾广场建筑设计方案。


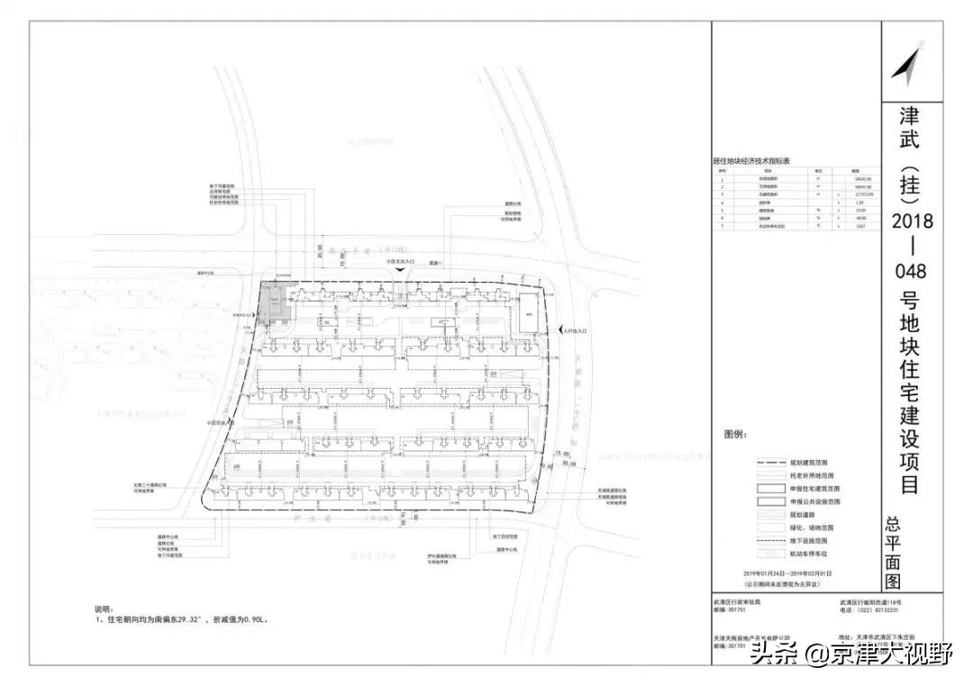
2018-04-27日,津武(挂)2017-046号地块由天津久川建设开发有限公司以底价0.67亿元竞得,楼面价2055元/平方米,溢价率0%。津武(挂)2017-046号地块,位于武清区下朱庄街天和路西侧,四至为:东至天和路绿带,南至现状空地,西至支路十,北至次干路四绿带,现状场清地平。
该宗地块用地性质为商业用地,土地用途为商服,出让土地面积16302平方米,容积率不大于2.0,绿地率不小于15%,建筑密度不大于50%,建筑限高30米。挂牌起始总价6700万元,折合起始楼面价2055元/㎡。
教育资源
板块内有完备的学校规划,有幼儿园,小学,初中,高中。现在南湖小学,南湖初中,天和实验高中均已投入使用。根据规划,保利梧桐语北侧规划建设为小学。天和高中的高考成绩排名也是位列武清第一军团的。天和城实验中学坐落于天津市武清区天和路上,是一所全日制寄宿式高级中学,于2014年正式招生。天和城实验中学与杨村一中建立教师流动机制,实现两校教科研一体化,学校校长和中层领导由杨村一中选派的优秀领导干部担任。南湖小学,南湖初中的校风也很好,老师责任心也很强,假以时日会成为优秀学校的。现在大家对教育都比较重视,特别是城区规划范围内的学校都很重视学生的教育。选择这个片区,教育问题不用担心。另据,南湖小学附属幼儿园今年已经开始招生。



我们在这里说一个问题。南湖是城区规划,这个没有问题。很多人认为楼多的地方才是城区,这个认识是偏颇的,城区规划是个很严肃的问题,只要规划确定这是城区,他就是城区,无论住宅密度。城区这个问题也很重要,在武清体现最明显的是中考的时候,城区的孩子可以考城区内的各个高中,也可以考其他镇的高中,而其他镇的孩子们只能考所在片区指定的高中。城区概念是指,政府规划的城区,不是我们认为的小区密集的地方就是城区,这点一定注意。有些小区卖得也不错,但购房者就是忽略了他的行政区划,就此问题,我们会在讨论相关区域的时候给出答案。城区的孩子可以上城区定点的小学初中,可以考城区内的高中,城区外的就不行。年轻购房者,往往忽略这个问题,因为他们往往连婚都没结呢,很少考虑孩子以后在哪上学的问题,但真到那一步,只能一脸蒙了,WHAT?
交通状况
武清站距离天和城10公里。南湖板块周边环绕着京津高速、京沪高速、滨保高速及103国道,这些公路在南湖均有入口,可实现5分钟到高速。天和路可以实现10分钟车程至天津外环。
通武廊轻轨拟设站点
据武清区发改委介绍,正在规划中的“通武廊”轻轨线路,将充分利用我市地铁5号线,从其北辰区双街终点站延伸到武清区,到达武清区后改为地上轻轨线路,然后一直延伸到河北省廊坊,和当地规划兴建的北三县轻轨连接,最后直接到达北京城市副中心──通州区。
保利梧桐语北侧规划建设为小学;医疗卫生建设为三甲医院;交通设施建设为地铁站址和公交站址。

地铁五号线
天津地铁五号线北辰科技园北站开通,对南湖区域出行,形成利好!天津地铁5号线的开通对武清有没有影响啊?当然有影响,我们不说从武清界到地铁5号线北辰科技园北这个站点只有几公里,确实是只有几公里,但是目前还没有小区啊,我们就以最近的小区为例吧。龙湾城片区里,越秀园,距离北辰科技园北大约有九公里多。南湖离北辰科技园北,最近的小区是万科南湖郡和保利梧桐语,距离也是8公里左右。所以武清要开通公交到北辰科技园,可以考虑两条线路,一条是到达龙湾城,一条是到达南湖。从龙湾城到北辰科技园北这一段要走京津公路,路况有些堵,耗时会多一些。而从南湖到北辰科技园北是走天和路(出武清界后叫“津武线”),非常畅通,非常好走。如果是大站快车的话,从南湖到北辰科技园北十分钟可以解决问题,也就是说从北辰科技园北下车,坐公交十分钟到达南湖,这已经是很快捷了,可以满足基本的公共交通通勤需求。前提是有关部门做好通往北辰科技园北的公交线路规划!开通到地铁站的公交,已经是大家的热切期望了!毕竟开通公交比开通地铁要容易!


再说几句南湖片区同天津市区的通勤情况。武清南湖这个区域特别适合与市区通勤。如果是自驾车的话,已经很方便了。津武线就是快速路的等级,由津武线上外环用时十几分钟,到外环以后因为目的地的不同可以驶入市区内的快速路。能够实现南开红桥河北等市区偏北的地方,30分钟内抵达。这个片区适合在市区上班,过腻了市区拥挤生活的人,换换口味,退休养老也行。南湖,也为休闲的生活方式提供了加分项。南湖区域,官方的规划叫“天和城”,显然南湖绿博园名气要大于天和城。此域的规划起步是比较高的,是一片纯商品房社区,没有保障性住房小区,每一块地都有规划,不存在未来不明确性,现在的开发商都是大牌,保利,万科,恒大,花样年,首城,碧桂园,雍鑫,京汉股份,众美等等。其距离市区很近,道路通畅,自己有车与市区通勤,是不存在障碍的,从天河路直接驳接外环/快速路。事实上,现在南湖的住户就有部分北辰/市区的朋友。好环境是南湖一大优势,街道绿化整齐,南湖适宜漫步。未来地位有望发展成津北的水上公园。南湖,一座为房地产而生的园林。来南湖游玩的人现在已经很多了。游玩之后顺便买所房子回家,yeah!就这么办了!
人杰地灵
郎平,祖籍武清郎庄子,就位于现在的南湖片区。
北京大红门入驻华北城
北京大红门服装市场标志性企业北京鑫福海集团于2018年12月15日在武清区政府与天津食品集团签署注资协议,并马上成立合资企业,大红门批发市场疏解工作更上一层楼。“武清大红门”位于南湖西北侧的华北城及其周边。2019年1月20日上午11:30在华北城步行街易创空间楼下,举行了武清大红门项目揭牌仪式!就此标志北京大红门全面正式进驻武清!

通武廊轻轨今年下半年有望开工建设

天津日报2019/02/23消息:从武清区有关部门获悉,为积极推进京津冀协同发展,打造“轨道上的京津冀”,在国家和市级主管部门的大力支持下,武清区正在规划兴建连接河北省廊坊北三县和北京通州区的轻轨线路,一条轻轨线将贯穿“通武廊”,可大大缩短三地时空距离,为三地经济社会发展创造一流的交通环境。
据武清区发改委介绍,正在规划中的“通武廊”轻轨线路,将充分利用我市地铁5号线,从其北辰区双街终点站延伸到武清区,到达武清区后改为地上轻轨线路,然后一直延伸到河北省廊坊,和当地规划兴建的北三县轻轨连接,最后直接到达北京城市副中心──通州区。按照设计,“通武廊”轻轨最高时速可达160公里左右。按照初步规划,今年下半年“通武廊”轻轨有望开工建设,将为整个京津冀地区交通“联网”建设探索新路,积累经验。
所有楼盘列表
旭辉地块(2019年3月摘牌)
蓝光地块(2019年3月摘牌)
天辉(项目公示招投标阶段)
恒大翡翠湾(纯新盘未开)
博大和颂府(纯新盘,商住别墅,未开)
众美南湖湾(纯新盘未开,洋房)
碧桂园听湖(次新盘后续有小高层开盘)
京汉云湖间(小高层等小平方米)
保利梧桐语(高层、洋房、别墅)
保利溪湖林语(共三期洋房、高层)
万科南湖郡(别墅、洋房)
雍鑫天湖悦府(洋房、别墅)
南湖九号(大平方米小高层)
首城南湖壹号(共四期,别墅,洋房)
君利君湖园(别墅小高层)
花样年系列(目前是家天下,高层洋房,别墅)
南湖红星国际广场(别墅、高层)
蓝光地块(2019年3月摘牌)
蓝光地块规划有社区商服。两地块住宅容积率均为1.0-1.5,今后或将主推洋房、小高层等产品。011号地成交总价15.251亿元,折合楼面价5090元/平方米。

旭辉地块(2019年3月摘牌)
旭辉地块为城镇住宅、商服、科教用地,规划有独立建设的12班幼儿园;值得一提的是,010地块东侧为规划轨道M5线延长线。其中010号地成交总价11.31亿元,折合楼面价5099元/平方米。

天辉
项目所属:天津天辉房地产开发有限公司。项目位于郎庄子道南保利溪湖林语二期东侧。从招投标网上获悉,项目性质为:商业住宅老人院/老年公寓(无医疗设施)商业综合/零售。目前处于设计招标阶段。


恒大翡翠湾
事实上,恒大翡翠湾目前还是工地,售楼处和路标已经建设出一点模样。该项目位于天和路以西,保利梧桐语和众美南湖湾之间的位置上。2017年11月 3日恒大以最高限价8.678亿元摘下,折合楼面价为10375元/平方米,同时自持住宅面积1200平方米。从规划公示得知,项目以洋房和小高层为主。另据,与恒大相邻的地块是众美斩获的,当时的入手价折合楼面价9602元/㎡。如果说泉州水城(黄庄)有六君子,他们拿地价都是12000起,那么恒大与众美就是天和城(南湖)的二君子。从现场来看,恒大的施工进度还可以,项目内塔吊林立。









博大和颂府
这个项目就在南湖边上,商业项目,其位置好的别墅甚至都能看到南湖。亮点是南湖社区纯别墅项目,以独栋、叠拼别墅为主打。待开盘。






南湖红星国际广场(别墅、高层)
这里距离南湖小学近,位置适中,小区整体高端,别墅区更显雍容。项目有少量别墅尾盘。高层会受到高铁噪声轻微影响。

碧桂园听湖(别墅、洋房)
位于南湖片区北侧,碧桂园收购的项目,项目距离南湖近。高层项目四月首开售罄,后续有精装修加推,但是价格已经比首开高了。



花样年系列
花样年是最早开发南湖的房地产商之一,当初的高层只有4000块钱,他们的售楼员上街哀求大家,求求您买套我们的房吧,将来能涨到一万。但是大家都不信。现在真的就一万多了,也信了。这也是正应了那句网红名言:
今天你对我爱搭不理,明天我让你高攀不起!
现在有“家天下”在售。万元盘,价格合理,精装修。本地刚需、外阜落户可以考虑。简而言之,经济适用。





君湖园(别墅小高层)
扼守南湖公园2号门,小高层能观湖。高档社区。开发商是天津彩欣投资有限公司。


首城南湖壹号系列(别墅,洋房)
大约是和花样年同时入住南湖的。占据了环湖一圈的位置,得地利也。位置佳,品质优秀,小区有档次。尚有少量尾盘。





京汉云湖间(小高层等小平方米)
次新盘,项目位于南湖四号门门口,非常好的观湖楼盘,产品平方米数都不大,入手方便。位置好,是这盘的直观特点。目前正在建设。下图既是该项目的工地。这次2.0版本更新了该项目工程进度照片,请自由观赏。我第一版发布的时候,几栋楼还在打地基,现在都快封顶了,建设进度还是可以的。据悉,项目还有200套住宅待开盘,预计开盘日期在5、6月份。目前,还有商住40年产权的湖景公寓在售。





雍鑫天湖悦府(洋房、别墅、商业)
本土开发商,深得父老信任的品牌。赏鉴一下吧,售罄。




众美南湖湾(在建,洋房等)
位于天和路西侧,新盘,在建。5-8层电梯洋房。首开93㎡(3室2厅1卫),75㎡(2室2厅1卫),每户赠送直饮水,通风系统,毛坯交房。交房时间:2020年年底。南湖湾开盘时间,一直迟迟不定,最近要“荣耀回归”,5月“盛大开盘”。



万科南湖郡(别墅、洋房)
万科收购的盘,已经交房,目测物业不错。赏鉴之!








保利溪湖林语(共三期洋房、高层)
央企品牌,值得信赖。部分已经入住。





保利梧桐语(高层、洋房、别墅)
保利溪湖林语姊妹篇,位置在南湖区域的南端,小区西边与北辰接壤。梧桐语高层2018年年底卖出了万元上下的低价,还特别推出了爆款户型,不卖9999,只卖8888!在武清楼市,荡出了小小的涟漪。



南湖九号(大平方米小高层)
赏鉴一下吧,已经交房。观湖豪宅。

小结
南湖板块的房价主要集中在一万三到一万六区间。高层价格低一些,洋房价格高一些。
南湖风光
我们讨论南湖板块,怎么能少了“天使之泪”,我们的南湖呢?用一组照片,目睹她的魅力吧!




备选标题
武清的南湖,京津的南湖,你的南湖,你的家。最终,我还是选择了这个形象感的标题:“南湖,武清的天使之泪!”