这次给大家带来的是兰亭湾畔C3栋134平方的工地报道,134平方户型是四室两厅一厨两卫外加两个大阳台,每个空间户型比较方正,整体的采光和通风都很不错。兰亭湾畔的房子户型都比较好,且他本身的地理位置就绝佳,东瞰湘江,西观7000亩洋湖湿地公园,北眺岳麓山,南赏靳江,独特地理位置形成的滨水湾区景观,在长沙鲜有所见。像这次案例的C3栋134平的阳台就可以看得到靳江。

业主档案
这次案例的业主是一对年轻的小夫妻,涂美女和她老公,房子是准备结婚用的,对自己的房子有一定的想法,一是想拥有一个主卧衣帽间,最好是还能带有书房。二是想要做一个榻榻米,主要功能就是用于休闲。因为对装修这一块都不是很了解,但是很上心即使是平时工作都比较忙,但是只要一有时间两人就会在兰亭跑各种正在装修的工地,或者是在建材和装修市场上了解装修公司和定制公司。
和我们阳泽装饰@贵凡定制的相遇也是来自一场工地上的偶遇。当时涂美女正好是在她邻居家看装修和定制工艺,恰巧是我们装修的房子,看了柜子安装的工艺和细节方面之后,两人比较感兴趣,后面又跟着我们项目经理看了几个正施工的工地,看了很多不同的改造方案和定制衣柜实景,发现我们对兰亭每个户型都有做过,也有不同的改造设计方案,对我们改造的设计比较喜欢,因为我们会根据每个家庭的实际情况考量,量身定制,并且都是实用性比较大。且我们在洋湖湿地这边的生活家居馆离兰亭很近,当下便决定到店进行详细了解和沟通。
公司介绍 阳泽装饰@贵凡定制是长沙本土品牌,我们从04年开始做起,在长沙的家装与定制行业中摸爬滚打了十五年,经验丰富且拥有整装经验,能做全案设计,我们对于兰亭134的户型特别熟悉,已有多套成功的设计经验。我们能做项目有全屋定制,精装房改造,旧房翻新,涂美女就是看中了我们这一点,因为她家按照她的想法来装的话是要进行局部改造的,找一家能一趟水做好的公司是很划得来而且很省事。
在与我们家装顾问和设计师详细沟通了几次之后,从设计、价格、材质,都达到了一个满意的点之后,徐美女也是最终决定把家交给我们来改造定制,她说从交房到现在也只是了解了大概5-6家公司,阳泽和贵凡打动她的点主要三个:一是设计,设计师比较懂他,最终给了一个很满意的改造设计方案。二是,现场的施工,自己看到了实景的工地,对于做工细节上面的东西,觉得项目经理很靠谱,工地能有专人管理,即使没时间来工地,有监管的人把关,也会放心很多。三是确实性价比比较高,从改造项目到柜子,是专业的施工团队和自己的木制品品牌,像在索菲亚做实木颗粒板的价格可以在我们这里做上多层实木,划算!
精装房改造
除了全屋定制柜子外,涂美女家中是做了局部改造,我们的设计师根据其基本户型和涂美女对于自己房子的想法给她提出了一个最优改造方案出来,第一个改造项目就是把她家主次卧连通,做成一个主卧带卫生间,衣帽间和书桌的套间。第二个改造项目就是拆除景观阳台原本的推拉门,做成一个门套。把客厅与景观阳台拓成一个整体,在景观阳台这边做了一个榻榻米。其余的局部改造项目就是家中风管机的安装及整墙刷艺术涂料。

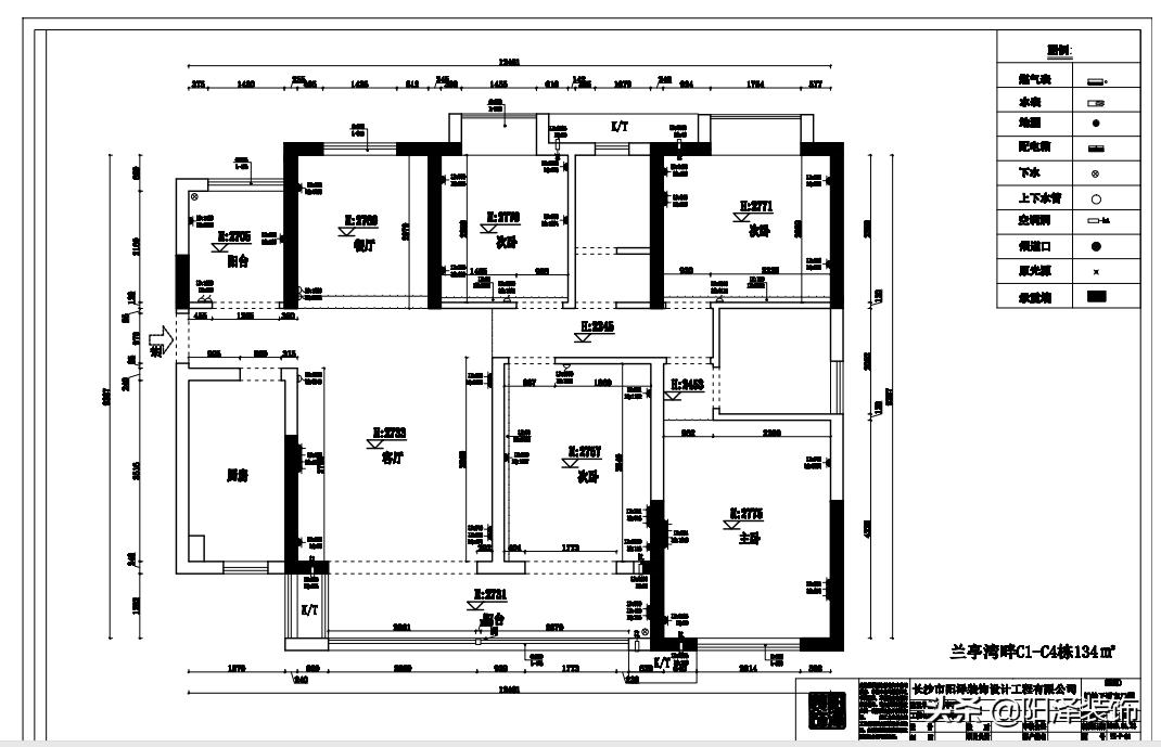
原始户型图

两房并为一个套间
之前的主卧空间不算大,作为夫妻俩个的房间,放了一张双人床后再放衣柜便会显得拥挤,要把房间扩大的改造一般都是要敲掉主次卧的一堵墙,但是基于134平米的房间布局却有一个更好的改造方法,就是把主卧和主卧卫生间旁边的次卧的两扇房门拆掉,把房门移到走廊处,两间房便有了一个过道可相连通,不需要进行大面积的拆墙。这样改的话就可以做成主卧带卫生间,衣帽间,书房的套间。

改造户型图

阳台部分的改造
134户型的大阳台看江景的视角好,且大阳台连接了客餐厅和次卧,各个空间的独立性不是很好,所以我们在这里加一扇门,把大阳台分割为两个区域,功能分类为景观阳台和生活阳台,次卧和生活阳台便是一个整体独立空间。
在景观阳台这边把原有的门槛石挫掉重新找平,做了一个地台。下面采用的是大芯板打底,橡木指接板饰面,是集玩耍,休闲,娱乐,亲子陪伴为一体的多功能区域。平时的话在这个地台上摆张小桌子,拿本书籍翻阅,看累了抬头又是美丽的江景,岂不美哉!

景观阳台做了一个小飘窗,封窗我们是往外面封的,在长沙封窗行业是有两种封法,一种是普通的直接往里面封,还有一种是像我们这样往外面封阳台,在飘窗这边是我们自己的泥工师傅用钢结构和红砖固定,上面铺大理石台面,台子里面的空间有1m左右,风管机外机的话是在0.8m左右是可以容纳进去的,这个台子的长宽算下来给你家扩大了将近一个平方左右的面积,按兰亭的房价8千多平方来算,你相当于赚了八千多块钱,且在这边还可以改两个插座过来。像这种封法,在外面做封窗是不会给你做的,这都是我们为了让业主能有更好的生活体验而特别做的创新,砌这种小台子是一种封法,我们也还有另外一种封法,前期的施工都是一样的,只是这里可以给你做成平开门的样式,就相当于是一个柜子的感觉,这种也是可以的。


客餐厅的风管机在靠休闲阳台这一块,主要是方便外机刚好可以放在封阳台砌好的小台子里,且外机和内机的距离近,不需要多加铜管,像市面上是超出六米,铜管的费用就要额外加收,那样就不划算。在家中装风管机相比于买柜机的优势是很明显的,第一点:风管机和柜机的价钱差不多,而柜机是立在地上,一般是要地面占一两个平方的位置,而风管机是利用上方空间,省了占地面积,这剩下的这部分你可以用来放点盆栽装饰或者是定制储物柜。第二点风管机与柜机的效果是差不多的,而且风管机相比较于柜机的话它还有一个除湿功能,像兰亭住在江边湿气是会比较重的。第三点装风管机会使得家中的格局更加的漂亮,整体看上去高大上档次一些。

因为徐美女不喜欢全吊顶,所以只在风管机这边做了局部吊顶,在这部分涉及的改水电,木工师傅吊顶,和后期的墙面修复我们仅收材料与人工费,总计1200元,是相当划算的,做出来的效果涂美女也是十分满意。顶上其余的地方为了美观则是用石膏线围着整个客餐厅走了一圈。这是局部吊顶。另外一种方案是做全吊顶,顶上采用回字形吊顶,并使用筒灯,整体效果也是好看的,而且这样日久天长也能省下一笔电费。

封闭阳台
封窗的话我们一般是建议做断桥的,断桥铝材有着比平常铝合金更加优异的性能,断桥铝隔音保温,防结露效果好。一般都是在生活阳台做断桥85的,在景观阳台做断桥110的,这样也更加经济。因为业主家是在27楼,可能噪音不是很影响,但是入冬后,温度肯定会比较冷,室内保持恒温就很重要了,而且在冬天玻璃容易结露看不清外面的景象,但是用断桥铝之后,不管多冷的时候都可以看到外面美丽的江景。兰亭134平的户型就一个大阳台需要封窗,面积是14.8平方另外原开发商的窗户是需要增加9个纱窗,做断桥的话纱窗是有自带的三节纱窗,且把手上带锁,可清洗,家中有小孩的业主家是特别有需要的,安全性超高。

封窗的业务是我们与别人家合作的,之前已经是淘汰了好几家,优胜劣汰的自然法则。我们对于合作商的要求很严格,都是直接去他们厂家实地勘,因为封窗的铝材很重要,选用的是广东长顺的铝材,是比较出名的。像五金这方面选用的是德国霍曼的五金件,经久耐用,我们与别人合作封窗这一块主要是为了能够更好地交接业务,不会说出现两家公司接洽不好,导致工期拖延,细节处不完善的事情。

墙面装饰--艺术涂料
原来兰亭精装房开发商墙面刷的颜色是米色的,两人都不是很喜欢;再加上原来开发商刷墙的时候是冬天刷的,墙面会有不平;而涂美女与她老公都比较钟意的是现在流行的墙面艺术涂料,主卧的房间是想要有新婚气氛且温馨些是刷的樱花粉,除他们房间之外都是刷的孔雀蓝。艺术涂料是这几年新兴的墙面装饰涂料,主要是因为艺术涂料与普通的墙漆相比,一是可清洗,家里不小心碰脏墙壁的话只需要洗掉就可,而普通的墙漆可能需要重刷。二是整体的效果很美,质感强,看起来让人觉得干净舒服。


像墙面装饰这一块市场上还流行一种硅藻泥墙面,这种是以硅藻土为主要原材料,一种天然环保的内墙装饰材料,和易性和可塑性强,适用于家庭,天然环保,多用于卧室和婴儿房。全屋定制全屋定制的柜子主要是做了玄关处的鞋帽间,客餐厅的餐边柜,主卧的衣帽间,两个次卧衣柜,一个洗衣机柜,定制柜子类最重要就是要选择板材,兰亭的业主一般都建议选择做多层实木板,因为兰亭是江景房,常年湿度会比较大,实木颗粒板防潮性能没有多层实木的好,为了长远起见,选择多层实木板更加好一些,性价比也很高。
阳泽装饰@贵凡定制是长沙本土品牌,是自有的木制加工厂,材质有:1.实木颗粒板,2.多层实木板,3.生态板,4.OSB无醛板,5.原木系列。颜色也有百余种可选,基本分类有浅色系列,中性系列和深色系列,在洋湖湿地这边将近2000平的生活家居馆里都有样可看。涂美女主要是喜欢简约风格,在经过重重筛选后最后确定了柜体做摩卡胡桃色,柜门做北斗星布纹系列。
1
玄关之鞋帽间
进门处原本有一个鞋柜,但是考虑到家里的人数和鞋子数量,便在这里又加了一个鞋柜,使得玄关处这里形成了一个二字形的鞋帽间样式。原本的鞋柜处原开发商设有一个水龙头的,可在这里放洗衣机,但是业主觉得没必要便拆了并选择在这里多增加了一个鞋柜用以收纳,原来精装房的鞋柜是米色的,为了好搭配一点这边的鞋柜是做的白色,因为白色百搭,搭出来效果是比较协调的。

新做的鞋柜样式中间留空了一截,这里可作为出门时临时放置钥匙的地方或者是在这里放点装饰品。台面如果想要经久耐用的话可以还可做个石英石台面,背板这一块如果是想要镜子多一点还可以加茶镜,看起来也更加好看一些,茶镜的选择有多种,灰玻。黑玻都是可以选的的。要是不喜欢这种中间留空的设计还可以直接把柜子拉下来做,不留空这一段。

在鞋柜的内部结构里面为了能让鞋子透气,我们还做了筛孔。全屋柜子里的五金件这一块,我们做了升级,从之前的DTC升级为亚当斯,这是标配的,也可选择做百隆,海蒂诗等更好的五金件,我们承诺五金件非人为损坏,五年内包换。

鞋帽间这边全身镜的下面还做了一个矮凳,平时换鞋什么的也更加方便。换好之后出门前便可在镜子前整理着装,十分便利。全身镜上方还留空了一点位置可添置挂钩,像围巾,包包,丝巾等物品可进行挂置。
这个鞋帽间这里原本有根梁,如果做到顶就是异形,看起来不美观,所以这块是没有做到顶的,而是在两边柜子上面吊了一圈顶,能避免落灰整体效果也更加的好。
2
餐边柜
客餐厅这边就着窗户做了一个深度400的餐边柜兼酒柜,中间的台面与窗户平齐,原本窗户这边是有一个窗台石的,我们是把它挫掉然后直接做的一整块大理石台面,像果汁机,茶水饮料等可在台面上操作。这样做是我们经过多次实践的,因为不把窗台石去掉的话,后面安装的台面与原有窗台石之间会有缝隙,且不平整,效果不好。


两个顶柜里可放置酒杯,茶具,下面四个开放式的柜子可放点盆栽点缀,还可以容纳进一个微波炉等家用电器。

3
主卧衣帽间
主卧的衣帽间是做的半开放式的L型衣帽间,开放式的地方长衣和短衣的悬挂处都做了,而且设置了四个抽屉,因为是夫妻两个,一人两个抽屉用来放置男女士内衣*裤内**以及袜子都足够了。这个衣帽间足够大,能满足男女方都想要衣帽间的需求也能做到有效收纳。在柜门这里是加了一个拉直器的,因为一般而言柜门超过1.4米之后,它就会有一个变形系数,不加拉直器可能几年之后衣柜会变形的概率是百分之八十,而加了拉直器就能降低在百分之二十左右。这效果还是比较显著的,实用性强。



衣帽间的转角处我们设计的是开放式圆角,不会使得空间那么的死板,而是比较流畅,且在这边放置一些装饰品能很好地提高屋内档次。
主卧衣帽间兼书房,书桌上的书柜是用了搭色板点缀,让整个空间不会显得那么沉闷。且这里还是可作为女主人的梳妆台,平时在这里化妆护肤,偶尔晚上或者周末在这里放松,学习都是可行的。

4
次卧衣柜
两个次卧因为空间比较小,而业主想要有床头柜,所以这里的衣柜柜门设计为百叶形状的移门,柜体上加顶柜,且顶柜在上方延长,利用了这一部分的闲余空间。这个百叶移门业主喜欢简约的款式,但是又想要有一点小细节便选择的是布纹系列的移门,摸上去的手感是比一般的移门更加好的,而且我们移门的下面是做了比较高的踢脚的,不会像别家一样踢脚留的低,移门的轨道比较容易损坏,且灰尘可能会进入衣柜里。


5
休闲阳台的洗衣机柜
洗衣机柜分三个部分,吊柜,台面和地柜部分,吊柜部分上面做了顶封板,高度和晾衣架的高度差不多,这是为了让吊柜的柜门能够很好的打开,不会说是碰到晾衣架卡在那里打不开。且因为阳台这边有水管,下面这一块都是做了包管的,上面存水弯的部分,我们在这边的板子下面正对着存水弯的地方开了圆孔,以后方便检修。吊柜下面开放式的地方可用来放置盆栽摆设和常用的洗护用品,上面的地方可用来放置衣架和一些杂物。


人造大理石台面做了前后防挡水处理,避免在此洗衣时把水溅出来,嵌入式的盆子便于浸泡衣物和洗袜子,内衣*裤内**等。下方留空的部分可根据业主家的洗衣机尺寸来进行调整。地柜的是做的平开门,这部分是可以用来放置洗衣液,刷子等。阳台洗衣机柜的实用性很强,既美观又实用,喜欢精致生活的人必需品
在安装完柜子之后,不管卡尺有多么精准,墙面和柜子之间一定是会留有缝隙,我们能做的就是把缝隙控制在最小范围内,但是很多业主还是会觉得这样不完美不好看,为此我们特别的一项补墙漆的服务,在安装完柜子之后,在缝隙处用腻子粉使柜子与墙面无缝连接,整体效果更加协调。
兰亭134平的户型已做了20几套,感谢客户信任,更多的是在我们这装完后居之间的介绍,俗话说金碑银碑不如客户的口碑。长沙本土装修品牌阳泽装饰@贵凡定制整装经验丰富,能够做出全案设计,在兰亭134平的户型已经有多套成功的设计方案。在对于精装房改造这一大块我们已经是积累了很多经验,像改造项目整房地板,门,都可以换,坐便改蹲便,全房踢脚线等改造项目都可以做。
公司优势
长沙装修公司阳泽装饰@贵凡定制有自己的装修公司和施工队伍,工程不外包,每个工地都有自己的项目负责人,能让设计与施工材料相吻合,虽然说对于兰亭134平做的是局部改造,但是局部改造对于改造施工的技术和施工师傅手艺的精湛程度是很有关系的,局部改造比全面改造要更加难,所以这就要靠项目经理的监管了项目经理相当于是介于业主与公司之间的一个桥梁,是对业主房子质量的一个双重把控。
沙全屋定制贵凡定制有自己的木制品加工厂,材质主打多层实木,主要是因为相对南方来说环境是比较潮湿的,多层实木板耐潮性能好,且我们的选择性比较大,像板材这一块你可以选择多层实木柜体,模压柜门,或者是实木颗粒柜体,多层实木柜门等搭配都是可行的,对于颜色这一块,可做成柜体柜门同色配套,也可做成柜体与柜门搭色。
一个有责任与担当的公司才能走得更长远,我们的合同一开始就是签死的,在施工过程中按照图纸操作,没有任何隐形消费。且我们的设计人性化,都是根据业主的生活习惯及喜好设计,不会强制性说一定要做什么项目,一切都是以业主住的舒心,用的方便为主。
长沙阳泽装饰@贵凡定制提供全房品质整装,精装房改造,老旧房翻新等三大主营业务,一站式服务到家,给你完美的家居生活体验。欢迎有关装修与全屋定制需求的朋友致电了解咨询或者到店参观。
地址:长沙市岳麓区洋湖公馆二期四栋三楼