100左右的房子装修要多少钱?在郑州买房,80-120平比较居中,尤其是100以内的小三房,很受欢迎,其他城市也是一样吧~
今天,同一个小区两套不一样的风格的案例分享给大家。郑州润城时光里,100平房子,硬装全包10万以内。
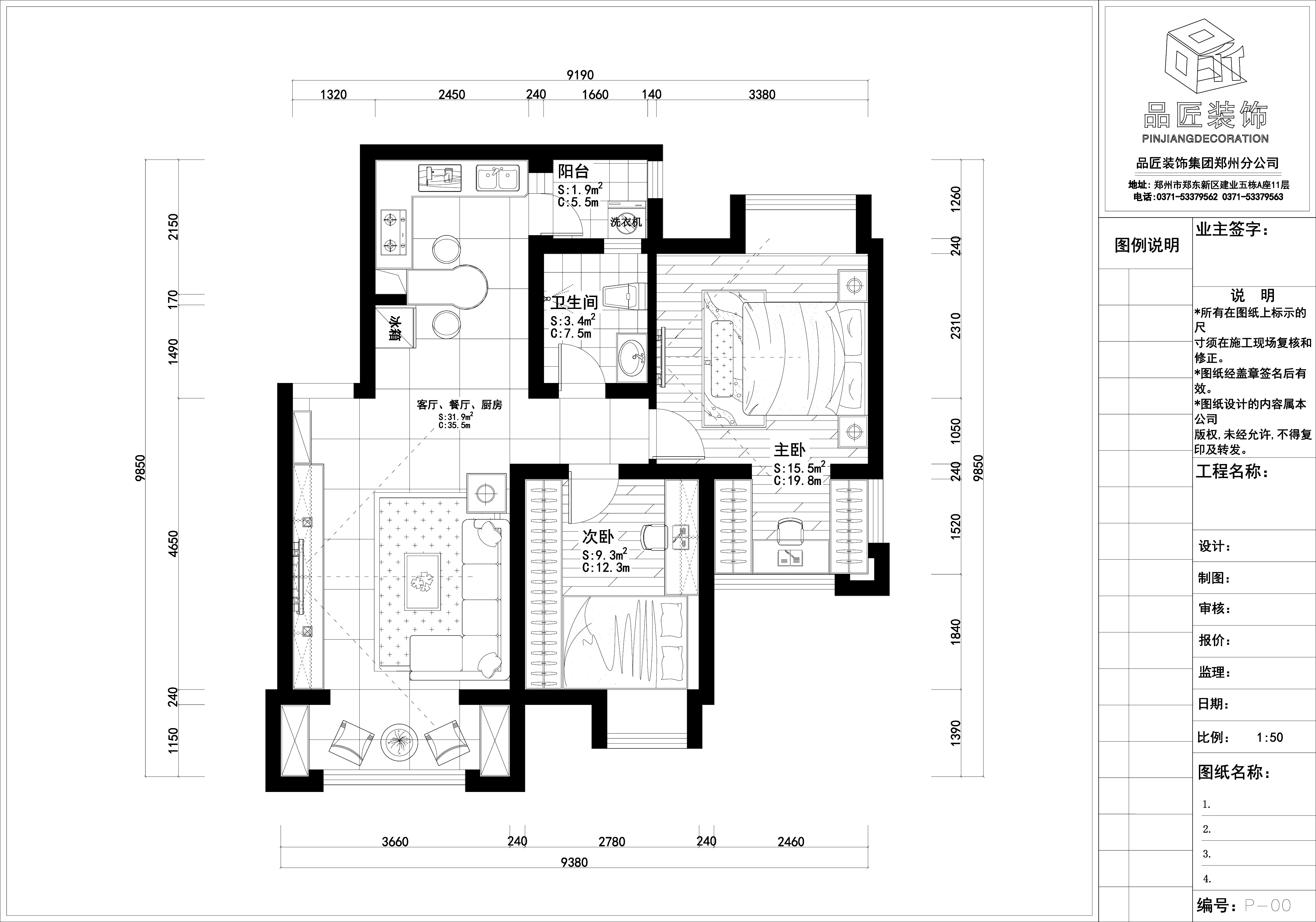
现代风格设计效果图
硬装造价9万5

现代风格装修
黑白灰为现代风格的经典颜色,整体比较大气,也很时尚~

开放厨房+小吧台设计,有情调有设计感~

榻榻米房间,可以作为书房,也可以作为客房。

田园风格设计效果图
硬装全包9万5


浅绿色的田园风格,小清新的妹子的家~


卧室,童真烂漫~

主卧

(联系我,可点头像、右上角关注,发私信~)
主页:“免费设计”“0元报价”,可预约设计师、免费上门量房 / 出预算 / 方案
或点击下方红*图色**片:免费报价计算器,看看自家装修需要多少钱?(全国都能免费算!)