420㎡ 独栋别墅,
从毛坯到软装进场,仅花 6个月,
效果图几乎 100% 落地。
这个 别墅全案设计,是怎样实现了
效率、效果与预算 的完美平衡?
▼
业主背景
区域:上海浦东
户型:独栋别墅
面积:420㎡
风格:现代简约
这是凌先生的第二套房。
10年前,他装过一套美式风格的别墅,这次找到我们,他明确要现代简约风。
“我经常出差,住过很多五星级酒店,外面很忙,希望回到家里可以简单舒服。”
“现在喜欢这样简约风的,大多是年轻人呢!” 我说。
凌先生爽朗大笑:“可能这两年的审美受乔布斯影响吧。”

“ Less is More. ”
▼
业主需求
"图纸上的尺寸要和落地尺寸分毫不差!"
很少有客户像凌先生这样,对尺寸要求到极致。当得知他毕业于同济土木工程专业,自己公司做的又是城市基建,就不难理解,他的要求,是源于骨子里的严谨和多年的职业素养。
▼
本案设计师

主案设计师:周闯
上海星杰装饰有限公司 设计总监
星杰陆家嘴分公司 总经理
擅长风格:现代简约、欧式、美式、新古典
上海十大优秀青年设计师
IDS国际设计先锋住宅空间金奖
艾特奖国际空间设计大奖双项奖
……

软装设计师:倪丹丹
擅长风格:轻奢、现代、新中式、新古典
代表作品:云锦东方、财富海景、铂悦滨江、中海紫御、金大元、溧阳公馆、万科蓝山、尚海郦景……
▼
平面布局

别墅共三层,1F是客餐厅共享区域和老人房;2F是主卧、书房和衣帽间;3F预留给国外留学回来的儿子。

设计师根据每位家庭成员的生活习惯,规划空间动线、划分动静态区域,布局家具尺寸与摆放格局。
▼
预算、效果和效率怎么把控?
秘诀就是:开工前,设计师就和凌先生一起把主材、定加工和软装确定下来。
星杰的全案体系中,软装前置可以确保:
① 效果:软硬装统一协调,落地效果不走样;
② 工期:考虑到家具都有货期,进口家具甚至需要6个月到货。早定软装能确保施工完成后家具进场的无缝对接。
③ 费用:装修是笔大费用,前期合理配置预算架构 ,有效避免后期预算超支。
设计师与凌先生沟通各空间的软装配置级别。
以2F为例,分区控价有效平衡预算与效果。
▼

主要空间多进口家具,次要空间以国产家具为主。
▼
设计方案
1F 客厅
全案设计前期,设计师就对尺寸做了精准把控,包括家具摆放的平面布局,挂画、壁灯与背景墙的尺寸关系,都1:1精准还原于图纸上。

客厅家具摆放平面图

挂画、灯饰立面图

大理石和木饰面组成的客厅背景墙,硬朗中蕴藏温润。

整体空间以深木色、灰色和白色构成沉稳优雅的氛围,柠檬黄作为跳色点缀(单椅、抱枕、挂画、吊灯),给空间增加了活力。

主沙发为意大利Swan的一款布艺沙发,面料亲肤,靠背往后能拉大坐深,便于躺卧。羽绒填充打造极致舒适的坐感。

高低错落的茶几灵活多变,空间更显轻盈。边几上可随手放一杯水、一个手机,即使窝在这款坐深很深的沙发里,拿取东西也方便。

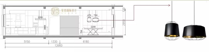
黑金配色的黄铜吊灯摩登时尚,错落排布打破屋顶斜面的不对称性,形成视觉平衡。

1F 餐厅/厨房
餐厅厨房连通,动线流畅,视野开阔

立面图精准勾画了灯饰和桌子的比例,不对称灯饰增加空间的活泼韵律。

大理石岛台的错落设计,区分了备餐区和简餐区,德国柏丽橱柜隐入整体立柜,天衣无缝。


没看到冰箱?也藏于柜体呢~
1F 茶室
契合整体现代氛围,传统茶室也凝练出简洁流畅的线条美。

圈椅和条凳的纤细骨架以更多留白彰显韵味。

2F 健身房

健身房吊顶处,特意做了异型排列的灯组,演绎运动的韵律美。

前期设计方案里,就预留好电线跟定位,让施工和后期的灯具安装能无缝对接。
2F 主卧/衣帽间
设计师为注重睡眠品质的凌先生凌太太选了意大利进口床具,造型简约低调,躺着很舒服。

床头灯简约个性,黄铜元素提升质感。

双排衣帽间是凌太太要求的,半透明式衣柜方便找寻衣物。

换装时可以坐在小方墩上,光脚踩着地毯,手机随手放于茶几。
3F 儿子的私密空间
经典个性的草帽灯、意大利布艺休闲沙发、装饰壁炉,营造出一个现代气息更浓郁的空间。




Pianca这款大床背的床代替了墙面装饰,整体性更强。



光线从天窗引入,给在浴缸怡然自处的时光,增加了一份仪式感。

秘密储物空间
玄关处,你以为你看到的是鱼缸?
不,其实还隐藏了鞋柜

全屋没有任何矮柜吊柜,都是大色块“隐形柜”。
楼梯吊灯

线条、几何、光影、错落
业主采访
您怎么会选择星杰?
前后选了三四家对比,担心其他家的施工工艺达不到,没法把设计图完全落地。
去星杰的工地看了看,最终选择了星杰,还是十分满意的。
这次装修效果还满意吗?
我要求落地尺寸和效果图不要有超过1厘米的误差,所以从图纸到施工,包含选材,选家具,设计师在每个环节都反复和我确认,出来的效果很精确。工程经理还有好多天住在工地上研究图纸……
大家一起,把我理想中的家做出来了。
设计师采访
效果图能完美落地的原因是什么?
这是我们的全案体系一环扣一环实现的。
首先在设计阶段,图纸上精确无误。
然后是选材阶段,业主配合度很高,施工前就把主材、定加工、软装都和我们确定下来,这样既能确保落地效果的高还原度,又让工期更有效率;整案的预算,也能在装修之前就明确。
再到工地上,精准放线让图纸上的尺寸精准还原到现场空间。
最后,每一件家具依照最初设定的点位布场,才能实现你看到的,比如客厅背景墙和沙发尺寸严丝合缝。




星杰19年海派精工 · 精准放线实景图
这次的设计亮点还有哪些?
那么现代的空间自然少不了智能,比如人在1楼就能手机控制3楼的灯。
全屋还内置了背景音响,如果在客厅想听一首歌,手机一推送,就可以躺在沙发上,看着外面的风景,享受立体环绕式音乐。
全屋装修花了多少钱?
基装主材200万,软装100万,符合业主的心理预期。
420㎡独栋别墅,
从毛坯到软装进场,仅花6个月,
效果图几乎100%落地。
星杰全案
从设计到施工到产品到服务,
每个环节都专业尽责,
每个细节都力求完美。
这才是真正的全案设计。
套用凌先生的一句评价:
“整个过程控制了,结果就好了。”