在去年7月的拍卖会上,经过108轮的激烈争夺,最终中海以溢价41.3%,折合楼面价3.5万/平。
拍地之后,中海再次给在座的友商们表演了下什么叫中海速度。
7月拿地,1月就开盘了。
案名为:中海寰宇视界。
这是中海在北京第三个以【寰宇】命名的楼盘。
前两个分别包揽了18/19/20年北京三年的年度销冠。
什么地块竟然这么抢手?地块周边如何?中海会如何定位这个项目?项目本身怎么样?会是刚需的新选择么?
带着问题我们来到了地块。我们一个一个来。
No.1 地块为什么这么抢手?
因为这是房山离市区最近的地块了。

地块位于房山稻田。
距离房山线稻田站不到200米,堪称地铁上筑。
到 丰台科技园:3站 。房山线北延年底开通后, 换乘10号线:4站。
距离京港澳 1.5公里 ,距离4环路 7公里。
再从房山找个比这个地块离市区近的,确实找不到了。

地块性质
No.2 项目周边目前情况如何?

稻田地铁站
离地铁站近好是好,但离得太近却也有问题。
地下线有震动的问题,地上线有噪音的问题。 我们站在图上的位置实测了下噪音。

噪音测试结果
当地铁经过时,还是有些吵的。
好在这个项目虽然为地铁上盖,却又没有紧挨地铁,离地铁有150米的直线距离。噪音衰减后还能接受。
那目前项目周边给我们什么印象呢?
一是荒。
二就是回迁房。

站在稻田地铁站上向项目望去,一马平川。
项目周边除了一个卖水果的小摊,一点商业都没有。

目前最近的商业就是地铁北侧500米左右有个华联超市。

京西祥云商业
再往北,京西祥云小区自带的一个小型商业,目前还未营业。距离项目1.2公里左右。
二就是回迁房。周边有不少的回迁房。最近的是2017年建成,目前还未下房本。

回迁房
我们做了个图给大家示意下。

回迁房示意图
红框内为项目位置,米黄色为空地,灰色是回迁房小区。
看完图是不是有被吓到~
真就除了空地和回迁房啥都没有呗~
但还别说,五环外的新房,板块成熟的真的不多。
我们再来看看这个地块未来的规划。

项目北侧商业用地+小型医疗用地(社区卫生院)+交通设施用地(公交站场)。
项目南侧是三块教育用地,预计幼小初高全包含。
西南角规划了两片住宅用地+幼儿园。只不过那两块地离地铁太近了。
南侧的回迁楼再往南过街就是两个大公园。

公园

公园
胖虎点评:
环境确实不错,空气也好,整个地块左右两边都是生态控制区,也就是俗称的绿化。
发展需要时间,商业的落地更是需要一定量的人口支撑。 短期内门口就是大商超 可能性不大 ,乖乖坐地铁进城或者去长阳、良乡吧~
虽然有两个小区年份挺近的,看上去还不错。但整体体量大,回迁房过多,会拉低整个区块价格的可能性较大。
教育配套落地同样需要时间,对孩子上学在短期内有强需求的(5年内),慎重考虑。
No.3 那项目本身怎么样?

53平精致一居。
没有做成开间,各个功能区独立,这在一居中很少见。
总面宽8.1米非常惊人 ,客厅、卧室皆3.2米。这个面宽比很多三居的面宽还要宽了。
而且客厅还做了阳台。南北并不通透,但这毕竟是个一居,没法要求那么多。卫生间暗卫。
注意户型所在楼栋, 并非所有楼栋都朝南。 估计南向会很抢手,东西向的价格会低一些。

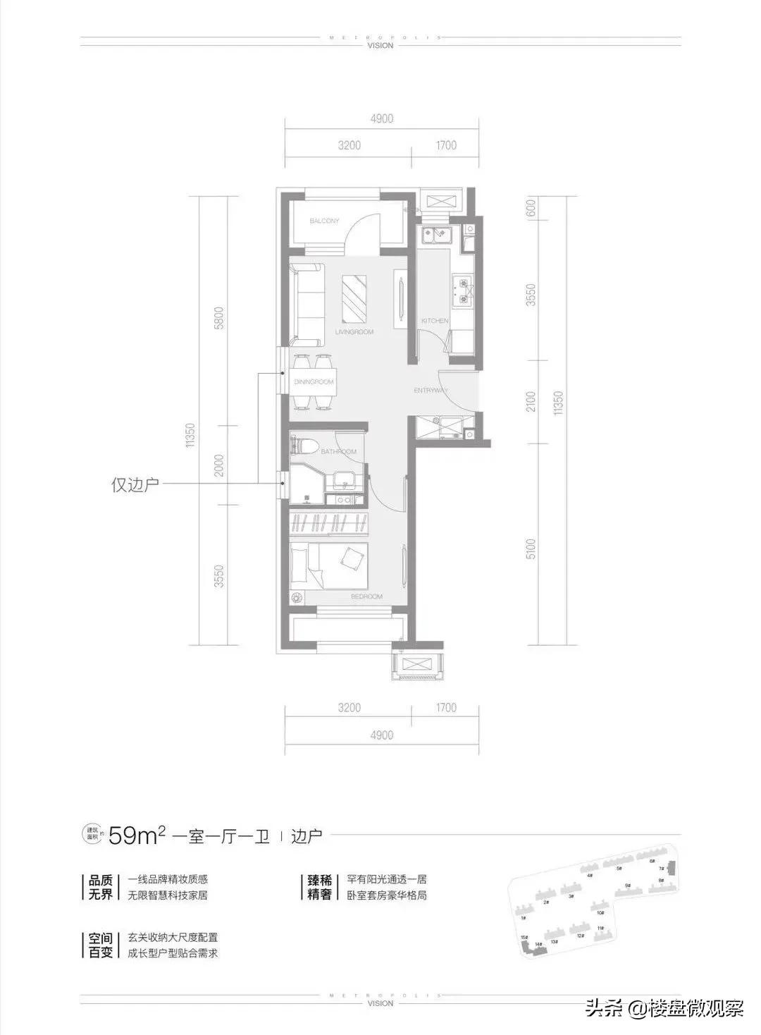
59平一居,边户。准开间户型。
这个和上面的一居在同一楼栋,如果说上面那个是为了面宽牺牲通透性。
这个就是通透性得到保证,面宽却差强人意。
全明户型,南北(东西)通透。59平的大一居做到了没有硬伤。
可惜是手枪户型。面宽仅3.2米,南北向那栋楼依旧会很抢手。

72平两居,主力户型。
全部为南北户型,且做到了南北通透。
南向面宽6.3米,客厅3.3米,主卧3米,次卧稍窄2.55米。
目前看客厅较小,可以将阳台打通,舒适度会有很大提升。
入户玄关设计,保证隐私性。卫生间为暗卫。
这个户型就是我们为什么说中海做户型厚道的原因。72平的两居做到南北通透、双朝南真很少。

96平三居两卫。
南北通透、全明格局,厨餐客一体式设计。中海向来不会在大户型上添堵,我们就不多说了。
南向9.4米的总面宽,只能说是70分。但南向双飘窗+阳台确实要点赞。
入户玄关设计和家政间的独立让整个户型多了一丝豪宅气质。

135平四居两卫。
96平的放大版,没有硬伤,却也少了一丝惊喜。
10.6米的总面宽同样也只能打个70分。
卧室四叶草式分布,互不打扰,厨餐客一体式设计。入户大玄关完美保护隐私安全。
胖虎点评:
小户型继承【寰宇】系的优良传统,又是爆款的小户型。
大户型则做得相对中规中矩。却也让人挑不出毛病。
中海向来“设备平台半间房”的传统,谁占过便宜谁知道。
粗算了下得房率,小户型也可能达到80%,这真的少见,大户型可能更高。
而且全系列精装修。
这样看可能5.8万的均价,心里是否略微平衡了一点。
No.4 总结

周边二手房均价在3.5-3.8万左右,但都是11年之前的老房。
目前同档位准新房仅有中粮-京西祥云,目前售价5.5-5.8万。
看上去寰宇视界又不贵了?
但你要考虑到京西祥云16年就拿地,现在都已经交房了,但没有卖完。
可见大家对于这个价格、这个区位多少有些不认可。但中粮确实也没法降价,毕竟楼面价2.95万/平,也就比中海便宜5000元。可想而知中海的降价幅度更有限。
整个地块长板很长,短板也很短, 整个地块优缺点突出。

区位和周边的劣势,让现在的日常购物甚至理发都要去良乡或者市里。而且房山的重点肯定是要围绕良乡+窦店+燕房三个组团身上。
这要搁朝阳这种阔少身上,我并不担心稻田的发展,但谁让房山是个穷小子,一分钱掰成两瓣花,只能优先关心重点地区呢?
如果手中*弹子**有限,想买远郊地铁房。同价位其实还是有的选的。
荒地并不可怕,可怕的是周边的荒地不上市,上市没人拍,当地政府还没能力改造。
但项目本身的优势十分明显,接近完美的户型,中海的物业和品质,你会选择这个区位么?
欢迎评论区留言。
我是胖虎,对楼盘有一说一。