办公空间设计(方案类)- 优秀作品
公司名称: 广西呈美建筑装饰集团有限公司
项目名称: 中国-东盟信息港小镇(研发中心)项目装饰设计
主创设计师:朱永深
辅助设计师: 黄恒发、杨茂秀、余嘉莉、李建芳
项目所在城市: 南宁
项目完成日期: 2022年01月
设计总面积: 28500㎡
项目总造价: 约5500万

·1F平面布置图

·2F平面布置图

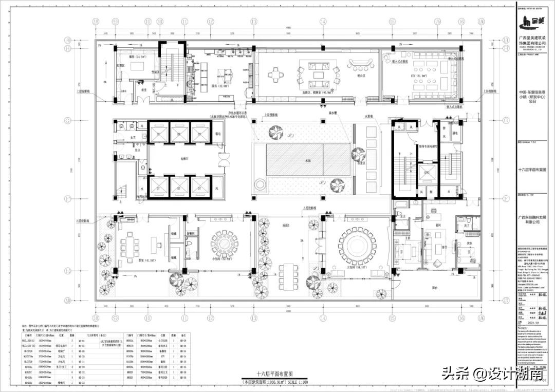
·16F平面布置图

·1F 大厅 (效果图)

·1F 圆桌会议室(效果图)

·6F 游泳馆(效果图)

·1F 圆桌会议室(效果图)

·15F 老总办公室(效果图)

·15F休息厅(效果图)

·16F 茶室(效果图)

·16F 餐厅外景(效果图)
项目实景图展示

·1F 大厅(实景图)

·大会议室(实景图)

·4F 阶梯报告厅(实景图)

·1F 圆桌会议室(实景图)
设计说明
本方案概念出自东晋陶渊明的《饮酒·其五》:
结庐在人境,而无车马喧。
问君何能尔?心远地自偏。
采菊东篱下,悠然见南山。
山气日夕佳,飞鸟相与还。
此中有真意,欲辨已忘言。
采用传统与现代相结合的手法,将传统的文化、精神和当代的手法、感受相结合结合,利用原生与共生的元素,阐述了“原生,自然氛围的传达与延续;共生,自然与设计的对话,传统与当代的共生”的设计理念。
此项目重点解决好空间使用功能的划分与联系,处理好办公流程和环境布置,创造出满足使用功能、具有鲜明个性特征、舒适、高效的工作环境。为员工营造一个宜人的环境,使他们享受轻松愉快的工作时间。
满足视觉与心灵的要求,简洁概念衬托室内空间设计,轻盈并透明。
设计单位介绍
广西呈美建筑装饰集团有限公司 创建于2002年,是具有国家建筑装修装饰工程专业承包壹级、建筑装饰工程专项设计甲级、建筑智能化工程专业承包三级、机电设备安装专业承包三级、钢结构工程专业承包三级资质的综合性大型装修装饰工程企业集团。
集团旗下共有4个全资子公司:广西柏朗装饰设计有限公司、广西雅上集成装饰工程有限公司、南宁呈美文化艺术有限公司、南宁金果实建材有限公司。
公司成立以来,主要致力于高端酒店、豪华会所、大型公建装修项目及高端家装的设计与施工,成功打造了渭博海滩度假大酒店、希尔顿欢朋酒店、天龙湾璞悦酒店、天宝龙酒店、绿港国际中心、荣和·悦府、荣和·千千树等一批高端精品工程,与荣和、江宇等高端地产集团结成了长期战略合作关系。
公司先后通过了《ISO9001:2008质量管理体系认证》、《ISO14001:2004环境管理体系认证》、《OHSAS18001:2007职业健康安全管理认证》;凭借严谨的经营理念和精益求精的质量追求,集团先后获得中国建筑协会评定的《AA*级A**信用等级认证》;亚洲室内设计联合会、中国建筑学会室内设计分会、广西建筑装饰协会共同授予《2010年广西十佳室内设计机构》;连续5年获得《广西建筑装饰行业先进企业》;多个项目荣获省级建筑装饰工程优质奖,在行业树立了良好的口碑和标杆性金字招牌。
时光荏苒,品质如一!为行业树立榜样,做世界级品牌企业,是呈美集团的企业目标!呈美人,孜孜不倦,从不懈怠!
设计团队

主创设计师:朱永深
朱永深
广西呈美建筑装饰集团有限公司 设计院副院长
获奖情况:
2016年 广西建筑装饰工程优质奖(建筑装饰设计类)
2019年 广西建筑装饰工程优质奖(建筑装饰设计类)
2019年第十届中国国际空间设计大赛(广西赛区)-酒店空间银奖
2020年十一届中国国际空间设计大赛
设计项目:
中国-东盟信息港小镇(研发中心)项目 南宁铁路检察院项目
广西玉林东城经典办公楼
广西防城港金地时代广场精品酒店
广西交科集团有限公司生态产业园二期项目
广西动物安全保障中心办公楼
防城港金地时代广场办公区
百色福源大酒店
猫儿山依山伴水大酒店
振宁·星光广场综合楼
新城悦隽风华
招商禧园公区
三祺和顺园营销中心
未来城售楼中心
荣和•悦府营销中心
广西物资学校
设计理念:
注重绿色空间设计的实用性和观赏性,把传统文化与现代艺术融入设计,构建美好的人居环境。

辅助设计师
左上:余嘉莉、右上:杨茂秀
左下:李建芳、右下:黄恒发