实创装饰官网:WWW.SC.CC
小区名称:夏都景苑
房屋类型:两室两厅一厨一卫
装修面积:111㎡
装修风格:现代简约
优秀设计师:许雅丽
装修方案:完美家装

1/5 客厅
完美家装:软装+硬装+全屋德式定制家具不限量+室内面积计价(沙发,茶几,餐桌,餐椅,衣柜、床、床垫等等)

2/5 餐厅
设计说明:雅卧室背景墙,飘窗休闲台,暖色木地板,营造温馨卧室氛围。 客餐厅墙面用浅镜子和壁纸,搭配白色巴赫曼木门,适应现代生活的休闲和舒适;大气简约;软装配饰再辅以颜色的跳跃,更显层次感。电视背景墙采用灰镜和壁纸结合,灰镜能来开空间反光不强,加上壁纸使空间感更加柔和,卧室温馨的色漆加上现代简约的挂画,配上白色的衣柜给人简单时尚干练的感觉。餐厅用金属餐桌、餐椅,搭配一组小挂画,与客厅整体相呼应。

3/5 卧室

4/5 原始户型图

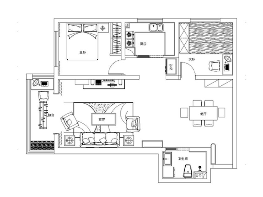
5/5 平面布局图
【在线交流联系方式】:QQ:631183422
【微信】:zhuhong927/13007769906(添加qq或微信即可参考里面的装修案例,也会及时更新各个工地施工的进度。)
【全球直购、十八项欧标工艺、10万平米自有木作工厂】
【你的家就是你独一无二的范儿,装修就是如此简单】
新房/老房为您提供整装全包,硬装+软装+全屋定制家居,一站装修、全责售后!
【懂家装,更懂你的理想】