CAD中修改文字大小,大体可分为两种,一种是修改部分文字大小,另一种是修改全部文字大小。今天给大家介绍五种修改文字的方法,其中两种修改部分文字,三种修改全部文字,希望对大家有所帮助。
修改部分文字大小
很多时候我们需要修改文字的大小,但是不需要更改全部的文字,只要改变部分文字大小,这个时候我们有三种方法操作。
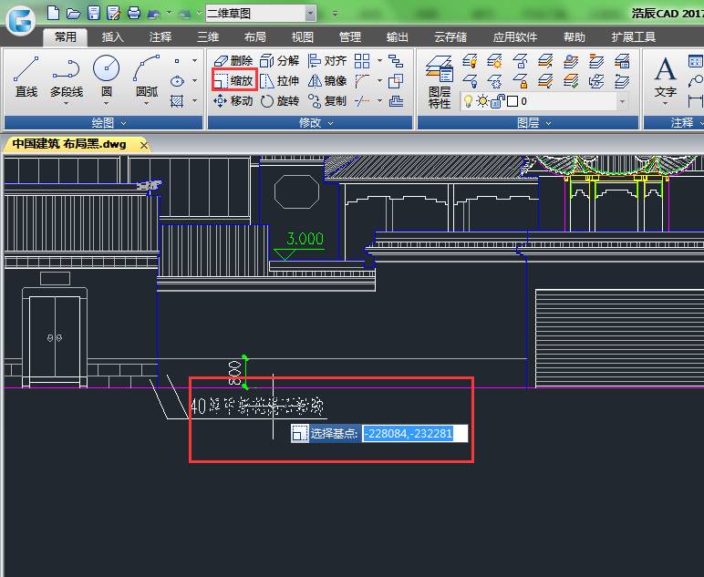
1、缩放法
缩放命令不只是在绘图中用于对图形的处理,还可以用来修改文字的大小。
浩辰CAD中调用缩放命令有三种方法:
菜单位置:[修改]→[缩放]
工 具 条:[修改]→[比例]
命 令 行:SCALE(SC)
下面我们来看看怎么使用缩放命令来修改文字的大小。
操作方法:
1、菜单栏选择“缩放”,执行“缩放”命令后,选取对象,按回车键。

2、按照命令行提示选择基点、输入比例因子或者利用光标选取相对缩放比例,最后回车键完成文字的比例缩放。(比例系数大于 1 的会加大对象;介于 0 与 1之间的比例系数会缩小对象。)

2、特性法
特性法就是使用文字的特性来修改文字的大小。
操作方法:
1、单击选中需要修改的文字,文字会变成虚线并出现蓝色的点,右击鼠标,出来的对话框后点击特性。

2、界面左侧弹出文字特性框,在这里编辑文字高度,编辑完成点击他处或者回车即可。

修改全部文字大小
当我们要对整张图纸的文字修改大小的时候,我们有三种方法。
1、特性匹配法
特性匹配就像文档中的格式刷一样,将文字刷成统一的大小。
操作方法:
用上面修改部分文字的方法操作之后,选择特性匹配来刷其他文字,被选中的文字都将保持之前调整好的高度。

2、SCALETEXT
浩辰CAD专门有文字缩放的命令(SCALETEXT),可以修改全部文字的大小。
操作方法:
1、在“注释”选项卡的“文字”面板中找到文字比例按钮或者直接在命令行输入Scaletext。

2、框选要修改的图纸范围(浩辰CAD会自动将所有文字对象选择出来,块内文字除外),回车,选择对齐模式,回车,指定新模型高度,回车,完成操作。
修改前:

修改后:

3、快捷工具法
快捷工具法可以快速的修改全部的文字大小。
操作方法:
1、在菜单栏文字样式下拉菜单里选择“其他”,弹出文字样式对话框。

2、新建文字样式,输入“高度”,然后点击“置为当前”,最后点击“应用”。

3、关闭文字样式设置对话框,新建的文字样式就修改好了,之后只需要框选要修改的文字,在文字样式选择框选择相应的文字样式即可。
