

场地位于新泻津波市秋叶原。我们设计的诊所没有局限在一个牙科诊所,它还是日托中心、书店以及一个“公园”一样可以度过美好时光的地方。与传统牙科诊所不同,这家牙科诊所不仅鼓励病人来就诊,还为他们提供丰富的休闲方式,让他们悠闲地度过预约前后地时间。我们希望诊所的所有人员都能随心所欲地在书店或日托中心消磨时光。建筑师创造了一种新型的牙科诊所,使其成为一个人们可以停留且还会再来的舒适空间。


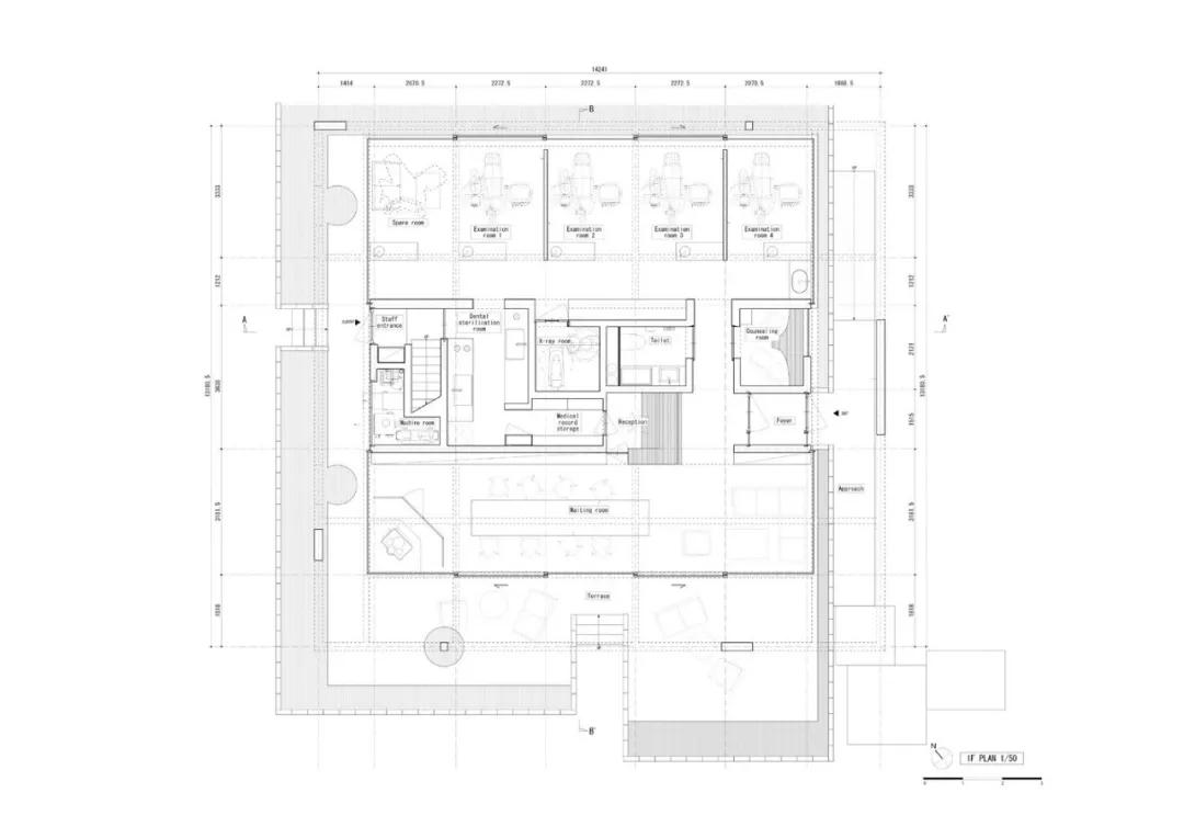
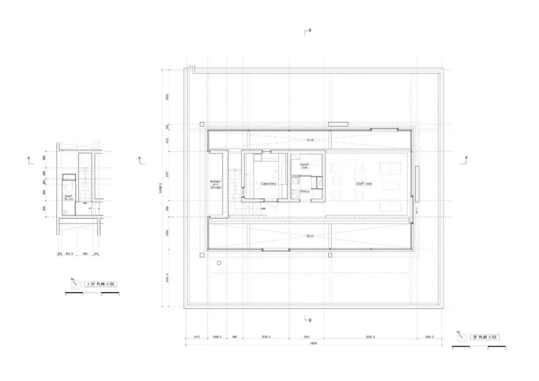
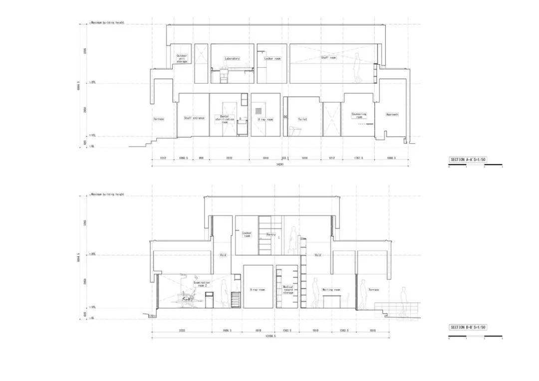
该建筑为两层楼的木结构,一层是诊所空间,二层则供员工使用。建筑一层在中心布置了消毒、X光、病历存储和卫生间空间,作为建筑的核心。建筑全部采用玻璃立面,连接检查室和等候区的露台向外延伸,还有一个花园围绕着建筑。



此外,在整个建筑的顶部还放置了一个大“帽子”,通过将其拉成弧形连接两点,在建筑周围形成拱形结构。这种建筑形式创造了一种介于内外之间的模糊区域,它调节并保护建筑免受雨、雪、夏季太阳辐射和冬季来自弥彦山的西北风。这个缓冲空间包括了候诊室和检查室的功能,在保护人们隐私的同时也让他们自由地享受四季。


该设计旨在创建这样一个诊所:1.可以感受时间和季节的变化2.病人等候时就像在公园里消磨时光一样,可以坐在舒适的座位上读书。3.通过将室外地板的材料运用至室内,并利用拱形结构作为过渡元素,模糊室内外的边界,将室内建筑围护结构和外部自然环境连接起来。





4.提供一个有遮蔽的室外空间,让患者可以无忧无虑地享受自然、阳光和雨露。5.吸引偶然路过的人与该建筑的使用者产生互动。6.创造一个像客厅一样的空间,人们可以停下来坐在沙发上,读书或等待他们的约会。当你穿过树木,拱门,站在“帽子”下,你会遇到不同的人,每个人都享受不同的空间,同时被愉快的微风和玩耍的孩子的声音包围。



项目图纸

首层平面图

二层平面图

剖面图
项目信息
建筑师:东海林健建筑设计事务所
地址:津波市,新泻县,日本
建筑面积:163.0 m2
项目年份:2018
摄影师:Koji Fujii | Nacasa & Partners
主持建筑师:Takeru Shoji ,Yuki Hirano,Takayuki Shimada
工程师:Tetsuya Tanaka(Tetsuya Tanaka Structural Engineers)
照明设计:Yutaka Inaba (FOR LIGHTS)
承包商:Ogawa (Marumo Contruction Co.Ltd)