#洛阳市的房子值不值得买呢#
2022年年底生活逐渐步入常态。当目光从疫情聚焦到恢复经济生产,2023年像是一个新的开端,带给所有人重回巅峰的希望。对于地产行业来说,也是如此。2022年,地产一路下跌,洛阳城区新入市的项目锐减。而在2023年的开端,洛龙区便有两个新项目即将上市。

首先是香栀雅园。该项目是21年12月30日摘地。同年摘地的其他项目如碧桂园天澜、碧桂园珑悦、保利·和府、泽信·云樾天著等等众多项目已开门迎客卖了许久,香栀雅园巍然不动。终于在今年2月公布了设计方案、效果图甚至宣传单页。
香栀花园只有4栋楼,但周边环境却相当好。左右是第二外国语学校和第一高级中学,北面是河南科技大学和洛阳理工以及新三院。教育、医疗资源相当得好。

3#、5#户型
从设计方案来看,该项目共4栋住宅楼,共计116套。面积段在129-192㎡之间。其中3号楼和5号楼是11层住宅,7号楼是6层住宅、8号楼是8层住宅。

全部楼栋都是1T2,所有户型均南北通透。比较有意思的是所有边户的客厅的阳台都在东向或者西向且是弧形设计,而非常规的南向。

另一个项目则是中浩德去年9月拍下的25号地块,如今的浩德伊河湾。去年开发商拿地较少,而中浩德是其中一个。中浩德去年拍下24和25号两宗地块。两地块均位于洛龙区。24号地块位于文景路与渠东路东南角,25号地块则是即将入市的伊河湾项目。与香栀雅园相比,中浩德的速度则是快了很多。9月拿地,今年就启动入市。毕竟开元壹号剩余货源不多。

2号楼户型
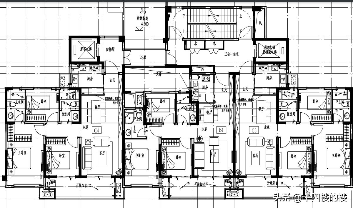
伊河湾体量相对较大。共7栋楼,754套。高层面积段是89-120㎡,洋房面积段是118-132㎡。其中7#、8#、9#是11层,5#是13层,3#是23层,6#和2#是26层。5#、17#、8#、9#是1T2,3#是2T2,6#是有连廊设计,两户一部电梯,连廊在中间,2#同样有连廊设计,2T3户,一户有单独的电梯,另外两户一部电梯。但从效果图看,大厅很有设计感。

这两个项目,你喜欢哪个呢?